Дизайн сталинок
Высокие потолки и просторные комнаты позволяют создать баланс между новым и старым.

Варианты перепланировки и интерьера в квартирах зависят от того, что именно хочется изменить.

Можно объединить кухню с прилегающей к ней комнатой. Этот способ позволит получить кухню-гостиную с удобно расположенными функциональными зонами.
Дизайн квартиры сталинки , варианты исполнения.
Современный и гармоничный образ трехкомнатной московской «сталинки» требует смелых дизайнерских решений.

Если есть возможность, то можно снести одну из стен, чтобы объединить две зоны.

Таким образом, можно получить огромное помещение для сбора всей семьи и приема гостей.
Особенности сталинок
Преимущества
Перечислим основные факторы, определяющие престижность и уют двухкомнатных квартир в этих домах:
- сталинка: планировка 2-х комнатной квартиры годится и для того, чтобы пользоваться существующей, и для перепланировки;
- толстые кирпичные стены в этих проектах (наружные — в среднем 65 сантиметров, внутренние — 25-35 сантиметров) обеспечивают отличную теплоизоляцию и звукоизоляцию;
- высота потолков в помещениях чаще всего и в среднем 3 метра, то есть выше, чем в домах последующих советских периодов;
- общая площадь квартиры — от 44 до 70 квадратных метров;
- достаточно большая площадь жилых помещений: площадь комнат от 12 (маленькой) и от 15 (большой) до 25, иногда больше;
- площадь коридора — от 8 до 15, иногда больше (в основном, в квартирах, расположенных в угловых «башнях»);
- площадь кухни — от 8 квадратных метров, а в среднем — 10-12.
Недостатки
Как правило, новосел, въезжающий в сталинку, платит немалые деньги и за саму квартиру, и за ее доведение до желаемого состояния. Как вариант, хоромы уже продаются после свежей и дорогой реконструкции, благодаря которой оборудованы и обустроены в современном стиле.
Что исправлять?
- часто критический износ систем водоснабжения, канализации и отопления, может даже потребоваться договариваться с соседями сверху и снизу о замене общих стояков;
- недостаточная для современных электрических приборов мощность электропроводки и износ ее изоляции;
- сильно амортизированные газовые плиты, требующие замены;
- часто неровные стены;
- часто разнородный социальный состав жильцов, и если встречается очень нежелательное соседство, то радикально и быстро решить это проблему практически можно попытаться выкупом еще одной квартиры.
Дизайн-концепция №1
Дизайнеры студии One Design разработали простой на первый взгляд интерьер, который подойдет скорее для жизни, чем для сдачи в аренду.
О планировочном решении:
— Мы решили пуститься во все тяжкие и демонтировать все, что позволяла конструкция дома!

В коридоре расположилось зеркало, вращающееся на 360 градусов.
— Этот элемент имеет не только функциональную, но и эстетическую нагрузку: это и зеркало, и перегородка, и игровой элемент.

Между коридором и спальной зоной запроектирована небольшая гардеробная.
— Не хотелось загромождать все шкафами и полками, а хотелось легкости и воздуха в интерьере. Нам очень повезло, что расстояние между несущими колоннами позволило расположить между ними двуспальную кровать. Мы спланировали невысокий подиум с местом хранения, а штора здесь выполняет функцию мобильной перегородки.
Гостиная совмещена с обеденной зоной. Здесь нашлось место и для гостей.
— Решили не уходить в минимализм, поэтому добавили открытые полки с книгами. На полу можно увидеть холсты. Этим мы хотели сказать, что необязательно вешать все на стену. Правильный дизайн — это не только красивая и функциональная мебель совместно с отделкой стен, но и декор. Кстати, черно-белая графика на холстах — разработка нашей студии. Сложно найти подходящие по стилистике картины или постеры, поэтому мы решили взяться за это дело сами.



Кухню отделили от зала стеклянной перегородкой. Здесь еще и полубарная стойка есть — место для быстрых завтраков.


Вход в санузел прикрыли шторой. Так комфортнее и красивее, но дверь все же тоже пришлось оставить.

Дизайнеры делают вывод:
— Мы создали современный интерьер. Для нас красота заключается в простоте. И да, такую плитку мы обожаем! И кресла в деревянном каркасе тоже. Это было актуально 30 лет назад и актуально сейчас. Так что не надо бояться добавлять в интерьер такие «фишки». Главное — умение создать гармонию, но и о неожиданных мелочах не забывать.
Дизайн небольшой квартиры в сталинке. Работа бюро Marina Pennie design&art

Дизайн интерьера в этой квартире-«сталинке» может стать прототипом к изменениям в таких типичных домах. Дизайнеры Марина Пенние и Роман Воронов из бюро Marina Pennie design&art стали разработчиками данного проекта и превратили бывшую коммуналку в уютное семейное гнездышко. Большим плюсом стало то, что один из дизайнеров, Роман Воронов, разрабатывает мебель по индивидуальным проектам.
Необходимо заметить, что до ремонта квартира была в плачевном состоянии. В ней требовало замены буквально все, от пола до потолка, включая коммуникации. Новые хозяева знали, какой результат работы дизайнерской бригады они ожидают: 3 комнаты оборудованные шкафами для хранения одежды и рабочими уголками для взрослых и детей.
Кухню решено было объединить с гостиной – это значительно увеличило площадь и дало возможность проявить творческий потенциал. Хозяева не хотели терять ни одного квадратного метра и потребовали от профессионалов грамотной организации пространства.
За основу оформления были взяты спокойные цвета с яркими вкраплениями. Так стены и пол выполнены в классической палитре, а вот мебель стала акцентным пятном в дизайне интерьера. Одна стена сделана из кирпича, что само по себе является оригинальным украшением.
Отдельные гардеробные были обустроены в детской и взрослой спальнях. Рабочий уголок для взрослых удачно замаскировали под шкаф в гостиной, а в детской комнате он занял место подоконника.
Мебель ярких цветов задает нужное настроение, настраивает на позитив. Фиолетовые стулья на кухне, мягкий диван цвета морской волны в гостиной, и лимонное кресло в детской комнате являются теми самыми сочными, колоритными пятнами, которые задают нужный тон современному дизайну интерьера.
Несмотря на озорные вкрапления, в целом дизайн интерьера квартиры достаточно сдержанный. Все предметы интерьера подобраны таким образом, чтобы уравновешивать обстановку. Биокамин стал прекрасным функциональным предметом интерьера, который дает особую строгую ноту в дизайн интерьера гостиной комнаты.
Аксессуары в спальне, светильники и зеркало, стали основными необычными предметами
Они акцентируют на себе внимание в этой комнате
Ванная комната оформлена в традиционной цветовой гамме – белом и синем. Морская тематика – это классика для санпомещения, она отлично подходит для ванной комнаты.
В результате проведенной работы получился нескучный дизайн интерьера, с необычными элементами, подчеркивающими индивидуальность вкуса хозяев квартиры.










материалов активная ссылка на сайт обязательна!
Составление проекта: бесплатные предложения и внимание к деталям
Студия на свои средства проводит первый этап работ — выезд на объект с последующим осмотром, замером, составлением общего плана. Для Заказчика готовится планировка в трёх уникальных экземплярах, которые затем обсуждаются лично с Клиентом. Когда будет выбрано лучшее из доступных решений, вносится аванс в размере 40 % от общей стоимости. Затем, после утверждения визуализации, вносятся ещё 30, а остаток суммы Заказчик оплачивает, принимая готовый проект.
Кстати о визуализации — в студии можно составить трёхмерную модель с готовой планировкой и мебелью. Это позволит оценить общую картину задолго до того, как она будет претворена в реальность. И да — лишние деньги за это взяты не будут.
Получите 3 варианта планировки интерьера бесплатно
Оставьте заявку прямо сейчаси получите бесплатный 3D эскиз интерьера до заключения договора
Получить 3D эскиз
Ремонт или квартирная перепланировка
Перепланировочная работа, дизайн сталинки 50 кв. м. , востребует замены перекрытий пола, стен и потолка. При проведении ремонта исследуется состояние коммуникаций и газовых стояков. Дизайн сталинки, в которой 3 комнаты, востребует “жертвы” в виде одной из них для увеличения пространства кухни и создания столовой. Либо использования зрительного увеличения при помощи художественных ходов, если нет желания иметь кухню совмещённую с гостиной.
В зоне кухни, ванне и туалете перекрытия состоят из бетона, а в иных комнатах – из древесины.
Внутренние работы по отделке
Делать ремонт следует с пола. После снятия покрытия для пола и замены гнилых досок можно приступить к поверхностному выравниванию. Между брусками из древесины насыпают шумозащитные и удерживающие тепло материалы, к примеру — керамзитобетон.
Строения построены из крепкого и массивного бетона, который дает возможность сберегать тепло в середине помещений в зимнее время года и удерживать свежесть летом.
Дизайн 1 комнатной квартиры в сталинке, при помощи убирания перегородок, превратит ее в жилую площадь студию. Стены можно поровнять с помощью гипса, отделав его шпаклевкой. Старую штукатурку целесообразно удалить, так как она считается основой неприятного запаха, рассадником бактерий, плесени. Потолок можно поровнять шпаклевкой либо с помощью монтажа бесшовного потолка.
Бетон также дает прекрасную возможность создавать звукоизоляцию, что существенно экономит деньги на установке шумоизолирующих систем.
Что учесть при перепланировке?
Сегодня сталинки ценят не только за высоту потолков и толщину стен, но и за возможность перепланировки. Причем речь идет о послевоенных домах с железобетонными перекрытиями, если квартира находится в довоенном здании и перекрытия деревянные — утвердить новый план будет сложно и дорого. Дело в том, что перекрытия могут быть не несущими, а разгружающими: это значит, что придется их дополнительно усиливать. Но при желании и это сделать вполне реально!
Что касается железобетонных конструкций — большинство межкомнатных перегородок не являются несущими и утвердить их переустройство гораздо проще.
Еще один нюанс, который следует учесть — вентиляция и дымоходы. В сталинках они могут располагаться в совершенно неожиданных местах, а производить перестройку данных общедомовых конструкций строго запрещено. Поэтому если при демонтаже окажется, что внутри стены скрыта шахта — придется возводить стену заново.
Третий важный момент — тип плиты. В случае подключенного газа объединять кухню с любым жилым пространством строго запрещено, либо демонтированные двери и стены придется заменять глухими перегородками.
Последнее касается собственников, чьи квартиры находятся в домах, причисленных к памятникам архитектуры. Утверждать любые внутренние изменения в данном случае придется не только с Жилинспекцией, но и специальным органом. В Москве, например, данным вопросом занимается Москомнаследие.
Что думают об этом заказчики?
— Дизайнеры Yen Studio довольно точно попали в наше представление об уютной квартире, — делятся впечатлениями заказчики. — Несмотря на то что в интерьере используется достаточно много темных элементов, в квартире хватает света. Хочется отметить дизайн кухни: очень уютные фасады, большое количество мест для хранения и интересное решение с дополнительной тумбой возле стеклянной перегородки. Дизайн квартиры в целом смотрится очень гармонично. Возьмем его на вооружение.
Проект One Design очень современный, с концептуальными деталями. Хотелось бы дополнить интерьер деталями из ежедневного быта, чтобы понять, как квартира может выглядеть в реальности. Понравилась удобная полубарная стойка на кухне, а вот расположение мойки возле стены считаем не самым удачным решением. Кладовка в коридоре замаскирована удачно, но все же одной ее будет недостаточно для хранения.
Спасибо всем дизайнерам за приятное общение, идеи и проделанную работу.
http://www.elledecoration.ru/interior/flats/dvuhkomnatnaya-kvartira-56-m-v-stalinskom-dome-id6810414/
http://www.dizainvfoto.ru/interer/pereplanirovka-i-vybor-dizajna-interera-v-stalinke-ploshhadyu-50-kv-m.html
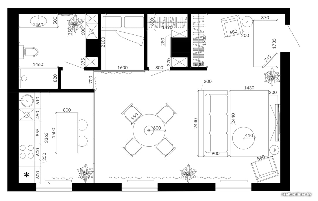
http://realt.onliner.by/2019/02/04/bitva-dizajnerov-18
Возможна ли перепланировка сталинки
Хотя великолепная планировка и является одним из основных плюсов, какими могут похвастать все без исключения квартиры-сталинки, иногда люди всё же интересуются – возможна ли перепланировка в сталинке? Это может происходить по разным причинам.
Пример перепланировки квартиры сталинки
Одним из наиболее распространенных видов перепланировки является изменение формы и размера коридора. Дело в том, что во многих сталинках имеется довольно длинный коридор, который, по мнению владельцев квартиры, стоило бы укоротить. Сэкономленные метры добавляются к площади жилой комнаты.
Конечно, в сталинках размеры комнаты и так довольно велики, но ведь несколько квадратных метров никогда не будут лишними.
В большинстве случаев проблем при этом не возникает. Хотя навестить специалистов все-таки стоит! Ведь даже имея на руках чертеж своего жилья, вы наверняка не сможете провести все расчеты и определить – не навредит ли снос обычной деревянной перегородки всей конструкции здания.
пример перепланировки трехкомнатной квартиры в сталинском доме
Здесь появляется ещё один минус сталинок. Те перегородки, которые изначально были самонесущими, со временем превратились в разгружающие.
Другими словами, теперь они берут на себя часть нагрузок от всей конструкции, хотя изначально это не было запланировано. И если в современных кирпичных и панельных домах деревянные перегородки можно спокойно сносить, то при работе в сталинках процесс перепланировки может значительно усложняться этим.
вариант перепланировки двухкомнатной сталинки
Впрочем, встречаются и люди, которых планировка однокомнатной сталинки вполне устраивает, но при этом им критически не хватает полезной площади для комфортной жизни. Вообще, в таком случае существует довольно много самых разных способов решения проблемы, прекрасно подходящих как для сталинок, так и для хрущевок.
Однако сталинки имеют один несомненный плюс, благодаря которому проблема недостатка свободной площади легко решается. Речь идет о необычной высоте потолков. Выше уже говорилось, что потолки в сталинках очень высоки – обычно около 3 метров. И некоторые владельцы умело пользуются этим. Они просто создают второй этаж в своей же комнате.
Для этого используются обычные деревянные доски и брус. Получать разрешение и согласовывать такое строительство в соответствующих органах не нужно – основные несущие конструкции здания никоим образом не повреждаются и не изменяются.
Просто люди разделяют часть комнаты на два этажа. Высота первого обычно получается около 2 метров, а второго – около 1 метра. Да, устроить там полноценный этаж невозможно. Зато поместить кровать, даже двухместную, очень даже можно. Нередко под кроватью, на первом этаже, оборудуется рабочий кабинет. Таким образом вы экономите немалую свободную площадь, получая больший простор в квартире. Решение весьма необычное, но весьма эффективное. Так что если вы решите предпринять что-то подобное, то сожалеть об этом вам точно не придется.
В чем заключаются различия?
На вторичном рынке недвижимости представлены постройки 1930-1950 годов, так называемые «сталинки», двух видов.
Чаще всего в них встречались двухкомнатные или трехкомнатные квартиры с высокими потолками и огромными окнами.
Планировка подобных квартир отличается удобством и простором, однако не всегда их владельцы довольны расположением и размерами комнат.
- Дома для рабочего класса. Их отличием является маленькая квадратура квартиры, крошечные кухни и небольшое количество этажей.
- Постройки для партийной элиты и других деятелей. Они могут быть и четырехкомнатными, иметь просторные комнаты, кухню площадью 10-12 кв. м.
Многие задумываются о перепланировке жилища, но не знают, как это правильно сделать и можно ли затевать такой серьезный ремонт.
Перед самостоятельным внедрением в конструкцию здания необходимо проконсультироваться со специалистами.
Здания, которые строились до 50-х годов, имеют деревянные перекрытия. Более молодые дома из блоков строились с использованием железобетонных конструкций.
У сталинок, в отличие от хрущевок, имеются большие и просторные комнаты.
Они отличаются широкими подоконниками, высокими потолками и большим метражом помещений.
Гостиная
Комната для отдыха и приёма гостей отделена от коридора и кухни полупрозрачными дверями – это позволяет визуально расширить помещения. Диван расположен в нише из двух открытых стеллажей. На полках хранятся книги и дорогие сердцу вещи: швейную машинку Zinger можно назвать реликвией, передающейся по наследству.
Основная мебель собрана и привезена из разных мест: с дачи или с прошлой квартиры, но оформление смотрится цельным за счёт объединяющих элементов декора, а также кресла и стеллажей из ИКЕА, купленных специально. Двери приобретены в , диван – в салоне Roy Bosh. Шторы – в Arte Domo, ковёр – в ИКЕА.
Интерьер в разного типа кухнях
Дизайн сталинской кухни в трехкомнатных квартирах начинают с проекта, подведения труб, ремонта, а после, работы специалиста. С дизайнером проще воплотить и распланировать все этапы превращения старой квартиры в современное помещение.

Отсутствие физических границ позволит увеличить пространство, а правильно подобранное освещение разграничить его на функциональные зоны.
Увеличить площадь помещения можно с помощью сноса стены.
Помимо площади они различаются типами:
- Квадрат;
- Пенал;
- С вентиляционными коробами;
- Прямоугольник.
Последний в списке вид, является самым распространенным. Сложность работы, с такого рода планировкой, заключается в месторасположении напротив входа. Кухни с коробами посреди комнаты требуют особого подхода. В них можно разместить посудомоечную машину либо микроволновку. Главное умело обыграть эту конструкцию.

Идей для планировки квартиры-сталинки может быть достаточно много.

Главное, точно понимать, каким требованиям она должна соответствовать.
Маленькие кухни с легкость поддаются перепланировке, за счет удаления стены полностью либо частично. Интерьер кухни в сталинке можно выполнить и без снесения перегородок. В таком случае стоит поделить пространство на зоны и выделить их с помощью различного напольного покрытия либо гипсокартоновых конструкций на потолке.
Сталинские постройки пользуются не меньшей популярностью, чем апартаменты в новых современных домах.
Самые привлекательные особенности таких квартир — высокие потолки и отсутствие несущих стен.
Использование в интерьере серой классики — самое современное решение. Сочетание графитового оттенка кухонного гарнитура с плиткой, отливающей серебром и текстилем из льна придает кухне изысканный и стильный вид.
А также, популярно использование монохромного дизайна совместно с использованием акцентов. К примеру, на белой глянцевой кухне могут стоять матовые стулья красного либо зеленого цвета. Либо на кухне с салатовыми оттенками фиолетовый или другой диван.
Интерьер получился светлым и открытым с сочными яркими акцентами.
Не бойтесь экспериментов и удачного завершения ремонта!
Дизайн-концепция №2
Концепция Yen Studio полна креатива, который принято реализовывать в квартирах, предназначенных для сдачи.
— Мы постарались сделать зонирование квартиры легким, едва ощутимым посредством стеклянных перегородок. Центральная часть квартиры делится на обеденную, гостиную и спальную зоны.

В зоне прихожей мы поместили скрытый гардероб с открытой системой хранения. В самой прихожей расположились зеркало в полный рост и вешалка для верхней одежды.
Двери в гардероб и санузел мы сделали скрытыми, чтобы не загромождать стены откосами.


Спальное место решено было сделать частью общего помещения, но обособить.
— Это достигается использованием не только стеклянной перегородки, но и плотной шторы. Само спальное место представляет собой подиум с выдвижным ящиком для хранения постельного белья. Стену в этой зоне мы решили разнообразить спокойным монохромным рисунком.

В гостиной дизайнеры предлагают сделать стену-шкаф от пола до потолка со встроенным в него телевизором.
— Такое решение позволяет получить большое количество мест для хранения, но при этом не кажется громоздким. Цветовые акценты создаются мягкой мебелью в гостиной и прихожей. Она теплых рыжевато-кирпичных тонов, добавляет спокойному и холодному лофту уюта.


Кухня выполнена в нейтральных тонах с акцентом в виде мореного кирпича на стенах и узорчатой плитки на полу. Хозяйка квартиры просила предусмотреть больше мест для хранения, поэтому мы приняли решение делать кухонные фасады до потолка, чтобы добавить еще один ряд шкафчиков. Стеклянная перегородка между кухней и основным помещением позволяет оградить квартиру от нежелательных запахов в процессе готовки, но в то же время делает помещение цельным и полностью просматриваемым.



Обеденная зона расположена между кухней и гостиной и является связующим звеном в помещении, позволяя, находясь за столом, полностью охватывать взглядом квартиру. Материалом для столешницы выбран массив дерева светлого тона.

— По желанию заказчика предусмотрели место для стиральной и сушильной машин. Фасады выполнены в светлых тонах дерева, чтобы не утяжелять закрытое пространство.




— Мы постарались скомбинировать индустриальный стиль и простой, функциональный скандинавский. Большое количество мест для хранения, кирпичная кладка и максимально открытые и просматриваемые пространства стали основой нашего интерьера. Плюсом является то, что дизайн и планировку центральной зоны квартиры можно легко изменить, переставив мебель. А нейтральные стены и пол позволяют выбрать декор любых оттенков.
Как выглядит сталинка
Сталинские дома в большинстве своем довольно невысоки – чаще всего это трех- или четырехэтажные, монументальные и мощные здания.
Но их настолько мало, что все подобные здания в стране можно пересчитать по пальцам. Кроме того, квартира в сталинской высотке это настолько престижно, что приобрести себе такое жилье могут очень немногие наши соотечественники. Поэтому о них можно не говорить.
пример планировки двухкомнатной квартиры сталинки
Большая часть квартир в сталинках имеет 2 комнаты или 3. Реже можно встретить 4-комнатные хоромы. И ещё реже – однокомнатные квартиры. Но, независимо от количества комнат, квартиры были построены довольно просторные. Вот примерная площадь таких квартир:
- 1-комнатная – 32-50 квадратных метров;
- 2-комнатная – 44-70 квадратных метров;
- 3-комнатная – 57-85 квадратных метров;
- 4-комнатная – 80-110 квадратных метров.
Высота потолков приятно удивит даже самого придирчивого жильца – от 2,9 до 3,2 метров. Окна – просто огромные, чаще всего от 125х185 до 140х210 сантиметров. Кухни в однокомнатных квартирах сравнительно невелики – всего 7-8 метров. Зато в двух- и трехкомнатных квартирах это весьма просторные помещения – от 8 до 12 метров. Настоящая мечта любой хозяйки.
пример планировки трехкомнатной сталинки в 6-этажном доме
Стоит сказать, что иногда можно увидеть и квартиры в сталинских постройках, имеющие больше четырех комнат – пять и даже шесть. Но такая квартира, скорее всего, была построена для использования в качестве общежития; и количество домов с такими квартирами очень невелико. Поэтому и подробно рассказывать о них не стоит.
пример планировки 4-комнатной сталинки
Конечно, имеется и ряд недостатков, но люди, мечтающие жить в просторном жилье, легко мирятся с ними.
Например, в сталинках отсутствуют лифты. Но для 3-4 этажных зданий лифт вовсе не является необходимостью. То же самое можно сказать про мусоропровод.
А на этом видео можно посмотреть, что из себя представляет ванна в «сталинках», и как ее можно отремонтировать.
Год строительства также может отпугнуть неопытных покупателей – многие из сталинок были построены около 80 лет назад. Но специалисты прекрасно знают, что при строительстве на них давалась гарантия от 125 до 150 лет! Поэтому на протяжении многих десятилетий обитателям таких квартир беспокоиться не придется.
Интерьер в различного типа кухнях
Дизайн сталинской кухни в квартирах с тремя комнатами начинают с проекта, подведения труб, ремонта, а после, работы специалиста. С декоратором легче осуществить и распланировать все шаги превращения старой квартиры в современное помещение.
Сделать больше площадь помещения можно при помощи сноса стены.
Кроме площади они отличаются типами:
- Квадрат;
- Пенал;
- С вентиляционными коробами;
- Прямоугольник.
Последний в перечне вид, считается очень распространенным. Сложность работы, с подобного рода планировкой, состоит в расположении напротив входа. Кухни с коробами посреди комнаты просят особенного подхода. В них можно расположить машину для мытья посуды либо микроволновую печь. Главное мастерски обставить эту конструкцию.
Малогабаритные кухонные комнаты с легкость поддаются перепроектировке, за счёт убирания стены полностью либо частично. Кухонный интерьер в сталинке можно выполнить и без снесения перегородок. В этом случае стоит разделить пространство на зоны и выделить их при помощи разного покрытия для пола либо конструкций из гипсокартона на поверхности потолка.
Сталинские постройки пользуются большой популярностью, чем апартаменты в новых современных домах.
Самые привлекательные характерности подобных квартир — большие потолки и отсутствие стен несущих.
Применение в интерьере серой классики — самое хорошее решение. Комбинирование графитового оттенка гарнитура кухни с плиткой, отливающей серебром и текстилём из льна придаёт кухонной комнате красивый и современный вид.
И также, востребовано применение монохромного дизайна совместно с применением акцентов. Например, на белой глянцевой кухонной комнате могут стоять матовые стулья красного либо в зеленом цвете. Либо в кухонной комнате с салатовыми оттенками фиолетовый или остальной диван.
Интерьер вышел светлым и открытым с сочными яркими ударениями.
Не нужно боятся экспериментов и удачного окончания ремонта!
Дизайн сталинок
Большие потолки и широкие комнаты дают возможность создать баланс между новым и старым.
Варианты перепроектировки и интерьера в квартирах зависят от того, что именно хочется поменять.
Можно соединить кухню с прилегающей к ней комнатой. Данный способ даст возможность получить кухню-гостиную с комфортно размещенными рабочими зонами.
Квартирный дизайн сталинки , варианты выполнения.
| Исторический | К нему относят ампир, барокко. Применяется мебель с резными фасадами, дорогой текстиль и покрытия для пола. |
| Традиционный | Интерьер в сталинке в аналогичном исполнении способен передать дух того времени в комбинировании с новейшими технологиями. |
| Этнический | Прованс или кантри наиболее просты в применении и применимы как в кухонной комнате сталинки, так и во всех помещениях. |
Современный и правильный образ трехкомнатной московской «сталинки» просит отважных решений дизайнера.
С чего начать планирование интерьера
После того, как планировка помещения прошла, пора приступить к планированию интерьера
На этом этапе важно определиться, какой дизайн кухни в сталинке хочется видеть










Несколько советов, с чего следует начать планирование дизайна:
- Во-первых, нужно определиться со стилем интерьера. В интерьере кухни в сталинке хорошо будет смотреться классика
- Во-вторых, стоит выбрать стройматериалы и варианты оформления стен и потолка. В кухне-гостиной в сталинке будут уместно смотреться и натяжные потолки, и натуральные материалы
- Если газовая колонка выведена на кухню, то цвет мебели должен по цвету сочетаться с ней, если она не закрыта шкафом. Обычно колонка бывает белого цвета, следовательно, и мебель нужно покупать белую
- На пол можно стелить паркет или линолеум, если все деревянные балки заменены на железные
Расширение балкона и лоджии
Двухкомнатный проект квартиры в сталинке предполагает наличие балкона. Во время капитального ремонта его можно благоустроить и утеплить. Балкон станет дополнительной комнатой. Увеличить полезную площадь помогает вынос подоконника наружу, который выполняется при установке пластикового остекления.
Если освободить балкон и лоджию от ненужных вещей, за пределами двухкомнатной квартиры можно расположить:
- Стол с двумя стульями для чаепитий на свежем воздухе.
- Комнатный диван или шезлонг для отдыха и расслабления.
- Узкий письменный стол и книжный шкаф.
Лоджии встречаются редко, но они есть в отдельных домах. Двухкомнатный проект капитального ремонта может включать присоединение лоджии к жилому помещению.
Удачная перепланировка изображена на следующей фотографии:Во время перепланировки строители утеплили лоджию, обычное остекление заменили на панорамные стеклопакеты. На фотографии можно заметить комнатный радиатор, установленный для обогрева лоджии. Для украшения выбран яркий текстиль, небольшие картины, декоративные комнатные растения.
Классическая сталинка рассчитана на срок службы 125-150 лет. Запас прочности этих построек достаточно большой. Следует учитывать год строительства здания при покупке двухкомнатной квартиры. Старые дома, построенные в довоенное время, будут служить до 2050 года, поздние здания – до 2105 года.
Планируя капитальный двухкомнатный ремонт в квартире, следует провести замену электрики и коммуникаций, установить современную сантехнику и бытовую технику, заменить деревянные окна на пластиковые профили. Ветхие комнатные перегородки можно снести или заменить на прочные конструкции. Обновленная двухкомнатная сталинка будет красивым и комфортным жильем для небольшой семьи.
Зонирование совмещенной кухни
Если кухня объединяется с гостиной или балконом, получившееся пространство необходимо обязательно разделить на такие зоны, как место для приготовления пищи, столовая, уголок для семейных посиделок.
Для этой цели можно использовать цельные или частичные перегородки, выполняемые из стекла, дерева, пластиковых панелей или гипсокартонных плит, готовые ширмы.
Также весьма популярными сегодня являются варианты визуального зонирования, представленные ниже:
установка между зонами двухсторонних стеллажей, шкафов или специально изготовленных на заказ систем хранения;
размещение кухни на подиуме по центру помещения или в одном из углов;
использование многоуровневых натяжных или подвесных потолков;
разделение зон при помощи грамотно подобранного освещения;
применение разных материалов отделки для отдельных пространств. К примеру, в гостиной можно использовать декоративную штукатурку или красивые обои, а на кухне – керамическую плитку;
установка между зонами барной стойки;
замена двери на балкон или лоджию легким арочным проемом.



































