Преимущества и недостатки
К преимуществам дуплекса можно отнести следующее:
- более низкая стоимость по сравнению с коттеджами;
- постоянно охраняемая территория;
- современная планировка;
- высокий уровень шумоизоляции;
- снижение затрат на содержание дома благодаря общим коммуникациям;
- наличие обустроенного личного гаража;
- сочетание преимуществ городской квартиры и загородного жилья;
- загородное расположение, что гарантирует благоприятную экологическую обстановку;
- меньшее количество соседей.

К отрицательным сторонам такого дома относятся:
- шум за стеной, которая является общей (если соседи окажутся шумными, можно решить этот вопрос с помощью дополнительной звукоизоляции);
- нежелательное соседство: чтобы в дальнейшем не возникало неприятных сюрпризов, рекомендуется познакомиться с потенциальными соседями ещё до покупки недвижимости;
- необходимость проводить внутренний ремонт, что также требует вложений: застройщики обычно не выполняют внутренние работы, поэтому организовать этот процесс придётся самостоятельно, что потребует не только времени, но и финансовых затрат.
Форплекс и мобильный дом
Давайте ещё рассмотрим менее популярные дома, которые в России только начали появляться, потому о них мало кто знает.
- Форплекс – это здание, в котором есть четыре отдельных квартиры, что являются равнозначными частями этого дома. Вот его особенности:
- Земля возле дома принадлежит всем жильцам;
- Данный вид жилья относится к экономному классу жилья, так как квартиры в доме небольшие;
- Здесь у одного владельца будет ещё три соседа, которые между собой могут быть даже незнакомы.

- Мобильный дом – это практически трейлер, но в нем можно жить. Конечно, жилплощади критически мало, но в зависимости от масштаба дома есть санузел, спальное место, кухня и гостиная. Конструкция, отличающаяся от привычного нам понятия дома, не вызывает уверенности, но цены на такие объекты могут вполне покрыть расходы за недорогой домик. Тем не менее, сейчас в России дома-трейлеры не получили такой популярности, как в других странах.
https://www.youtube.com/watch?v=XrK2rfN710oVideo can’t be loaded because JavaScript is disabled: Интерьер дома — таунхауса на две семьи в коттеджном посёлке (https://www.youtube.com/watch?v=XrK2rfN710o)
Что такое таунхаус: обзор модификаций строения
Разобравшись в вопросе, что это такое таунхаус (фото наглядно отображают внешний облик строения), можно рассмотреть существующие модификации данного многоуровневого комплекса.
Лаунхаус (переводится как «дом в переулке») является комплексом двух- или трехэтажных строений, у которых разнятся архитектура и внутренняя отделка. Каждый дом имеет собственный вход, гараж и земельный участок. Такие строения образуют сеть переулков, вследствие чего и получили свое название.
Таунхаус на 2 семьи представлен дуплексом. Это жилой комплекс, состоящий из двух многоэтажных домов, которые соединены одной общей стенкой. Такое строение предназначено для проживания двух семей. Твинхаус схож по устройству и назначению с дуплексом, в нем могут также проживать две семьи. Однако отличаются такие строения тем, что первый вариант представлен двумя отдельными домами с разной архитектурой, имеющими общую стенку, что отображают проекты таунхауса на две семьи.
Квадрохаус является многоэтажным комплексом, рассчитанным на проживание четырех семей. Вилетта – своеобразное подобие таунхауса. Однако строение характеризуется более оригинальным архитектурным оформлением, предполагающим использование арок, мансард, террас и земельных участков. Британхаусы создаются строго в английском стиле. Фасад таких зданий отделывается терракотовым кирпичом, придавая строению утонченности. Этот комплекс относится к сегменту элит-класса.

Таунхаус на 3 семьи соединен общими стенками, но для каждого дома есть отдельный вход
Коттедж, дуплекс, таунхаус – в чем разница?
- Коттедж – это отдельно стоящий дом на обособленном земельном участке. Строение предназначено для одного хозяина, одной семьи.
- Таунхаус – это длинный многоквартирный дом, где под общей крышей «уживаются» несколько жилых помещений, каждое из которых имеет свой вход и граничит с соседями боковыми стенами.
- Квадрохаус – это дом на 4 хозяина, где квартиры расположены «крестом». Можно сказать, что квардохаус это два дома-дуплекса, стоящих спиной друг к другу.
Чем отличается дуплекс от таунхауса? Дуплекс это среднее между коттеджем и таунхаусом. Строение ограничено двумя квартирами на отдельном земельном участке. Возводят такие строения в коттеджных поселках элитного класса в пригородной зоне (20-30 км от города).
Ремонт таунхауса под ключ: порядок выполнения работ
Обустройство готового дома начинается с разработки дизайн-проекта таунхауса, стоимость которого определяется вариантом его исполнения в зависимости от сложности. В нем предусматриваются планировочные и технологические решения, а также формируется общая концепция оформления помещений, что определяется выбранным стилистическим направлением.

Интерьер и экстерьер таунхауса лучше выполнить в одном стилистическом решении, создавая тем самым гармоничную среду для жизни
Здесь разрабатываются варианты планировки и отделки помещений, расстановки мебели, сантехнического оборудования, освещения и декорирования. Формируется перечень необходимых материалов, сантехнического оборудования и элементов системы освещения.
Особое внимание уделяется отделке лестницы, которая является одним из главных и необходимых элементов многоуровневого таунхауса. Оформление элемента должно гармонично сочетаться с общим дизайном интерьера дома
Далее на основании разработанного дизайн-проекта выполняются ремонтные работы во всех помещениях. Их трудоемкость и характер зависят от того, в каком виде дом сдан в эксплуатацию. Если выполнена лишь черновая отделка элементов помещения, ремонт начинается с нуля. Это наиболее подходящий вариант, поскольку дает возможность осуществить планировку и отделку квартиры на основании личных предпочтений заказчика с использованием качественных материалов.

Наиболее выигрышно интерьер таунхауса смотрится в стиле: минимализм, лофт, контемпорари, шале, прованс и кантри
Таунхаус с отделкой полностью подготовлен к декорированному оформлению. Однако, если заказчику не нравится планировка или отделка определенных его элементов, можно выполнить капитальный ремонт с предшествующим демонтажем, что потребует значительных финансовых затрат. Если в квартире таунхауса выполнен ремонт, она полностью подготовлена для новоселья. Однако это является не очень удачным вариантом, поскольку часто застройщик применяет некачественный материал, выполняя ремонтные и отделочные работы, что неоправданно увеличивает стоимость дома.
Полномасштабный ремонт в таунхаусе (фото наглядно это отображают) под ключ включает необходимый перечень фасадных и кровельных работ. Благодаря этому удастся не только преобразить внешний вид здания, но и обеспечить ему надежную защиту от неблагоприятных факторов окружающей среды, что продлит период его благополучной эксплуатации.
В чем разница коттедж и таунхаус?
Коттедж и таунхаус — это два разных типа жилых недвижимостей, которые имеют свои особенности и характеристики. Вот основные различия между коттеджем и таунхаусом:
Тип строения:
- Коттедж: Коттедж обычно представляет собой отдельное жилое здание, которое расположено на отдельном участке земли. Коттеджи могут быть одноэтажными или многоэтажными и могут иметь свою собственную территорию, сад и парковку.
- Таунхаус: Таунхаусы представляют собой рядом расположенных домов, соединенных общими стенами. Обычно таунхаусы имеют несколько этажей и общую структуру, но каждый дом в ряду может принадлежать разным владельцам.
Размер и планировка:
- Коттедж: Коттеджи могут иметь большую площадь и более свободную планировку. Обычно у коттеджей есть более широкие возможности для дизайна и размещения.
- Таунхаус: Таунхаусы обычно имеют более компактные размеры и более стандартную планировку. Однако многие таунхаусы предлагают эффективное использование пространства.
Участок и территория:
- Коттедж: Коттеджи, как правило, располагаются на собственных участках земли, что позволяет иметь более просторную территорию, сад или двор.
- Таунхаус: Таунхаусы обычно имеют небольшие участки или даже отсутствуют собственные участки. Однако некоторые таунхаусные комплексы могут предоставлять общие территории и зоны отдыха.
Соседство и обслуживание:
- Коттедж: Живя в коттедже, у вас может быть больше частной жизни и меньше соседей.
- Таунхаус: В таунхаусах соседи расположены ближе, и некоторые элементы обслуживания и управления таунхаусным комплексом могут быть общими.
Стоимость:
- Коттедж: Обычно коттеджи имеют более высокую стоимость из-за большей площади и частного участка земли.
- Таунхаус: Таунхаусы могут быть более доступными с точки зрения стоимости, особенно если у них нет большой территории.
Оба типа имеют свои преимущества и недостатки, и выбор между коттеджем и таунхаусом будет зависеть от ваших предпочтений, бюджета, потребностей и обстоятельств.
Дуплексы, таунхаусы и квадроксы – основные отличия
Всё больше иностранных названий появляются на современном рынке недвижимости. Что такое коттедж, знают все, но не все представляют, какие бывают разновидности, и в чём их основные отличия. В этой статье мы постараемся разобраться в них. Это даст необходимые знания для выбора подходящего загородного жилья.
Существуют несколько типов коттеджей. Из наиболее распространённых — дуплексы, квадроксы, а также таунхаусы классического вида. В дуплексах могут жить отдельно две семьи, в квадроксах — четыре, ну а в таунхаусах — восемь и более семей. Обычно из таких домов образуют целые посёлки и даже улицы.
Таунхаусы

В развитых европейских странах такой тип недвижимости, как таунхаус уже давно вошёл в норму. Однако для российского жителя это пока относительное новшество, которое именно сейчас переживает свой рассвет. Можно смело сказать, что сегодня коттедж типа «таунхаус» становится очень популярным решением и прочно входит в сферу загородного строительства жилья.
Таунхаус — это сблокированные между собой малоэтажные (обычно двух- или трёхэтажные) дома, примыкающие друг к другу боковыми стенами. Рядом с домами часто располагаются участки размером от 1 до 4 соток. Для каждой квартиры предусмотрены изолированные входы с улицы.
По сравнению с обычной городской квартирой можно выделить ряд безусловных преимуществ таунхаусов:
- свободная планировка комнат
- хорошая изоляция от соседей (благодаря толстым стенам, и грамотной планировке комнат)
- экологическая чистота (из-за того, что обычно таунхаусы располагаются за городом, но, в тоже время, не слишком далеко)
- наличие собственного гаража
Дуплексы

Архитектурно дуплекс представляет собой жилой малоэтажный дом cдвумя отдельными квартирами. Он предназначен для двух семей. Обычно предусмотрен один общий вход в прихожую. Именно в прихожей есть разветвление на две квартиры, которые имеют общую стену. Однако в последнее время встречаются дуплексы с раздельными входными дверьми квартир.
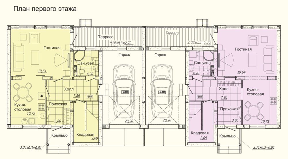
Проще говоря, дуплекс — это таунхаус для двух семей. Безусловно, купить или построить, а затем и содержать такой дом гораздо выгоднее, чем обыкновенный коттедж для одной семьи. Обычно это строение среднего размера – от 400 до 600 кв. м, где на первом этаже располагается гараж, просторная гостиная, большая кухня-столовая и терраса, комната для гостей, санузел и кладовая. Конечно, многое зависит от архитектурных пожеланий владельцев, но на втором этаже обычно имеются четыре спальни и две ванные комнаты.
Планировка комнат совершенно свободная, и обычно при строительстве заранее обговаривается с застройщиком
Поскольку стены в дуплексах толстые, а шумоизоляции уделяется особое внимание, соседи вряд ли будут как-то мешать друг другу
Квадроксы (квадрохаусы)

Квадроксы — это дома, состоящие из четырех секций. Как-бы — из четырёх отдельных коттеджей. Такие строения рассчитаны на проживание в них четырёх семей. Особенностью архитектурной конструкции квадрокса можно назвать то, что основные несущие стены расположены крестом с пересечением в центре и делаются несколько толще остальных. Как и в случае с дуплексом, такое решение позволяет увеличить степень шумоизоляции. Таким образом, соседи не будут доставлять друг другу неудобства. На этом, в целом, отличия квадрохауса от таунхауса заканчиваются.
Каждый коттедж, входящий в квадрокс может быть двух- или трехэтажным. Вертикальная планировка выполняется в соответствии с пожеланиями жильцов. Для каждого коттеджа предусмотрен отдельный вход, гараж и небольшой земельный участок рядом с домом.
Преимущества дуплексов, таунхаусов и квадроксов
Подобные разновидности домов на российский рынок недвижимости пришли не слишком давно. Однако уже сейчас такие коттеджи пользуются большой популярностью. Во многом это обусловлено удобством, уютом и заманчивой ценой.
Главным преимуществом таких форматов коттеджей, безусловно, является финансовая сторона вкупе с удобством и уютом. Ведь это настоящий загородный особняк, который стоит как средняя квартира. Обладатели дуплексов, таунхаусов или квадроксов получают дом в несколько этажей с отличным земельным участком и гаражом. В таких домах также установлена автономная система отопления, что само по себе является огромным плюсом.
Это отличное решение для людей, которые всегда мечтали жить на природе, но при этом недалеко от города. Ну а доступная цена делает это решение идеальным вариантом для семьи со средним уровнем доходов.
Особенности
Дуплекс больше похож на таунхаус. В России такой вид недвижимости не так распространен, как в странах Европы и США. В нашей стране принято полагать, что между определением «дуплекс» и «таунхаус» следует ставить знак равно. Но это неверно.
Дуплекс подразумевает не только отдельный вход, но и отдельные санузлы, отдельные гаражи и отдельные приусадебные участки, которые принадлежат каждому из владельцев дуплекса. Стоимость достаточно высокая, что говорит о повышенном уровне комфорта.
Планировка дуплекса
Каждый дуплекс – полноценное и современное жилье, состоящее из двух и более этажей. На первом этаже обычно:
- гостиная;
- кухня;
- ванная комната;
- подсобка.
На втором этаже:
- спальни;
- небольшой коридор;
- ванная;
- балкон.
Квартира ближе к центру города выйдет даже дороже. Комнат в доме больше, а дом находится подальше от городского шума и суеты.
Планировка в каждой секции идентична, и владельцы могут обустроить комнаты, как хотят. В США недавно начали строить дуплексы не из двух, а из трех секций. Третья секция – общая для жильцов. В ней – тренажерные залы, прачечные, кинотеатры и не только.
Дуплекс: плюсы и минусы
Причины популярности этого нового типа жилья кроются в его очевидных преимуществах:
1) Доступная цена. Для частного дома стоимость двухквартирного дома очень приемлема, при этом вы получаете не только загородный дом, но и прилегающий участок земли с парковкой и личным гаражом. Сэкономив на строительных материалах и общих коммуникациях, застройщик может свести бюджет к минимуму.
2) Удобное расположение. В России двухквартирные дома строятся на участках, предназначенных для дачного строительства. Однако строительство террасных домов и домов на сельскохозяйственных землях запрещено. Инфраструктура дачи обычно формируется на оптимальном расстоянии от города, с которым налажено транспортное сообщение.
3) Энергоемкость. Дачные дома — это энергоэффективные и инновационные жилища. Они проектируются с учетом ориентации здания на кардинальные точки, со стеклянным фасадом и южной экспозицией. Это позволяет снизить расходы на отопление за счет использования естественных источников тепла и света.
4) Отношения с соседями. В доме с двумя основными жилищами соседи находятся только с одной стороны, что позволяет легче договариваться и решать общие проблемы. Сдвоенные дома, расположенные рядом с элитными домами, обычно покупают состоятельные люди, поэтому риск скандалов и бытовых «разборок» сведен к минимуму.
Что касается недостатков, то одним из негативных аспектов проживания в двухквартирном доме может быть шум из соседней части. Эту проблему можно решить на этапе планирования или по завершении строительства, используя специальный строительный материал с пустотами, который повышает звукоизоляцию. Кладовые и подсобные помещения вдоль смежной стены являются дополнительным барьером для распространения звука.
В редких случаях, но нередко, могут возникнуть проблемы с использованием общего двора. Если соседи не могут договориться о том, как использовать общую территорию, можно возвести забор и отделить ваш двор. Чем больше разногласий между соседями, тем выше должен быть забор! Хотя на практике большинство общих территорий обустроены как детская или спортивная площадка, зона отдыха, бассейн, беседка со скамейками, озелененный сад, по договоренности жильцы и семьи, живущие под одной крышей, становятся друзьями и всячески помогают друг другу.
Планировка
В связи с тем, что коттеджи пришли к нам из Европы, они имеют свои особенности планировки. На первом этаже расположены объекты дневной зоны:
Кухня.
Гостиная.
Столовая.
Также на первом этаже может располагаться спортивный уголок, рабочий кабинет, библиотека. Для удобства здесь должен быть обустроен санузел. Второй этаж занимают объекты ночной зоны – спальни для хозяев и гостей. К каждой из них должна примыкать ванная комната.

Схема планировки двухэтажной постройки
Стоит оговорить вариант обустройства гостиной на европейский манер. Как правило, это первая комната, в которую попадают посетители дома. Она самая большая по площади и одновременно выполняет роль прихожей, так как обеспечивает передвижение между большинством комнат на этаже. Здесь может располагаться лестница на второй этаж и выход на террасу, если она есть.
Важно, чтобы гостиная была обустроена большими окнами. Это обеспечивает достаточное попадание естественного света, что способствует созданию уюта и комфорта
Конечно, каждый проект индивидуален, и планировка может отличаться. Особенно если дом строится под заказ. К примеру, при возведении здания может быть обустроен цокольный этаж. Он выполняет роль погреба для хранения припасов, вина или уютного места для отдыха с бильярдным столом или другими приспособлениями. Также можно задействовать чердачное помещение, если это позволяет сделать его площадь.
14



Поселки от Авирон Девелопмент
Продолжим сравнивать дом и таунхаус: отличия будут замечательно видны по предложениям нашей компании. Мы создаем и продаем недвижимость в четырех регионах Воронежской области.
БЕРЕЗКА ALL SEASONS
Мягкий микроклимат Рамонского района, красоты заповедника, тихая озерная гладь – природа создала все условия для отдыха. Ну а для тренировок и занятий спортом есть специально оборудованные площадки и лодочный причал. Архитектура зданий общая: европейский стиль всегда выглядит престижно.
Подача газа осуществляется через собственный распределительный пункт, водоснабжение централизованное, подстанция круглосуточно обеспечивает электричество. Охрана тоже работает в формате 24/7.
ЛЕСКОВО
Семилуки – идеальное место для молодых семей. Потому что соседи – такие же позитивные и дружелюбные пары с детьми. Для детей есть все – от игровых площадок для волейбола, тенниса и футбола до образовательного центра в 3 км от поселка, куда регулярно ходит автобус.
Взрослые сполна насладятся прогулками по берегу Дона и Ведуги, посещением СК «Донгор», покорением велотреков. Интерактивное ТВ и высокоскоростной интернет – отдельные преимущества.
Электропитание обеспечивается за счет двух независимых подстанций. Чистую воду жители получают из артезианских скважин.
ЛЕТНИЙ БЕРЕГ
Выбравшие этот вариант люди не сомневаются, что лучше, таунхаус или дом в коттеджном поселке, ведь здесь они получают полную свободу в создании собственного жилья. Можно купить только участок или приобрести землю с уже готовым к въезду и комфортабельным зданием.
Инфраструктуру для них уже сделали: провели газ, свет и воду, обустроили пляжи, обеспечили круглосуточную охрану, в непосредственной близости возвели ТРЦ, магазины, пекарню.
Неподалеку есть местная достопримечательность – Свято-Богоявленский храм.
ПАРУС
Вариант для жизни класса люкс – с окнами, выходящими на берег реки Воронеж, с возможностью покорять воду на яхте, катере, скутере, лыжах (причал предусмотрен, спортинвентарь в аренду предоставляется).
Крайне перспективная недвижимость, в которую можно вселяться прямо сейчас. Все коммуникационные линии выделенные, вы не зависите от поломок соседей. Служба охраны круглосуточно обеспечивает безопасность.
Проектирование таунхауса иди дуплекса с эркерами
Этот вид таунхауса обладает довольно сложной конфигурацией, поэтому и итоговая стоимость строительства немного выше. Но затраты полностью окупаются эффектным внешним видом строения. Внутреннее оформление танхауса в эркерах тоже довольно оригинальное и привлекательное.
В домах на 2 семьи зачастую строится общая котельная, что позволяет сэкономить небольшое количество площади. Коридор достаточно просторный, поэтому может выступать в качестве продолжения гостиной.
Кухня выступает в качестве отдельной изолированной комнаты. При наличии открытой планировки, когда кухня соединена с залом, дуплекс кажется более уютным и просторным. Но выделение отдельного помещения для кухни имеет определенное преимущество, главное из которых заключается в защите гостиной от въедливых запахов еды.
Планировка
В связи с тем, что коттеджи пришли к нам из Европы, они имеют свои особенности планировки. На первом этаже расположены объекты дневной зоны:
Кухня.
Гостиная.
Столовая.
Также на первом этаже может располагаться спортивный уголок, рабочий кабинет, библиотека. Для удобства здесь должен быть обустроен санузел. Второй этаж занимают объекты ночной зоны – спальни для хозяев и гостей. К каждой из них должна примыкать ванная комната.
Схема планировки двухэтажной постройки
Стоит оговорить вариант обустройства гостиной на европейский манер. Как правило, это первая комната, в которую попадают посетители дома. Она самая большая по площади и одновременно выполняет роль прихожей, так как обеспечивает передвижение между большинством комнат на этаже. Здесь может располагаться лестница на второй этаж и выход на террасу, если она есть.
Важно, чтобы гостиная была обустроена большими окнами. Это обеспечивает достаточное попадание естественного света, что способствует созданию уюта и комфорта
Конечно, каждый проект индивидуален, и планировка может отличаться. Особенно если дом строится под заказ. К примеру, при возведении здания может быть обустроен цокольный этаж. Он выполняет роль погреба для хранения припасов, вина или уютного места для отдыха с бильярдным столом или другими приспособлениями. Также можно задействовать чердачное помещение, если это позволяет сделать его площадь.
14




Что лучше купить?
Однозначный ответ, что лучше выбрать, дать нельзя. Все зависит от финансового состояния, личных предпочтений семьи. Зная особенности каждого здания, их плюсы и минусы, легко определиться с наиболее подходящим вариантом.
Таунхаус, дуплекс и обычный частный дом – это те типы построек, которые обладают собственной инфраструктурой, приватной территорией, земельным участком, гаражом, подъездом, стоянкой и прочими дополнительными удобствами. Любое из этих зданий подходит для постоянного проживания семьи.
Что касается таунхаусов, то дискомфорт может вызывать стыковка боковых стен с соседями и общие коммуникации. Но зато такой вид жилья стоит недорого. Дуплексы и таунхаусы имеют немало признаков городских квартир. Но на практике эти постройки мало чем отличаются от загородного дома.
Прилегающая территория таунхаусов небольшая. При ее облагораживании придется считаться с соседями. Такой вид жилья оптимален для тех, кого устраивает проживание в городской квартире, но хочется больше тишины и хорошей экологии. Частный дом – выбор для тех, кто планирует вести домашнее хозяйство, иметь свой сад или огород.
Таким образом, существуют различные виды построек для постоянного либо временного проживания: таунхаус, частный дом, дуплекс, пентхаус, коттедж. Что лучше выбрать, зависит от предпочтений, размеров семьи, финансового состояния.
Тем, кому по душе проживание в поселке, кто хочет иметь свой личный сад, огород, стоит выбрать частный дом. Такая постройка относительно недорогая. Роскошным видом жилья является пентхаус. Но такая недвижимость очень дорогостоящая, поэтому позволить ее покупку может далеко не каждая семья.
Дорогие читатели, информация в статье могла устареть, воспользуйтесь бесплатной консультацией позвонив по телефонам: Москва +7 (499) 938-66-24, Санкт-Петербург +7 (812) 425-62-38, Регионы 8800-350-97-52
Плюсы дуплекса
В коттедже застройщики предлагают гораздо большую жилую площадь за меньшую цену по сравнению с городской квартирой. Дуплексы редко выбирают для одиночного проживания. Как правило, это альтернативный вариант для большой семьи, который обойдется значительно дешевле, чем целый дом. Площадь стандартного дуплекса — 100-150 кв. м. В категории элитных застроек встречаются дома и с большими площадями, но редко; при необходимости огромных жилых пространств есть смысл задуматься о покупке целого дома.
Помимо возможности владельцев жить в большом доме за адекватную цену, у дуплексов есть ряд других преимуществ:
— Мало соседей. Иногда люди выбирают квартиры на последнем этаже, чтобы не слышать шум жильцов верхней квартиры. В дуплексе проблема соседей минимизирована: остается только одна семья за общей стеной. А если изначально покупать дом пополам с друзьями, обстановка будет максимально комфортной.
— Наличие придомовой территории. Как правило, это небольшая площадь, но ее достаточно для размещения гаража, уличной беседки, детской площадки, клумб или места для барбекю.
— Инфраструктура и экология. Современные дуплексы часто строят в уже заселенных районах ближайшего пригорода. Таким образом, будущие жильцы получают не только развитую инфраструктуру с магазинами и образовательными учреждениями, но и свежий воздух.
— Низкая стоимость обслуживания. Если у вас в собственности целый коттедж, то вы полностью берете на себя расходы на замену коммуникаций, ремонт и реставрацию фасадов. В дуплексе все траты делятся поровну на две семьи.
— Удобен для сдачи. Можно выкупить обе части части. В одной живет владелец, а вторая сдается арендаторам, которых можно контролировать без лишних затрат времени.
Как выбрать себе таунхаус
При выборе дома в первую очередь нужно исходить из собственных интересов и потребностей:
- нужен для постоянного проживания или только на выходные и лето,
- нужен ли большой участок, или достаточно 50-100 квадратных метров для зоны барбекю,
- принципиально ли единоправное владение домом и земельным участок или готовы приобрести недвижимость в общедолевую собственность,
- важны ли юридические статусы недвижимости и земельных участков.
И исходя из этих моментов, планомерно подходить к выбору объекта. Любая недвижимость покупается на долгий срок и приобрести ее проще, чем потом продать, если вдруг в какой-то момент, она перестанет удовлетворять требованиям проживающих.
Продажа загородного объекта недвижимости, более хлопотное и трудоемкое мероприятие, поэтому при выборе и покупке стоит задумываться о возможной продаже в будущем. Чем ликвиднее и прозрачнее будет объект, тем быстрее найдется на него покупатель.



































