Советы по отделке и покрытию
Поклонники экологического образа жизни уверяют, что деревянные поверхности в бане обрабатывать не только не нужно, но и вредно: пропитка, краски и лаки при нагревании дают резкий химический запах и выделяют вредные летучие вещества. Это справедливо, если пользоваться обычными средствами. Но если оставить дерево в первозданном виде, через некоторое время мебель, подголовники, обшивка стен и потолка потемнеют, станут пористыми, в них въестся грязь, а в микропорах и трещинах разрастётся грибок.
Для современного занятого человека, не желающего пользоваться пропиткой, есть лишь два пути:
- редко ходить в баню и хорошо её просушивать, что отсрочит вышеуказанные процессы, но не отменит их;
- каждые два или три года полностью менять обшивку мебели, стен и потолка.
Если не хочется обрабатывать дерево специальными пропитками, каждые два-три года придётся полностью менять обшивку мебели, стен и потолка
Применение пропиток
Единственный полноценный выход — ещё на этапе строительства воспользоваться современными составами, способными выдерживать высокую температуру и влажность без вреда для человека, защищающими от грибка и гнили. Они бывают разные. Те, что годятся для потолка, не всегда можно использовать для мебели.
Пропитки для потолка не всегда подходят для обработки банной мебели
Таких средств производителями лаков и красок выпускается много — Сенеж, Рогнеда, Dulux, Tikkurila и др. Они бывают двух типов: для поверхностей, к которым мы не прикасаемся телом (потолок) и остальных. К последним требования гораздо выше, так как они не должны образовывать обжигающую лаковую плёнку. Для банной мебели применяются средства с водоотталкивающими натуральными веществами (парафин, воск, масло), прекрасно защищающими мебель и безвредными для человека.
Таблица: назначение и особенности пропиток для дерева
| Название | Производитель | Основа | Вид | Назначение |
| Supi Laudesuoja | Tikkurila | Масло | Масло | Мебель, стены. |
| Sauna Natura | Teknos | Масло | Желеобразная консистенция | Мебель, стены. |
| Eurotex Сауна | «Рогнеда» | Масло | Аквалак | Мебель, стены. |
| Supi Saunavaha | Tikkurila | Масло | Универсальный состав | Мебель, потолок, стены, двери, пол. |
| Dulux Celco Sauna | Akzo Nobel, Dulux | Лак | Защитный лак | Потолок, двери, пол. |
| Elcon Sauna | Elcon | Силикон | Пропитка | Потолок, двери, пол. |
Специфика нанесения защитных составов
Выбранное средство необходимо правильно использовать.
- Первое нанесение производится сразу после изготовления мебели на сухую и чистую поверхность или ещё на деревянные заготовки.
- Средство нужно равномерно распределить губкой, мягкой тканью или кистью. Из-за густой консистенции краскопульт не подойдёт.
- После высыхания первого слоя те места, которые будут подвергаться максимальной нагрузке — сиденья, подголовники, стены в области полка — нужно обработать ещё раз.
- Затем баню протопить. При нагревании обязательно выделится излишек пропитки: его вытереть тряпками.
Средство нужно равномерно распределить по деревянным поверхностям, используя губку, мягкую ткань или кисть
Создание чертежа перед изготовлением полки в бане своими руками
Чтобы итог Вашей работы порадовал Вас и Ваших близких, прежде чем приступать к изготовлению полки, нужно выполнить замеры и сделать чертеж схемы расположения будущего изделия.

Для начала составьте план комнаты, где будет размещена полка, пропишите все измерения, обозначьте расположение банной утвари и печки, окон и дверей. Это необходимо сделать, чтобы удачно расположить Вашу полку, потому что она должна быть в первую очередь безопасной. Не стоит ставить лавку рядом с окном или слишком близко к печке.
Банные полки могут быть следующих конфигураций:
- Г-образной формы – такие полки устанавливаются в углах;
- во всю длину стены;
- несколько банных полок, расположенных параллельно друг другу на противоположных стенах подобно койкам в вагонах пассажирских поездов.
Нарисуйте несколько планов расположения полок, после чего выберите наиболее оптимальный и подходящий Вам вариант. При этом Вы должны учесть все мелочи вплоть до количества ступенек, ручек и спинок.

Важные особенности конструкции полка
- Предпочтительно монтировать открытые снизу конструкции, чтобы они хорошо проветривались снизу, не препятствовали вентиляции помещения и позволяли легко выполнять уборку пола.
- Чтобы вода быстрее стекала с полка, он выполняется с небольшим уклоном.
- Между полом и вертикальными стойками полка следует монтировать подкладки из пластика или плотной резины – это предупредит гниение древесины стоек и продлит срок службы конструкции.
- Банный полок должен эстетично выглядеть, иметь гладкую поверхность и закругленные уголки досок. Элементы конструкции необходимо плотно подгонять друг к другу, чтобы полок не шатался и не скрипел.
Способы крепления досок
Особое внимание уделяется креплению досок полка и других внешних элементов – важно исключить возможность случайного контакта с металлом шурупов или гвоздей во время пользования парной. Существует несколько способов крепления:
Существует несколько способов крепления:
- Проще и быстрее всего глубоко утапливать шляпки саморезов в древесину.
- Можно крепить саморезы с тыльной стороны конструкций.
- Наиболее трудоемкий, но максимально безопасный и экологичный вариант – применение дубовых клиньев, которые забиваются в заранее выполненные отверстия.
При желании на стену, к которой крепится полок, монтируется спинка – обычно это три доски, набитые на вертикальные стойки из брусков. Спинка позволяет с удобством сидеть на полке, не боясь обжечь спину об обшивку парилки. Спинка изготавливается из того же материала, что и полок. Между досками следует оставить зазоры для вентиляции.
Для повышения комфорта на торцевой стене можно набить брусочки для опоры ног: рекомендуется лежа на полке поднимать ноги выше головы, чтобы они быстрее прогревались.
Рекомендации по устройству полок для бань
В баню можно установить полки в количестве двух элементов, одна из которых представляет собой опорную стойку, сделанную с применением толстого бруска. Другим элементом будет, соответственно, сиденье. Эта конструкция будет являться стандартным полоком. Его опорная стойка будет состоять из двух балок, которые устанавливаются с учетом размера ширины лавки. Их соединяют с помощью перемычек через каждые 0,5 м. Сделать полок можно при наличии специального каркаса из дерева, что займет больше времени, чем изготовление обычных полок в парилке своими руками.

Высота потолка и полков для семейной парной.
Опорная стойка должна иметь каркас, на который требуется набить ряд тонких досок, получая щель между ними до 2 см. При изготовлении сиденья учитывается наклон, который должен обеспечить лучший сток воды. Основную сложность при изготовлении полок для бани представляет подбор крепежного элемента. Здесь требуется соблюдение техники безопасности, поскольку посетитель бани может получить ожог о горячий металл шурупов или гвоздей, если соприкоснется с ними.
Выбор правильных размеров полок предполагает знание следующих основных моментов:
- делая полки для бани, учитывают их стандартные размеры, которые должны составлять от 40 до 60 см;
- если предусматривают минимальную длину лавки около 1,5 м, то верхнюю полку или ступеньку делают просторнее, то есть около 90 см;
- если длина полки 90 см, то это оптимальный вариант для сиденья, а для лежания с согнутыми и вытянутыми ногами предусматривают полки длиной в 150 см и более 180 см;
- если скамейка будет иметь длину 95 см, то это позволит сесть на нее, вытянув обе ноги и приподняв их.
Для определения высоты полок используется лежачее либо сидячее расположение человека. Это учитывается и перед тем, как сделать полок. Поэтому верхняя полка и потолок должны находиться на 1,2 м друг от друга. Данное расстояние должно позволять получить наслаждение от вдыхания горячего воздуха.
Верхнюю полку обычно устанавливают на один уровень с дверцей в верхней части каменки. Между отдельными ярусами полок можно предусмотреть расстояние около 60 см. Полки и скамейки в бане могут иметь различную форму, им можно придавать вид лежанки с упором для головы, предусмотреть наличие спинки.
Особенности ухода
Чтобы содержать стеллажи в чистоте и продлить срок их службы, необходимо:
- Серьезные пятна, загрязнения устранять щеткой.
- Для легкой регулярной уборки от пыли использовать хозяйственное мыло.
- Не допускается применение любых химических моющих составов, стирального порошка.
- После каждого посещения парной тщательно просушивать лавки и помещение целиком, следить за исправностью вентиляции.


Сделать лавки в парную можно и самому, следуя инструкциям мастеров
Важно ответственно подойти к выбору породы дерева, тщательно продумать форму, размеры, расположение и обработку полок, чтобы находится в парной было комфортно и безопасно для здоровья
Как сделать полки в баню своими руками
Самым распространенным крепежом для деревянных полок (полог, палати, полати) являются шурупы. Использование гвоздей не рекомендуется профессионалами, так как они не обеспечивают должной прочности. При необходимости разбора полок возникают сложности, так как снять их без механических повреждений очень непросто. При использовании шурупов разборка осуществляется легко. Можно без труда снять их для обновления или замены на новые экземпляры.
По возможности нужно крепить доски изнутри полка. Такой способ монтажа позволяет полностью скрыть шурупы, что помогает нивелировать риск обжечься о раскаленный металл во время парения. Если такое крепление сформировать не удается, нужно предварительно сделать отверстие под шляпку крепежного элемента.
Для создания каркаса применяется простой алгоритм работ:
- Делается разметка под крайнюю стойку. На стойки нужно поместить и укрепить резиновые прокладки.
- Предварительно осуществляется монтаж двух самых верхних балок. Они должны быть скрепленными со стеной и стойками.
- Верхние балки, которые помещаются с двух боков конструкции, нужно прикрепить к стойками и верхним балкам.
- Передние вертикальные стойки нужно поставить и придерживать. К ним прикрепляются крайние боковые балки.
- Передние брусья, которые замыкают конструкцию и делают общий вид похожим на раму, нужно установить, скрепив их с ближайшими вертикальными и соседними балками.
- Нужно проконтролировать правильное, ровное расположение рамы. Для этого используется уровень и рулетка.
- Нижняя рама собирается также, как верхняя, контролируется правильность расположения брусьев.
- Нужно проверить соответствие замерам, еще раз обследовать все углы и перемычки с помощью уровня. Убедившись в правильности выполнения работ, застройщик может прикрепить к рамам перемычки из тонких балок.
- Все крепления шурупов нужно закрутить до упора.
Правильный монтаж полков очень важен для удобства при парении и уходе за парилкой. Если обшивка выполнена и по боковой, и по лицевой сторонам, то доступ к полу полностью закроется, что усложняет очистку помещения. Рекомендуется делать частичную обшивку, чтобы можно было легко соблюдать гигиенические нормы.
Все детали нужно проверять на наличие повреждений, брак сразу откладывается. Все элементы должны быть прикреплены с внутренней стороны. Сложности может представить монтаж досок, располагаемых по горизонтали. Нужно постараться закрепить как можно больше досок изнутри, чтобы делать минимальное количество креплений с помощью заглушки штифтами.
Изготовление полока (полки) для бани своими руками.
Схемы и чертежи полок (полог) в баню для самостоятельного изготовления.
Чем обуславливаются размеры лавок
Полки в баню изготавливают многоступенчатыми, так как пар вместе с нагретым воздухом поднимается к потолку, а затем, остывая, часть его аннулируется по вентиляционному ходу, а оставшаяся часть ложится обратно вниз. Поэтому чем выше ряд лавки, тем больше там будет температура. Благодаря многоярусной конструкции у посетителей есть возможность самостоятельно подобрать для себя температурный режим в парилке.
Чтобы смастерить полок в бане своими руками нужно соблюдать традиционное выполнение конструкции в виде лестницы, чтобы любители жаркого и щадящего микроклимата смогли найти свое место отдыха в парной. Традиционно в русской бане присутствует только две полки, но не запрещено построить их на свое усмотрение несколько, если, конечно, баня больших размеров.
Правильные размеры банного полка
Полок в три уровня — самый распространенный вариант в России
В русской бане такие варианты не подходят – они мешают парильщику. Полки желательно выполнять в один уровень.
Чтобы изготовить удобные для сидения и лежания места, следует ориентироваться на следующие пропорции:
Высота полка в русской бане
Высота полка должна соответствовать росту парящего. Чтобы парильщику не приходилось нагибаться или, напротив, работать руками на некомфортной высоте, полок должен располагаться на уровне косточки большого пальца опущенной руки. В среднем это высота в 70-80 см.
Между полком и потолком парилки желательно оставить расстояние не менее 110 см, в этом случае на полке можно не только лежать, но и комфортно сидеть.
Длина и ширина
Полок должен быть удобным для лежания, поэтому длина – не менее 220 см, чтобы не упираться головой в стену и не свисали ноги. Ширина – около 90 см.
Полки и скамьи в парилке располагают вдоль стен без окон, на всю ширину стены. Количество полков зависит от размеров парилки. Если позволяет место, ширину основного полка можно сделать для двоих – это уже будут палати.
Если пространство ограничено, используется вариант «купе» – скамья и полок примыкают к одной стене, полок откидывается и фиксируется для удобства сидения на лавке. При необходимости полок возвращается в исходное положение. Другой вариант: нижняя скамья выполняется выдвижной, а полок крепится стационарно.
Пошаговое руководство по изготовлению полока в бане
Все приведенные ниже рекомендации однотипны для всех конструкций, независимо от формы, конфигурации и тому подобное.
Выбор древесины
Баня характеризуется постоянными перепадами температуры, ее высокими значениями и избыточной влажностью в парилке. Уже понятно, что любое дерево для полока не подходит. Кроме устойчивости к внешним факторам, следует учитывать и особенности пород. Хвойные для полока не используются по нескольким причинам.
Во-первых, не каждый человек выдержит терпкий, специфический запах, который исходит от разогретой древесины. Во-вторых, при повышении температуры на поверхностях всех частей полока начнет выделяться смола. Вряд ли кому понравится систематически «прилипать» то к его сиденью, то к спинке.
Рекомендации:
Расположение полока в парной
Чтобы грамотно подобрать размеры изделия и составить чертеж, нужно определиться с местом установки полока, а также особенностями его конструкции.
Рекомендации:
- Для парной вытянутой формы целесообразно устанавливать полок вдоль стены, на которой нет оконного проема. Как вариант – углом, с примыканием (частичным) к смежным стенам.
- При достаточной ширине помещения полки, как правило, располагаются друг напротив друга. Их установка вдоль противоположных стен намного удобнее, если это просто лежак. Для конструкции многоступенчатой выбрать место значительно проще. Однако для скромной по размерам баньки делать более двух уровней не рекомендуется. Если потолки низкие, то использование 3-го яруса под вопросом. По сути, надобности в нем нет.

Размеры
Уже отмечено, что они определяются произвольно, но есть отдельные рекомендации, которые желательно учесть.
- Высота стеллажей. Она должна быть удобной для сидения, а также для перемещения с яруса на ярус. Для нижнего – 40, среднего – 75±5, верхнего – 115±5.
- Ширина лавок. В пределах 80 – 90. Достаточно, чтобы и лежать было удобно, и не «скрадывать» полезное пространство в парилке.

Заготовки для полока:
- Доска – толщина не менее 20 см.
- Брус – со стороной 50 или 70 мм, в зависимости от габаритов и количества ярусов полка.

Линейные размеры подбираются в соответствии с составленным чертежом.
Если определены все размеры и грамотно составлен чертеж, то сложного ничего нет. Фото все хорошо поясняют.

Рекомендации
- Для скрепления конструктивных частей гвозди лучше не использовать. В-первых, не факт, что все их получится забить перпендикулярно оси деревянной заготовки. Значит, кончики где-нибудь да вылезут. Возникнут проблемы с их откусыванием или загибом. Во-вторых, гвозди раскалывают древесину, если она сухая. В-третьих, ремонтопригодность такой конструкции низкая. Поэтому только шурупы или саморезы, с предварительным сверлением отверстий и фасок. В этом случае будет достаточно просто заменить какую-либо доску или брусок.
- Полок – конструкция, по определению постоянно испытывающая динамические нагрузки. Следовательно, не стоит ограничиваться лишь метизом. Для более надежной фиксации всех частей нужно использовать и дополнительный крепеж в виде алюминиевых пластин различной конфигурации или уголков. Сталь для этих целей не подходит ввиду недостаточной устойчивости к коррозии.
- Элементы крепежа нужно вворачивать так, чтобы шляпка была утоплена полностью, причем с тыльной стороны доски или бруса. Это место потом заделывается мастикой. Иначе не избежать ожогов при высокой температуре в парилке.
- При сборке стеллажей между досками необходимо оставлять небольшие щели. Если их укладывать вплотную, то на лавке постоянно будет скапливаться влага.
Для мужчины, который привык все работу по хозяйству выполнять своими руками, рекомендаций вполне достаточно, тем более что ничего сложного в изготовлении деревянного полка нет.
Стандартные размеры банных полок
Обычно банные полки изготавливаются по следующим размерам:
- Длина полки, предназначенной для лежания на ней с вытянутыми ногами, обычно составляет 1,8 метра. Конечно, совсем не обязательно подгонять полку в соответствии с данными, приведенными в этой статье – корректируйте значения, делая поправки на собственный рост. Мы представляем лишь средние значения.
- Ширина полки, как правило, составляет около 0,6 метров. Однако можно увеличить значение этого параметра, чтобы можно было расположиться на полке поперек, с согнутыми в коленях ногами.
- Ступеньки к полке можно сделать шириной в 0,4 метра. На такой ступеньке будет удобно стоять парильщику, а также на нее можно будет сесть, если на верхней полке станет слишком жарко.

Корректировать указанные значения следует только в большую сторону. При меньших размерах полка и ступени будут слишком узкими и неудобными.
Полки в бане своими руками: пошаговое руководство
Собираясь самостоятельно изготовить полок для бани, следует подобрать подходящее дерево (обычно для лежаков и отделки стен используется одна порода): липу, осину или ольху. Стоит отметить, что из этих трех пород ольха имеет наиболее привлекательный внешний вид, осина больше всего подходит по эксплуатационным показателям, а липа – наиболее бюджетное решение.
Далее учитываются:
- предполагаемое количество посетителей, их весовые и габаритные характеристики;
- размеры и форма помещения парной;
- тип сидений (стационарные, откидные, выдвижные);
- планируемый температурный режим (и уровень влажности);
- предпочитаемый вариант пребывания в парной – сидя, лежа, с активной обработкой веником, поддачей пара;
- способы подготовки материалов.
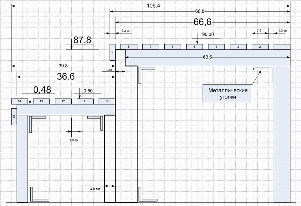
Ниже представлен полок в бане (чертеж) с видом сбоку и в изометрии.
Указанные размеры и высота полков в бане стандартные, их можно немного изменить в соответствии с личными предпочтениями.
Этапы монтажа (как сделать полок в бане) показаны на пошаговых фото и в небольшом видеоролике.
После выбора конструкции необходимо определиться с местом крепления полка – на стене (как в пошаговом руководстве) или полу. При этом не следует забывать о необходимости частой уборки.
Пологи в баню своими руками изготавливаются с использованием деревянного крепежа или же скрепляются металлическими деталями так, чтобы они были скрыты под деревом. В противном случае металл может сильно обжечь кожу. Обычно для крепежа применяют саморезы с заглушками (деревянными или пластиковыми), уголки «с изнанки», дубовые или изготовленные из того же дерева колышки.
Важно:
- использовать для полков необработанное, плохо просушенное, с сучками или трещинами дерево нельзя;
- материал каркаса и настила должен совпадать;
- материал стены в месте крепления необходимо обработать не менее тщательно, чем древесину для лежаков;
- размеры полок в парилке подбираются индивидуально, но с ориентацией на стандарты.
Как сделать полки своими руками ‒ пошаговая инструкция
После разработки чертежа можно переходить к подготовительным работам.
Материалы, инструменты
Из материалов понадобятся:
- Бруски или толстые доски для каркаса. Стандартное сечение ‒ 50*50 мм, 50*80 мм, максимально допустимое ‒ 100*100 мм.
- Обрезные доски, вагонка для настила. Толщина ‒ до 25 мм. Ширина берется не более, чем в 4 раза больше толщины. Количество зависит от шага крепежа. Рекомендуемый шаг фиксации ‒ от 1 до 2 см.
- Элементы крепежа ‒ саморезы оцинкованные, стальные уголки. Для изготовления откидных полок берутся еще петли из нержавейки.
Используемая древесина не должна иметь дефектов. Поверхность проверяется на наличие шероховатостей.
Из инструментов понадобятся:
- шуруповерт;
- ножовка по металлу;
- строительная киянка;
- молоток;
- рулетка, карандаш;
- стамеска;
- лобзик;
- наждачная бумага.
Далее следует приступать к изготовлению будущих лавок.
Процесс сборки
Нужно заранее нарезать опоры нужной длины, поперечные перемычки (длина определяется глубиной полки).
Этапы сборки такие:
- Изготовление каркаса выполняется от верхнего яруса, вплотную прилегающего к стене.
- К стенам фиксируются опорные бруски по краям будущей полки и в промежутках. Получается пояс обвязки.
- Напротив этих опор параллельно выставляется второй ряд стоек, соединяется с первым рядом поперечными перемычками.
- Такими же горизонтальными перемычками опоры скрепляются между собой, формируя наружную обвязку.
- К наружной обвязке крепится каркас нижнего яруса. Процедура повторяется пошагово в такой же последовательности.
Чтобы минимизировать воздействие влаги на опоры перед тем, как крепить настил, на них фиксируют резиновые или пластиковые прокладки.
Для укладки настила:
- Берется обрезная доска 20*120 мм. Длина ‒ 3,5 м.
- Укладка выполняется перпендикулярно, вдоль стоек каркаса.
- Фиксируется штифтами либо деревянными гвоздями. Шаг ‒ 1‒2 см.
- Углы закругляются и тщательно шлифуются.
- Альтернатива – закрепить доски оцинкованными саморезами изнутри каркаса так, чтобы те выходили острием наружу.
- Допускается наружное вкручивание саморезов сверху вниз, но шляпки нужно тщательно утопить в доске, чтобы при нагреве человек, сидящий на полке, не получил ожог.
Есть у вертикальной обшивки и минусы. Основной в том, что это становится препятствием для быстрого высыхания дерева, усложняет уход, мытье полок.
В финских банях принято делать спинку над верхней полкой. Эту принадлежность покупают готовой или собирают самостоятельно.
На перегородку набиваются рейки толщиной до 2 см с шагом 40‒60 см, сверху которых фиксируются доски или вагонка.
Из чего сделать лучше: выбираем материал
Из чего делать лучше? Понятно, что из дерева, которому, собственно, и нет никакой альтернативы, но какие породы подходят больше всего? Мы уже писали об этом, поэтому сейчас очень кратко.
Хвойные породы категорически не стоит использовать в сауне, где высокие температуры, в русской бане — по желанию, в смешанных режимах тоже не стоит вовсе.
Дешевая осина и липа — достойные конкуренты дорогого абаша, потому что кроме низкой теплопроводности он не отличается высокой стойкостью к действию воды, грибов и пр.
Можете поэкспериментировать с другими лиственными, принимая в расчет их теплопроводность (чем выше плотность, тем выше теплопроводность — самый простой способ определиться «на глазок»), стойкость к гниению и другие характеристики. Например, дуб плотный, но в воде не портится. Как и лиственница, которая, кстати, не выделяет смолу.
Разновидности полков в парилке: распространенные варианты конструкций
Существует несколько разновидностей банных полок, которые отличаются друг от друга своими конструктивными особенностями. Целесообразность той или иной формы, а также количество ярусов определяется в зависимости от размера банного помещения и его особенностей. Данная публикация содержит информацию о наиболее распространенных разновидностях пологов.

Для парной бани часто выбирают сложные ярусные конструкции в три ступени
Ступенчатые конструкции. На сегодняшний день такой вариант расположения полок является самым популярным. В этом случае они устанавливаются вдоль одной из стен (без окна) в два или три яруса. Удобство такой конструкции заключается в увеличении степени нагрева от нижнего этажа к верхнему.
Важно запомнить, что верхний ярус ступенчатого полка в бане в парилке необходимо устанавливать выше линии котла, используемого для подогрева помещения. При этом дистанция от верхнего этажа до потолка должна быть не менее 120 см
Это необходимо для того, чтобы обеспечить максимальное удобство человеку во время сидения на такой конструкции. Такое же правило существует и в том случае, когда в парилке установлена традиционная печь.
Угловые (в форме буквы «Г») пологи. Менее популярный вариант, чем предыдущий, однако он тоже очень часто используется при организации интерьера в парилке. Подразумевается, что одна сторона конструкции будет располагаться параллельно котлу, а вторая – прилегать к одной из свободных стенок.

Деревянные полки в форме буквы «Г» располагаются одной стороной напротив нагревательной печи, а второй – на одной из свободных стен
Высота угловой конструкции может быть разной. Этот параметр подбирается в зависимости от индивидуальных особенностей помещения. Специалисты советуют устанавливать угловые полки в том случае, когда комната имеет небольшие габариты, так как они являются максимально функциональными и их не очень сложно выполнить своими руками. Полог в баню такого типа лучше всего собирать из прочных пород древесины.
Пологи-купе. Такая конструкция встречается довольно редко, однако сама идея является интересной и оригинальной. Она подходит для небольших помещений, где необходимо экономить внутреннее пространство. В этом случае два полка размещаются параллельно друг другу. Такое сооружение очень напоминает комнаты-купе в поездах (отсюда и название).
Верхние полки можно выполнить таким образом, чтобы они откидывались. Каркасная конструкция для такого полога выполняется, как правило, из опорных стоек. Эти элементы, похожие на ножки скамейки, стыкуются между собой деревянными перемычками.

Композиция пологи-купе пространственно оказывается крайне выгодной для небольших помещений бани
Для того чтобы выбрать подходящую для вашей ситуации конструкцию, рекомендуется ознакомиться с фото полок в баню. Это позволит визуально оценить преимущества того или иного варианта.
Для обшивки каркаса необходимо подобрать ровные и гладкие доски из любого подходящего материала. Главное, чтобы древесина была влагоустойчивой, прочной и переносила высокие температуры. Дистанция между досками не должна быть меньше одного сантиметра. Максимальное рекомендуемое расстояние составляет 2 см.
Из чего состоит конструкция полока
Возможно, такое названия как «полок» вы лишь недавно услышали, а раньше называли эту часть банного помещения лавкой. И это не странно, ведь это и есть специальные банные лавки, но у них бывает разная высота, и расположены они по специальной схеме. Вся конструкция состоит из двух главных элементов:
- Каркас. Он выполняет функции основы для установки досок стационарного настила, также каркас может быть основной для разборного варианта настила. Обычно для сооружения этой части полок используют опорные стойки, которые по внешнему виду похожи на ножки лавки, для соединения элементов применяют доски-перемычки. Также некоторые мастера возводят каркас способом лестничного косоура, к этой конструкции прикрепляются ступеньки банных полков. Финны также знамениты своей любовью к саунам, и при постройке конструкций финского типа применяется каркас без опор, для этого к стене парилки просто крепится железнодорожная полка.

- Настил. Это вторая часть банных полок, для нее используются небольшие дощечки, которые устанавливаются с пропуском на 1-2 сантиметра. Чаще всего используют осину или липу, а перед установкой древесину тщательно шлифуют. Как уже говорилось, крепится настил на специальный каркас, также можно сделать отдельную конструкцию типа напольного трапа. Такой вариант более удобен тем, что его при необходимости можно снять, промыть и проветрить на улице. Используется настил и как сиденье, и даже как лежанка. По такому же принципу можно соорудить спинки сидений, боковушки, и даже подушки. Некоторые мастера делают специальные приспособления для принятия водных процедур в лежачем положении, когда ноги находятся на уровне головы или даже выше.

Помещения парильни обычно небольшие по площади, ведь чем меньше квадратура, тем легче довести температуру до необходимого показателя, также это позволяет экономить. Из-за небольших размеров постройки, банная мебель обычно имеет простую, прямоугольную геометрию. Если же площадь парильни позволяет, то можно сделать своеобразную лестницу с несколькими большими ступеньками, которые одновременно будут и лежаками.

Если у вас на даче совсем небольшая баня, и нет возможности сделать прямоугольный нижний полок, то вы сможете соорудить прямоугольную конструкцию. По схеме такая конструкция будет прямоугольным треугольников, и один из катетов данной геометрической фигуры будет неплотно примыкать к стенке, а второй к смежному полку.
Технология изготовления полков своими руками: пошаговая инструкция для мастеров
Изготовление полка для парной – не такой уж сложный процесс, как может показаться на первый взгляд. Он включает в себя несколько последовательных шагов, которые стоит выполнять четко и уверенно.
- Подготавливают древесину к дальнейшим работам (шлифуют, обрабатывают углы).
- Покрывают поверхность материала специальной жидкостью с антисептическими свойствами (это позволит исключить вероятность гниения древесины в будущем).
- Делают каркас: устанавливают опорные деревянные столбы в вертикальном положении на удалении 60 см друг от друга, выполняют горизонтальную обвязку (для стойкости крепят полоки к стенкам).
Монтаж полка
- Под минимальным углом (в 2-3 градуса) крепят подготовленные тонкие доски, которые будут формировать скамейки. Для крепления досок обязательно нужно использовать специальные дубовые клинья (в отличие от гвоздей или саморезов, они не нагреваются), которые надежно скрепят конструкцию.
- Крепят полоки, оставляя небольшой пристенный зазорчик в 8-10 см (он предназначен для естественной вентиляции).
Эти несложные манипуляции позволят самостоятельно изготовить качественный и надежный полок для парной. Попробуйте воплотить в жизнь предложенную инструкцию, результат не заставит себя ждать!
Как расставлять полки
Потребуются для строительства полки в бане своими руками чертежи, а также следует произвести все необходимые расчеты. Чертится небольшой план помещения, указываются размеры, отмечаются места установки оборудования, расположение окон и двери.
Очень важно помнить, что нельзя располагать полки около стен с остекленными окнами. Под воздействием горячего пара может лопнуть стекло и осколки попадут на людей
Поэтому в парилках с окошками не так много вариантов расстановки полок в бане. Расположить их можно лишь вдоль стен, где отсутствуют окна и застекленные вентиляционные отдушины.
Существует несколько схем расположения полок:
- Вдоль одной стены в 1-3 ряда, устанавливая полки друг над другом.
- Конструкцией в виде буквы Г с различными вариантами числа степеней. Например, по 2-3 вдоль каждой стены, верхняя и нижняя полка вдоль длинной стены, а средняя вдоль соседней короткой.
- Две параллельные конструкции, расположенные вдоль противоположных стен по подобию купе в вагоне поезда. Сооружения могут быть либо симметричными, либо ассиметричными.
Внутренне обустройство бани
Устройство полок — очень важный этап строительства бани. Впечатление от любого, даже самого шикарного строения можно испортить не удачно сконструированными полками или подбором некачественного отделочного материала.
Размеры полок
Даже в самой маленькой парилке следует придерживаться рекомендаций относительно их линейных параметров.
Предельно допустимые размеры полки в баню рассчитаны с точки зрения комфорта и безопасности посетителей.
- Ширина полок в парилке напрямую зависит от ее габаритов и составляет:
- 400 мм – узкое сиденье.
- 600 мм – среднее сиденье.
- 900 мм – стандартная полка с возможностью сидеть с подогнутыми ногами.
- 1500 мм – широкая(можно лежать с подогнутыми ногами).
- Высота расположения полок определяется из расчета:
- От нижней ступени до второй полки расстояние от 1100 до 1200 мм.
- Между первой и второй полками 400-600 мм.

Удобнее всего взять один размер и перенести его на расстояние от пола до первой полки, и также между пологами
Схемы расположения полок в бане
Существует три варианта расположения полок в парилке:
- Ступенчатый, когда полки монтируются у одной стены в 2 или 3 яруса, от нижнего прохладного до верхнего — самого жаркого. Подобная конструкция подойдет для просторной бани.
- Г- образная конфигурация хороша для небольшой парной. При ней две полки — нижняя и верхняя, расположены на одной стене, а средняя на другой — соседней.

Вот так выглядит компактный угловой полок, который можно сделать из двух элементов, либо сделать монолитным
Купе — просто спасает в режиме жесткой экономии пространства в очень маленькой парилке. В помещении монтируют две полки, причем верхняя устраивается таким образом, что бы ее можно было поднять и зафиксировать на стене.
Как сделать полок в баню своими руками — чертежи и фото
Полок является непременным атрибутом любой бани. Он представляет собой специальную двух- или трехъярусную деревянную скамейку и обеспечивает комфорт от принятия банных процедур.
На таком лежаке можно полноценно расслабиться и снять накопившуюся усталость. Единственный недостаток постройки — вероятность гниения.
От выбора древесины и последующего ухода за ней будет зависеть срок эксплуатации банной скамьи.
Из этой статьи Вы узнаете, как правильно сделать полог своими руками, где лучше всего его расположить, дерево какой породы предпочесть для строительства. Для Вас мы приведем готовые чертежи с размерами пологов и фото их возможных конструкций.
Заключение
Хорошая баня должна быть не только надежным и долговечным строением, но и обеспечивать комфортные условия для банных процедур. Поэтому нужно очень тщательно подойти к вопросу его внутреннего обустройства. В этом немаловажную роль играют полки. От того, как они будут изготовлены, зависит комфорт, как для принимающего банные процедуры, так и парящего.
Поэтому необходимо знать, как построить полку. А для этого следует правильно подобрать высоту их расположения. Еще нужно учитывать и породу древесины, из которой будет изготовлен этот обязательный элемент парилки. Желательно, чтобы это было дерево лиственных пород. Тогда человек будет защищён от ожогов и получать только удовольствие от бани.





































