Зонирование 15 кв
Перед ремонтом квартиры следует определиться с функциональным назначением гостиной. Как она будет использоваться?
Комната может быть совмещена со спальней: в таком случае зона отдыха отделяется от зоны сна легкой перегородкой, ширмой или стеллажом. Для экономии пространства часто используется диван-трансформер, который в разложенном виде служит кроватью ночью.
Если гостиная служит не только местом приема гостей, но и рабочим кабинетом, то её необходимо укомплектовать письменным столом и удобным стулом. Необычным, но очень функциональным вариантом станет рабочее место, спрятанное в шкафу.

На фото гостиная площадью 15 кв, где спальное место отделено оригинальной перегородкой с зеркальным эффектом.

В прямоугольной комнате 15 кв для визуального зонирования применяются различные цвета и материалы, выделяющие тот или иной участок. Ту же функцию выполняют светильники, которые вешаются или ставятся в определенной зоне: свет не только разделяет пространство, но и делает его уютнее.
Разграничить функциональные зоны можно с помощью низких перегородок или барной стойки, если гостиная играет роль кухни.

На фото рабочая зона отделена столом, а место для отдыха обозначено мягким ковром и диваном.
Какие цвета лучше выбрать
Цвет — простой, но очень важный инструмент дизайнера. С помощью сочетания тех или иных оттенков можно добиться различных визуальных эффектов. Если гостиная находится на южной стороне дома, то в ней много солнечного света. Это позволяет использовать тёплые и холодные цвета, даже такие сложные, как голубой и серый (при недостатке естественного освещения комната будет выглядеть блеклой и безжизненной). Северные комнаты лучше оформить в светлых тонах тёплого спектра. Это разные вариации жёлтого, оранжевый, терракотовый, бежевый, персиковый, розовый.



Если задумывался ремонт комнаты с целью совместить на 15 кв. м спальню и гостиную, цветом можно разграничить зоны, как это показано на фото. Для спальни лучше не использовать слишком яркие цвета и пёстрые рисунки. Их лучше оставить для гостиной зоны. Для оформления зон отдыха и приёма гостей можно использовать разные оттенки одного цвета. Более спокойные тона лучше подобрать для спальни, а насыщенные для гостиной.


Планировка спальни
Важно предусмотреть основные нормативы размещения мебели относительно друг друга. Так, для прохода к кровати нужно минимум по 50 см с каждой ее стороны
А от комода нужно отступать место не только для того, чтобы здесь поместился человек, но и для свободного выдвигания ящичков.
То же самое относится и к шкафу с распашными дверцами. А вот шкаф-купе позволит немного сэкономить пространство за счет конструкции дверей. Кровать лучше выбирать без дополнительных ящиков для хранения.
Во всяком случае, желательно не выбирать кровать «в пол» без просвета. Ведь в противном случае уборка пространства под ней станет проблематичным занятием, а своевременная ликвидация пыли в спальне — первоочередная задача.
Разграничение территории
Спальня площадью 15 квадратных метров не является большой. Однако, при грамотном подходе этого вполне достаточно, чтобы сделать из нее очень комфортный уголок и воплотить огромное количество дизайнерских задумок.
Для этого сначала необходимо разграничить всю территорию спальни на несколько зон, каждая из которых будет выполнять различную функцию. К примеру, в одной части будет находиться место для сна, а в другой стол для работы.
Необходимо ответственно подойти к планировке, чтобы различные по функционалу части комнаты дополняли друг друга. Обычно зонирование спальни предполагает разделение спальни не более чем на 3 части.
Подбор мебели для спальни-гостиной 15 кв м
Как правило, в таких помещениях используется многофункциональная мебель, которая позволяет использовать днем и ночью одно и тоже пространство.
Диван-кровать и стол в шкафу:
Зоны имеет смысл разделить прежде всего по смыслу: диван-кровать поставить у дальней от окна стены. Рабочий стол или журнальный столик имеет смысл разместить около окна. Здесь же можно поставить кресла – так останется места больше для гостей и отдыха.

В комнате с высоким потолком удачным решением станет установка кровати-чердака
Для небольшой комнаты лучше использовать шкаф-купе с поперечным размещением штанг для вешалок. Это позволит сделать его более узким и существенно сэкономит место.
Интерьер спальни 15 кв. м в светлых тонах
Изучая многочисленные фото дизайна спальни 15 кв. м в современном стиле, можно заметить, что самые популярные сегодня оттенки декорирования этого помещения — белый, серый и все светлые тона.
Такая цветовая гамма создает ощущение свежести, расширяет пространство, позволяет отдохнуть от напряженного дня.
В спальне, оформленной в светлых тонах, могут быть несколько относительно ярких акцентов:
- шторы;
- покрывало;
- коврик;
- картина;
- обшивка мягкой мебели.
Но важно не выходить из выбранной гаммы, делать яркие тона максимально разбеленными, соответствующими основному тону интерьера.
В светлой спальне интересно будет смотреться камин. Сегодня это электрический вариант, который можно оформить снаружи под кирпичную кладку или задекорировать в тон спальне. Контраст светлых оттенков помещения и яркого пламени создаст удивительный эффект, сделает спальню еще более уютной.
Важно правильно сочетать оттенки между собой. Светлые тоже могут быть теплыми и холодными
Если выбирать белый или серый с холодным подтоном, то дополнять их можно только холодными.
Если основной тон дизайна молочный, светло-бежевый, бледно-персиковый, то дополнять и делать яркие акценты следует при помощи теплых оттенков большей интенсивности.
Выбор функционального предназначения гостиной
Для того чтобы прямоугольная гостиная продолжала долгое время радовать, необходимо правильно выбрать ее целевое предназначение. Дизайнеры советуют не игнорировать достаточно важный этап в силу нескольких причин. Во-первых, подбор мебели и ее последующее размещение зависит именно от функционального аспекта. Во-вторых, регулировка поступающего света также проводится с учетом функционального зонирования в помещении.

Перед началом оформления гостиной стоит составить план расстановки мебели на бумаге, учитывая потребности всех жителей дома
На бумаге необходимо нарисовать прямоугольник, схематически указав интересующие функциональные зоны:
- Место для сбора домочадцев;
- Планируемое место для работы;
- Место для книжного или другого шкафа;
- Зона для кресел и дивана;
- Точка размещения электрического камина (при необходимости);
- Место установки плазменного телевизора.
Рекомендуется формировать будущий дизайн с определенным запасом пространства. В этом случае не домочадцам не придется в буквальном смысле «проползать» между плотно стоящей мебелью. На основании собранной информации благодаря созданной мини-схеме можно более или менее точно определиться с параметрами мебели и местом ее расстановки.
Зонирование шторами
Еще более недорогой способ — гостиная спальня разделенная на зоны шторами. Все что требуется — выбрать и закрепить карнизы для штор. Потом — подобрать ткани и сшить полотнища нужных размеров. Ткани используются такие же как и на окнах и они не обязательно должны быть плотными, хотя и такой вариант возможен.
Шторы могут быть и без складок – в японском стилеДрапировки по периметру — для создания уютаВидимое разделениеДвойные шторы — важно подобрать правильно карнизы
Драпировка может закрывать только «просвет», а может идти и по стенам, создавая уютную обстановку. Но этот вариант все-таки потребует достаточно средств, так как ткани нужно много.
Подобное зонирование объединенной в одной комнате спальни и гостиной номинальное, но создает требуемое ощущение уединения. Его в вариант с переносными ширмами можно использовать, в качестве временного варианта — если никак не можете определиться где именно расположить зоны спальни и гостиной, как распределить между ними площадь.
Идеи спальни 15 кв. м: нюансы и интерьер
Перед началом ремонтных работ необходимо учитывать определенные нюансы, которые помогут в дальнейшей планировке комнаты.
Советы опытных мастеров:
- Лучше заранее продумать расположение мебели в комнате, просмотреть или заказать определенные ее габариты в специализированной фирме, тогда каждая вещь будет находиться на своем месте, и подчеркивать интерьер;
- Освещение играет немаловажную роль, его можно разместить не только на потолке, но и подчеркнуть определенные ниши с предметами декора, осветить отдельно рабочее место или сделать подсветку на полу или стенах;
- Размещение выключателей и розеток должно быть одновременно незаметным и удобным, чтобы можно было смотреть ноутбук или разговаривать по телефону, сидя в удобном кресле или на кровати;
- Наличие аудио и видео техники, компьютера также необходимо спланировать заранее, чтобы создать гармоничный дизайн;
- Теплый пол, звукоизоляция должны делаться после того, как будут проведены работы с электрикой.
Независимо от того, какой стиль вы выберете для своей спальни, изначально следует определиться с размещением мебели, цветом стен и освещением
В зависимости от разнообразных стилей, можно создать спальню с любым интерьером:
- Классика предполагает наличие большой кровати бежевого оттенка, с добавлением яркого покрывала или подушек. Упростить уход за комнатой можно, используя натяжные потолки. Рядом обязательно присутствует прикроватная тумбочка, светильник и небольшой шкаф для одежды. Цветовая гама преимущественно пастельная, а добавление в дизайн элементов стиля барокко – резных ножек столов, стульев, шкафчиков, присутствие золотого оттенка способны превратить комнату в настоящую опочивальню.
- Если хозяева относятся к молодым и современным – им понравится спальня в стиле хай-тек. На стену в подобных направлениях наклеиваются фотообои с изображением ночного города, Эйфелевой башни или просто окрашивают в однотонный цвет.
- Прованс является не только интересным стилем для комнат, он еще действует расслабляющее, создавая теплоту и уют. Здесь присутствуют разнообразные цвета и оттенки – белый, серый, немного яркого лавандового, чтобы разбавить, и внести нотку свежести в интерьер.
- Для стиля минимализм характерно небольшое наличие предметов в комнате – только самых необходимых – кровати, тумбочки, шкафа и зеркала. Они должны соответствовать общей стилистики комнаты и быть в бежево-серых цветах.
Нюансы меблировки
Меблировку спальной комнаты всегда начинают с кровати. Её следует разместить так, чтобы пользоваться ей было удобно. Вот примеры установки:
- По центру. Выигрышное решение. Уместно для любого помещения, независимо от его планировки.
- Вблизи оконного проёма. Комфортное место. Такой вариант установки подойдёт, если вы планируете поставить у входа диван или шкаф.
- Изголовьем у окна. Идеальный выбор для помещения вытянутой формы.


В зависимости от желания владельца в спальне может быть установлен электрический камин, телевизионная панель, прикроватные тумбы, туалетный гарнитур.

Ремонт спальни 15 кв. м своими силами – дело трудоёмкое, но вполне выполнимое. Главное, составить план работ и чётко следовать ему.

Стилистическое решение гостиной в 15 «квадратов»
Разнообразие выбора по функционалу дает больше возможностей, когда речь идет о стилистике дизайна гостиной 15 кв.м.
- В гостиной, оборудованной под оранжерею, уместен экологический стиль, можно поставить большой аквариум, который заменит телевизор, если он вынесен в спальню.
- Кабинет лучше оформить под классику или по типу английского консерватизма – с деревянными панелями кожаными диванами с каретной пикировкой «честерфилд».
- Компьютерный зал для «игроманов» или юных компьютерных гениев должен быть оборудован в современной стилистике – лофт или хай-тек.
- Богемная гостиная для творческих личностей – это арт-деко, модерн начала ХХ века или бохо-стиль.
- Спортивный зал для активных людей предполагает традиционный минимализм или какой-либо из современных стилей, например, техно.
- В гостиной, которую после сноса перегородки объединили с кухней, уместен стиль кантри, прованс или ретро в духе «русский терем». Хотя для них желательно больше пространства, чем можно выделить под стильный интерьер комнаты 15 кв.м.
- Для гостиной, совмещающей функции спальни, подойдет фьюжн или другой современный стиль, возможна эклектика или неоклассика в современном переосмыслении.

Выбирать стиль для гостиной нужно исходя из предназначения комнаты

Используйте светлые оттенки, они смогут визуально расширить границы комнаты
Определившись с выбором дизайнерского стиля, проще переходить к планировке небольшого метража, чтобы подбирать мебель и отделочные материалы. Это поможет уйти от безликого и морально устаревшего оформления комнаты, заменив на эффектный дизайн интерьера гостиной 15 м2 с одним окном
Планируя, как расставить мебель, важно помнить о функциональном зонировании. Не забывайте об уютной обстановке, в которой будет приятно жить многие годы, как в примерах на фото

Обустраивая гостиную комнату не забывайте о уюте и комфорте
Дизайн такой гостиной нужно тщательно продумывать

Подсмотреть идеи для дизайна гостиной можно в интернете
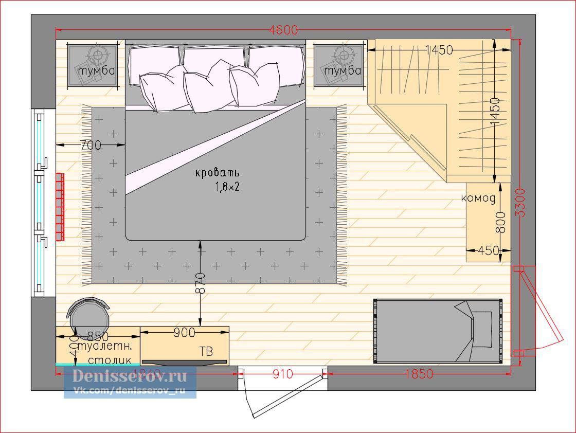
Планировка спальни площадью 15 кв. м прямоугольной формы, с размерами
Спальню 15 кв. м уж точно нельзя назвать маленькой! Этой площади вполне достаточно для того, чтобы обустроить здесь уютную, комфортную и весьма функциональную приватную зону. Главное — правильно и четко распланировать расположение в ней всех необходимых элементов. В этом мы постараемся вам сейчас помочь, предложив несколько вариантов планировки спальни площадью 15 кв. м прямоугольной формы, со всеми размерами!


Первые два варианта планировки пальни 15 кв. м с входом в углу.
Первый вариант. Кровать здесь помещена изголовьем к стене, расположенной от окна слева. По обе стороны от изголовья поставлены прикроватные тумбочки. Стену справа от окна занимает мебельный ряд, состоящий из туалетного столика, тумбы под телевизор и небольшого шкафчика . К противоположной окну стене помещен большой шкаф-купе.
Второй вариант. Зеркально противоположный. Кровать поставлена изголовьем к стене справа, а туалетный столик и мебельная конструкция — слева. И еще, шкаф-купе здесь оборудован угловой, что делает его более вместительным.


Следующие два варианта полностью повторяют предыдущий, лишь немного поэкспериментируем со шкафом-купе.
Первый вариант. Здесь шкаф-купе встал вдоль стены, расположенной напротив окна. Он достаточно большого размера, ширина его 1.13м.
Второй вариант. В этом варианте кровать мы придвинули ближе к окну, а у стены напротив окна оборудовали гардеробную.
Обратите внимание, эти два варианта вполне подойдут и в том случае, когда дверной проем находится в соседней стене



Три варианта планировки спальни 15 кв. м с входом напротив окна.
Первый вариант. Кровать поставлена изголовьем к стене, расположенной от окна справа — по центру стены. С двух сторон от изголовья установлены шкафы-купе. К самому окну с левой стороны помещен туалетный столик. А далее вдоль всей стены установлена единая мебельная композиция, состоящая из шкафчиков, стеллажей и тумбы с телевизором. В этом варианте мебель размещена вдоль двух стен спальни.
Второй вариант. Здесь кровать помещена изголовьем к стене слева. С двух сторон от изголовья так же стоят прикроватные тумбочки. Справа от окна поставлен туалетный столик и тумба с телевизором. С двух сторон от входа размещены шкафы-купе. Простенок над входом так же задействован — использован под шкафчик.
Третий вариант. Это интересный и не совсем обычный вариант планировки. Кровать здесь помещена изголовьем к окну. Традиционно, с двух сторон от изголовья — тумбочки. В районе изножья кровати в комнате установлена разделительная перегородка, с одной стороны которой подвешена TV-панель. А с другой стороны, впритык к перегородке, поставлен туалетный столик (можно заменить его рабочим столом). Оба простенка у входа заняли шкафы-купе и стена над проходом так же использована под шкафчик.



Еще три варианта планировки спальни 15 кв. м прямоугольной формы.
Первый вариант. Здесь вход в помещение находится напротив окна. Этот вариант планировки предусматривает размещение кроватки для малыша. Кровать для родителей установлена изголовьем к стене, находящейся от окна справа и придвинута ближе к окну. С двух сторон от изголовья — прикроватные тумбочки. Далее — шкаф-купе шириной 1.55 м. Напротив кровати располагается туалетный столик и тумба с телевизором. А далее, вдоль стены и ближе к входу поставили детскую кроватку.
Второй вариант. В этом варианте вход в комнату находится в центре боковой стены. Здесь кровать и тумбочки занимают то же место, что и в предыдущем варианте. Левый простенок от входа занимает маленький туалетный столик и тумба с телевизором, а с правой стороны от входа в этом варианте расположен гардероб. Гардероб большой и занимает третью часть всего помещения спальни.
Третий вариант. Аналогичен предыдущему. Только здесь еще необходимо место для детской кроватки. А потому, вместо гардероба, установлен угловой шкаф-купе и комод. А место справа от входа использовано под детскую кроватку для малыша.
Как мы видим, 15 кв. м полезной площади — это уже достаточно много. В такой спальне уже вполне можно оборудовать несколько функциональных зон.
Есть вопросы или предложения? Пишите! Надеемся на обратную связь. Мы рядом, всегда.
Как обустроить?
Обустройство комнаты мебелью зависит от потребностей жильцов:
Если необходимо сделать спальню-кабинет с полноценным письменным столом, полками или стеллажом для документов, возможно, придется пожертвовать туалетным столиком или размером гардеробной. Последние можно совместить.
Для лофта можно подобрать предметы мебели с текстильной или кожаной отделкой. Она может быть как деревянной, так и металлической. То же касается и модерна.
Для арт-деко, классики и романтизма характерна резная деревянная мебель с кожаной или красивой текстильной отделкой.
Для обстановки этнических стилей используется мебель из дерева: для скандинавского и средиземноморского — светлая, для восточного — темная.
Современный стиль – контемпорари
Стиль не вычурный и несложный. Главная черта – функциональность. Нефункциональных предметов в комнате быть не должно. Он характеризуется достаточно простой мебелью массового производства, простыми шторами, простыми рамами картин и зеркала, удобной мягкой мебелью с однотонной тканевой обивкой.
Обратите внимание!
Спальни икеа: 170 фото и видео описание как выбрать дизайн спальни. Лучшие решения от производителя!
Планировка спальни — ТОП-130 фото и видео-обзоры планировок спальни. Форма и размер спальни. Правильная расстановка мебели. Зонирование больших и маленьких спален
- Спальня в частном доме: ТОП-160 фото и видео-обзоры спален. Расположение и размер комнаты. Многофункциональность и зонирование. Отделка спальни и меблирование
Этот стиль несет в себе элементы эклектики – в нем можно сочетать разноплановые предметы: купе с пластиковым или стеклянным фасадом и деревянную кровать, деревянные тумбочки с кроватью с металлическим каркасом красивого цвета, яркий ковер и простую крашеную арматуру светильников со стеганым изголовьем кровати.
Планировочные решения
На фото спальни 15 кв. м видно, что её планировочные решения могут быть разными. Если комната имеет квадратную конфигурацию, кровать располагают в центре, а остальные предметы меблировки – вокруг неё. Причём возможна как симметричная, так и асимметричная расстановка.

Вытянутая, но узкая планировка требует от владельцев жилья подключения воображения и продумывания мелочей. Для правильного заполнения пространства нужно обыграть все не заставленные места. В подобную опочивальню можно поставить небольшой гостевой диван.

Самое практичное планировочное решение – прямоугольная спальня 15 кв. м. Тут для дизайнера открываются широкие возможности.

Если комната имеет выход на балкон – это несомненный плюс. Его можно утеплить, а затем заставить растениями и использовать для отдыха или же превратить в кабинет. Другой популярной идеей является объединение лоджии с жилым пространством. Такой приём позволит расширить полезную площадь помещения.

Выбор стиля оформления
Дизайн спальной не должен особо по оформлению выбиваться с общего стиля квартиры.
Скорее всего, к тому самому моменту, когда начнется ремонт спальни 15 кв. м, уже будет какая-то определенность со стилем и будущим оформлением.
Само собой, на 15 м2 вряд ли уместно использовать дворцовый стиль оформления, потому как тут требуется тот еще размах, но вот оформить спальную в стилях минимализм, кантри, классика или же хай-тек вполне по силам.
Выбирая то или же иное направление, стоит обосновываться на свой вкус и свои предпочтения.
Хай-тек спальная подразумевает, что используются лаконичная мебель. Естественно, в спальной есть кровать, чаще всего двуспальная, вместительный гардероб, светильники. Для комфортного сна выбирается ортопедический матрас.
В спальной для максимального удобства где-то в углу можно разместить удобное мягкое кресло, торшер, чтобы вечерами было удобно читать, столик, выполненный в необычной форме.
Если говорить о цветовом оформлении, то в интерьере используется какой-то один основной цвет, но используется несколько разных его оттенков.
Сегодня выбирается преимущественно спальная, оформленная в минималистическом стиле. В таком случае допустимо использование двух цветов – один фоновый, второй акцентный.
Немаловажное значение принадлежит световому оформлению – света должно быть, как можно больше, но весь свет как спрятан за симпатичным плафоном. Центральная зона в оформлении комнаты принадлежит двуспальной кровати, что дополняется прикроватными тумбами
Центральная зона в оформлении комнаты принадлежит двуспальной кровати, что дополняется прикроватными тумбами.
Отличный ход дизайнеров – сооружение гардероба на всю стены комнаты, чтобы скорректировать форму комнаты, придать комнате простора.
Интерьер прямоугольной спальной 15 кв. м., выполненной в деревенском стиле, подразумевает, что преобладают комоды из натурального дерева, тумбы у кровати.
Отделка не приемлет применения разного рода модных материалов. Дерево, текстиль, много камня – это основные элементы, используемые в отделке.
Особо популярная классическая спальная. В создании данного стиля применима добротная мебель из дерева, спокойные тона, минимум освещения. Чаще всего верхний свет, одна лампа (люстра).
Дизайн спальни 15 квадратных метров, современный стиль с балконом
Спальня – любимое место во всем доме, комната отдыха. Там располагаются любимые вещи, можно наслаждаться обстановкой, заниматься любимыми делами. Дизайн спальни – важный аспект, от него зависит, захочется ли проводить время внутри. Благодаря интерьеру меняется многое – начиная распорядком дня, заканчивая постановкой новых целей, планированием будущего.
Интерьер спальни 15 кв метров выбрать несложно, главное – понимать, чего вам хочется. Второй важный вопрос – сколько денег будет вложено, ведь бюджеты у всех разные, нужно определиться, прописать все затраты. Размер 15 квадратных метров является очень удобным. Спальня вмещает кровать, рабочую зону, развлечения, удобную гардеробную, цветы, картины, зеркало.
Многие спальни имеют балкон, его обыгрывают по-разному, например, создают небольшую комнату отдыха или кабинет по работе, а что угодно вашей фантазии? Существует огромное количество разных стилей, каждый можно гармонично, правильно вписать, смешать, результат будет невероятным
Важно составить план, затем четко ему следовать

В первую очередь нужно составить план
Открытая гардеробная
В квартирах молодых девушек часто можно встретить напольные вешалки. Они смотрятся стильно, и в очень маленькой комнате зрительно сделают пространство более свободным. Их можно сочетать с ящиками, корзинками и другими органайзерами.Такой вариант организации гардеробной еще и обойдется дешевле других. Цена на напольные системы хранения начинается от 2,5 тысяч рублей.
В заключение важно отметить, что у открытых гардеробных есть свои минусы. Пыль будет оседать на одежде, что провоцирует аллергию и другие заболевания
Поэтому нужно быть готовой к тому, что влажная уборка должна проходить не реже 1 раза в 2 дня. По возможности старайтесь прикрыть одежду ширмой, занавесками, дверцами и т.п.
Другой недостаток – постоянное поддержание красивого внешнего вида. Не всегда реальная картинка соответствует фото из Интернета. Не всегда удается следить за тем, чтобы на плечиках были идеально отглаженные рубашки, а вещи аккуратно сложены на полочках. В этом плане гардеробная за гардинами или дверцами более практична.
Как обустроить спальню?
Хоть основную часть времени в спальне 15 кв мы проводим в полной темноте, освещение в этой комнате играет важную роль. В качестве потолочного источника света подойдёт главная одиночная крупная люстра (она служит дополнительным декором) или встроенные споты (просто и функционально).
Точечный свет распределяется по зонам:
- бра или светильники на тумбочках возле кровати;
- настольная лампа или торшер на рабочем столе;
- подсветка зеркала на туалетном столике;
- направленные споты в гардеробной.
Приглушенная подсветка в нише с телевизором или под парящей кроватью играет декоративную роль и прекрасно подходит для засыпания.
На фото изголовье кровати до потолка
Кроме хорошего искусственного освещения, позаботьтесь о блокировке естественного — шторы блэкаут не дадут солнцу проникать в комнату по утрам. В минималистичном интерьере портьеры заменяют на рулонные шторы или жалюзи.
Без декоративных элементов спальня останется скучной — повесьте рамки с картинами или фотографиями, расставьте живые цветы и статуэтки. Украсить комнату 15 кв можно и обычным текстилем — милые подушки, текстурные пледы, коврики.
На фото пример сочетания горчичного и золотого декора
Определение функционала
Немаловажным аспектом с которым необходимо определиться до составления дизайн-проекта является функционал помещения. Гостиная может выступать исключительно местом приёма посетителей, семейных посиделок. Часто комната одновременно выполняет роль спальни, столовой, рабочего кабинета. В этом случае на ограниченном пространстве требуется создать комфорт не теряя зрительный баланс.
Многофункциональное помещение просто необходимо обеспечить удобно трансформируемой мебелью. В качестве спального места используют раскладной диван, вмонтированную в шкаф кровать. По возможности комнату делят на зоны без использования ограждений.
Рабочую зону стараются смещать на лоджию (при её наличии), организовывать у окна с захватом площади подоконника. Установка стационарного письменного стола неуместна. В крайнем случае используют разборный модуль.
Гостиная, совмещённая с кухней, чаще всего оборудуется барной стойкой или компактным островом. Так удастся сэкономить пространство, получить стандартный функционал. Гостиная маленького размера, вынужденная выполнять роль столовой, снабжается столом-книжкой, трансформируемыми стульями. Необходимость экономии места не позволяет разместить стандартную обеденную группу.
Для систем хранения лучше продумать более подходящее место. Ограниченность площади не позволит разместить полноценные шкафы без потери качества внешнего вида комнаты. В небольшой гостиной уместны узкие модули, компактные стеллажи, тумбы.




































