Техника возведения лестничного марша своими руками
Перед тем, как приступить к монтажу марша лестницы своими руками, необходимо обозначить этапы предстоящих работ. Изготовление лестничной системы состоит из таких шагов:
- Выбор материала изготовления.
- Проектирование и расчет марша.
- Производство косоуров.
- Монтаж ступеней.
- Установка ограждения.
- Отделочные работы.

Возведение марша лестницы должно быть разбито на определенные этапы
Выбор материала изготовления
В самом начале производственного процесса необходимо определиться, из какого материала будет производиться лестница. Но, поскольку речь идет о марше для частного дома, то самым лучшим материалом для изготовления лестничной конструкции является натуральное дерево.
Что касается породы, то по совету специалистов, лучше выбирать древесину сосновых пород. Для возведения марша лестницы нам понадобится:
- балки под косоуры;
- опорные столбы;
- доски обрезные под ступени и подступеньки;
- готовые балясины и перила.

Самым лучшим материалом для возведения лестницы своими руками является сосна
Проектирование и расчет марша
Перед выполнением практических работ важно грамотно рассчитать будущую конструкцию. Для начала необходимо спроектировать такие основные элементы – косоуры, ступеньки, подступеньки и ограждение
Для начала необходимо спроектировать такие основные элементы – косоуры, ступеньки, подступеньки и ограждение.
Ступеньки рассчитываются по формуле:
2А+Б=64 см, где
- А – ширина составной части;
- Б – высота ступеньки (обычно принимается 14-17 см).

Проектирование марша — ответственный и необходимый этап Рассмотрим подробнее, как рассчитать марш лестницы:
- Вначале измерим высоту лестницы.
- Определим число ступеней лестничного марша — для этого высоту лестницы поделим на значение Б. В случае, если высота конструкции равна 240 см, а высота ступени 16 см, тогда число ступеней будет 15 (240/16).
- Расчет ширины ступеней – параметр А. Понимая число ступеней (Б) сделать это не сложно: 2А+15=64, 2А=49, А=49/2=24,5 см.

По завершении расчетных работ, набросайте эскиз будущей конструкции
Производство косоуров
Для косоуров подойдет сосновая балка толщиной 40 мм и влажностью древесины не более 13%.
Последовательность производства косоуров такова:
- Подготовьте лекало, повторяющее изгибы ступеней.
- На болванку при помощи лекала нанести разметку.
- Ножовкой выпилите зубцы.
- Полученную болванку можно использовать, как шаблон для выпиливания второго косоура.
- Установите косоуры на место, где будет размещен марш, следя, чтобы концы деталей упирались в пол первого и пол второго этажа.

Изготовьте косоуры необходимых размеров и установите их на место, где будет находиться лестница
Монтаж ступеней
Ступеньки могут фиксироваться к косоурам при помощи специальных деревянных частей (кобылок) или напрямую. Перед монтажом ступеней, нужно приготовить необходимое число подступенков и проступей, учитывая значение выступов.

Монтаж ступеней осуществляется при помощи шуруповерта и саморезов
Установка ограждения
Когда все ступеньки смонтированы, можно приступить к установке балясин и перил. Для их закрепления используются шурупы и шпильки.
Установке ограждения уделите особое внимание — ведь от этого будет зависеть комфорт и безопасность лестницы
Отделочные работы
Заключительным этапом возведения марша лестницы своими руками является покрытие лестницы лаком. Данная процедура убережет систему от вредоносных насекомых, плесени и сырости.

Завершите работы по монтажу лестничного марша покраской конструкции
Монтаж винтовой лестницы
Пожалуй, сборка винтовых лестниц наиболее сложная в сравнении с маршевыми или больцевыми. Причиной тому веерное расположение ступеней и необходимость точных расчетов при монтаже.
Тем, кто решил обустроить такую лестницу, необходимо сделать следующее:
- в первую очередь делаем ступени лестницы. Если она будет деревянной, тогда берем широкую прямоугольную доску и размечаем её по диагонали для одной или двух ступеней, после чего распиливаем и закругляем края. Если лестница будет из камня, тогда придется заказывать в специальной мастерской обработку камня для ступеней. Можно сделать ступени из бетона. В этом случае делаем форму и в неё помещаем армирующую сетку, заливаем бетоном и дожидаемся его полного высыхания;
- подготовив ступени, устанавливаем вертикальную стойку. Она может быть наборной или цельной. Все зависит от проекта лестницы. Если стойка наборная, тогда устанавливается основная труба диаметром в 50 мм, на неё нанизывается первая втулка и резиновая прокалка. В случае использования цельной стойки после её установки в местах монтажа ступеней прорезается паз, в который в дальнейшем будет уложена ступень;
- теперь устанавливаем ступени. Для этого берем ранее изготовленные заготовки и нанизываем их на тонкую трубу и сверху прижимаем более широкой втулкой, после чего разводим ступени веером. Для придания прочности всей конструкции ступени соединяем между собой по краям при помощи вертикальных кронштейнов. Также их можно закрепить к стене больцами. Для цельной стойки ступени заводятся в прорезанные пазы, соединяются между собой кронштейнами и усиливаются креплением на больцах;
- осталось сделать и установить перила. Это наиболее сложный этап работ, так как поручни необходимо сделать криволинейными, а балясины выточить из цельного куска материала.
Лестницы на больцах
Название этих лестниц происходит от германского слова Bolzen, что означает «болт». По сути, ступени такой лестницы укладываются на конструкцию, которая крепится к стене при помощи штырей или болтов, вмурованных или вкрученных в стену.
Основными преимуществами такой лестницы являются компактность и экономность в использовании материалов. Особенность и недостаток этого типа лестниц заключается в обязательном наличии прочной каменной стены с одной стороны лестницы.
В конструкции больцевой лестницы используются металлические элементы (болты, прутья, трубы) для создания каркаса и поручней, а для ступеней применяют дерево, металл, стекло, бетон или железобетон. Больцевые лестницы, несмотря на свою показную хрупкость и легкость, могут выдерживать весьма большие нагрузки. Так, например, больцевые бетонные лестницы в частных домах способны выдержать нагрузку до 1500 кг, что в сочетании с минимальным количеством дополнительных элементов конструкции весьма привлекательно.
Материалы лестниц
Несущие конструкции лестниц делают из дерева, металла, стекла и бетона. В качестве отделочных материалов используют керамику, камень и мозаику. При отделке ступеней учитывают, что они должны противостоять истиранию. Если ступени облицованы скользким материалом, наносят шероховатые полосы на плоскости проступей или стелют ковровое покрытие. Ограждение и облицовку лестниц согласуют с дизайном интерьера. Наиболее популярны деревянные лестницы: они подходят для интерьеров любого стиля, а сталь и стекло — атрибуты современной обстановки.
Деревянные лестницы особенно востребованы в частных домах, отличаются разнообразием, прочны, экологичны и красивы. Для конструкции используют массив дерева или клееную древесину
Деревянные лестницы традиционно украшают резными балясинами и перилами, а также деревянными скульптурами. Конструкцию из любого материала делают эффектной кованые перила и ограждения, а также стеклянные элементы. Для дизайна лестницы важна входная площадка с несколькими начальными ступенями. Она может быть овальной, с необычно оформленными перилами.
Стеклянные лестницы делают из триплекса (нескольких слоев закаленного, стекла), для не сущей конструкции используют металл. Лестницы из стекла могут иметь сложную пространственную конфигурацию и эффектны. Ограждения делают из триплекса, стали, латуни
Металлические лестницы делают из металлических профилей, труб, арматурной стали и стальных листов. Они позволяют придать конструкции любую конфигурацию.
Бетонная лестница может быть сборной или монолитной. Бетон позволяет создавать представительные лестницы сложных, пластичных, изогнутых форм. Поверхность лестницы облицовывают камнем, мозаикой, керамикой. Ограждения делают из камня, кованого металла, стали, реже — из дерева
Технология производства
Имеется ряд этапов, чтобы изготовить железобетонную плиту:
- Создание предварительного чертежа и расчета, они считаются основой для выливания плит (или проектирование).
- Установка каркаса из арматуры в специально подготовленную форму. Чаще всего это ребристые стержни, которые при нагреве предварительно натягивают.
- После того, как был сформирован каркас, закрепляют стержни на бортоснастке, а потом с помощью проката, конвейерной линии и стендов заливают бетон.
- Далее готовый состав отправляют на тепловую обработку, где плита набирает прочности 60%.
- Когда изделие стало крепким, убирают крепления, которые использовали, чтобы закрепить арматурные стержни.
- Сжимание стержней по длине.
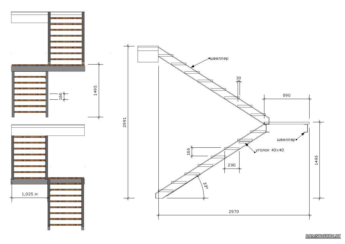
Разрез лестниц
При проектировании лестницы для частного дома своими руками, нужно обязательно сделать ее разрез на плане, причем, независимо от того, куда она ведет, будет ли на верху помещение с детской или санузлом. К формированию разрезной схемы стоит подходить максимально аккуратно и желательно не в последний момент.
На рисунке разреза обязательно должны быть отмечены:
- Оси;
- Стена;
- Пол;
- Потолок;
- Элементы лестницы;
- Габариты конструкции.
Чертеж разреза лестницы нужно делать поэтапно. Сначала чертится лестничная площадка, желательно со стандартной шириной.
Затем:
- Отмечается длина площадки на первом этаже.
- Чертится противоположная площадка.
- Рисуется горизонтальная проекция лестничного марша.
- От свободного края площадки отмеряется ширина одного проступка по направлению к стене.
Формирование рисунка осуществляется не сверху, а сбоку, причем именно в разрезе.
Методы установки ступеней
Наиболее распространены несколько вариантов монтажа ступеней:
- на тетивах;
- с использованием косоуров;
- больцевое.
Способ монтажа зависит от используемого строительного материала, планировки дома и принятого архитектурного и дизайнерского оформления помещения.
Лестница на тетивах

Тетивой называют продольную балку, на которую крепят ступени и подступенки. Если посмотреть на конструкцию сбоку, будет видна только ровная доска — торцы ступеней и вертикальных элементов скрыты.
Ступени к балке крепят разными способами:
- С врезными или задвижными ступенями. В балке выбирают пазы, куда вставляют элементы конструкции. Главное условие – точно определить размеры и изготовить пазы на обеих тетивах однообразно.
- На уголки. К балкам крепят уголки или бруски, которые служат основанием для ступеней.
- Забежные ступени — вариант конструкции винтовых лестниц. К стене дома крепят тетиву для ступеней, а вторая часть монтируется на опорный столб.
- На прибоины-накладки, которые служат опорой для ступеней и подступенков.
Как правило, конструкции на тетивах бывают закрытыми.
Косоуры
В отличие от тетивы косоурная балка имеет зубчатую форму. На вырезы опираются ступени. При взгляде сбоку видно их торцы.
Зубчатых балок может быть одна, две или несколько. Первый вариант предпочтителен для лёгких лестниц с небольшой нагрузкой.
Два косоура — наиболее распространённый вариант, когда лестница изготовлена своими руками и имеет один поворот.
Для сложных вариантов могут использовать 3 и больше косоуров, например, в местах поворотов или при большой ширине ступеней.
Больцы

Лестница на больцах
Больцы, это немецкое слово, обозначающее в переводе болт.
Лестницы на больцах завоевали популярность недавно. Особенностью конструкции является отсутствие тетивы, косоуров и подступенков.
Ступени одной стороной крепят к стене, а с другой они опираются друг на друга и подвешены к перилам.
Несмотря на внешне хрупкий вид, конструкция способна выдерживать несколько центнеров нагрузки.
Лестница на второй этаж прямая: оптимальные размеры
За основу для построения прямой и двухмаршевой угловой конструкций с переходной площадкой берутся требования, которые фиксирует ГОСТ и «Строительные нормы и правила».
Так, лестница в жилом помещении должна иметь такие величины:
- Ширину лестничного марша в пределах полутора метров.
- Высоту прохода в два метра или минимум на 50 мм больше роста самого высокого жильца.
- Угол наклона в 35-45 градусов.
- Высоту подступенка в 150-250 мм, глубину проступи – 250-350 мм.
- Высоту поручней в 900 см и расстояние между балясинами в 15 см.
Прямая лестница на второй этаж — конструкция прочная и безопасная
Благодаря этим размерам можно спроектировать прочную и безопасную конструкцию, которой будет удобно пользоваться и взрослым, и детям, и пожилым людям.
Проступи и подступенки лестницы должны быть равны по параметрам между собой, иначе конструкция будет хлипкой и травмоопасной.
Этап #4. Вязка и установка арматурной сетки или каркаса
Если лестница небольшая, то для армирования можно воспользоваться сеткой, связанной из арматуры диаметром 10-12 мм. Арматурные стержни располагают с шагом 15 и 20 см, чтобы получилась сетка с ячейкой 15 х 20 см. Связывают стержни между собой при помощи проволоки.
Для большой лестницы используют арматурный каркас. Он состоит из двух или нескольких сеток, соединенных между собой вертикальными стержнями. Между сетками оставляют расстояние 2-3 см.
Арматурный каркас (сетка) является своеобразным «скелетом» конструкции, на нем будет удерживаться застывшая бетонная масса. Поэтому горизонтальные стержни каркаса (сетки) закрепляют в стене для надежной связи с будущей бетонной лестницей. Для этого в стене сверлят отверстия необходимого диаметра и молотком вбивают туда штыри.
Каркас или сетку укладывают на нижнюю часть опалубки на расстоянии 2-3 см от дна. Чтобы приподнять арматуру можно воспользоваться камнями, кирпичами или специальными пластиковыми подставками-фиксаторами.
Виды конструкций, крепления — подбор материала
Перед началом проектирования следует решить вопрос с видом конструкции. Можно условно выделить следующие варианты:
- Прямые. Самая простая модель для расчета и монтажа. Да и в эксплуатации эти конструкции, если соблюдены строительные нормы, самые удобные и безопасные. Для их установки требуется большое пространство.
- Поворотные с площадкой. Эти конструкции устанавливают, чтобы частично сократить занимаемую площадь и обеспечить комфортное, безопасное перемещение. Дополнительное удобство дает поворотная площадка, на которой свободно можно разойтись со встречным движением и передохнуть при подъеме. Поворот осуществляется на 90˚ или 180˚. Проекты лестниц в доме могут иметь место два или три лестничных марша.
Пример чертежа поворотной лестницы с площадкой
- Забежные поворотные. Разновидность предыдущего варианта, только вместо площадок монтируются ступени. Проступи в таких конструкциях имеют форму усеченного треугольника. Более сложный вариант для расчета и монтажа, но позволяет сэкономить лишние 1,5–2 кв. м.
- Винтовые. Самые компактные конструкции. Устанавливаются в домах с маленькой площадью. Могут использоваться как дополнительное устройство к основной лестнице. Рекомендуется устанавливать в домах, где проем предусмотрен до 3 000 м. Не самый удобный и безопасный вариант.
- Криволинейные, радиусные. Более сложные конструкции, разработку и монтаж которых, лучше доверить профессионалам.
Важным для конструирования или выбора чертежа является вариант несущей конструкции под лестницу:
- Больцовое. От немецкого «болты».
Так выглядит больцовая лестница Крепление осуществляется непосредственно к стене (рекомендуется кирпичное основание). Такие конструкции смотрятся легко, но при этом выдерживают требуемую нагрузку.
- Через стойку. Чаще всего применяется для винтовых лестниц в качестве основной опоры. Для поворотных моделей может применяться как дополнительная стойка.
- Тетива. Состоит из двух боковых направляющих профилей, к которым крепятся ступени. Для этого с внутренней части балок делаются пазы под них. В таких конструкциях боковины ступеней закрыты направляющими профилями.
- Косоур. Похож на предыдущий вид конструкции, но профили по верхней части имеют фигурный гребень, выпиленный под размеры ступенек (высота, глубина). В этих лестницах сбоку видны торцы проступи и подступенка (горизонтальный и вертикальный элемент ступеньки).
Материал подбирается с учетом планируемой конструкции и общего дизайна интерьера. Ограничений в этой области нет. Часто используется комбинирование: металл, как несущая часть конструкции, и стекло, дерево, керамическая плитка, прочие в качестве ступеней.
Открытый центральный и двойной косоур
Производство металлических лестниц с открытым косоуром нужно начинать с конструирования этой детали. Он будет выполнять несущую функцию. Материалом для создания этого элемента выступает профильная прямоугольная труба, которая стыкуется из горизонтальных, вертикальных заготовок. Однако перед этим в обязательном порядке нужно определиться с параметрами будущих ступеней, а так же с тем, какое их количество потребуется. Все швы потребуется обработать угловой шлифмашинкой.
Никелированная площадка или уже готовые ступени монтируются на косоуры. Для того, чтобы ступени были защищены от прогибания, по бокам одиночного косоура устанавливаются консоли.
Специальные программы визуализации помогут понять, насколько правильно Вы выполнили расчеты параметров будущей лестницы, а так же оценить, как она впишется в общую атмосферу дома.




































