Выбираем теплицу промышленного изготовления
Если вы решили приобрести уже готовую теплицу и после этого собрать ее, у вас не может не возникнуть вопрос, как выбрать правильно теплицу, которая будет не только красива, но и в первую очередь функциональна.
Тема сегодняшней статьи выбор готовой теплицы промышленного образца.
Покрытие для теплиц
Почти все современные теплицы сборного типа, выпускаемые промышленным способом, изготавливаются из металлопрофиля.
Имеющиеся в продаже образцы теплиц пригодны как для покрытия их полиэтиленовой пленкой, так и листовым поликарбонатом (см. Кремлевская теплица из поликарбоната: что и как). Встречаются теплицы, выполненные под стекло.
Но независимо от того какое покрытие вы будете использовать для своей теплицы, основное внимание необходимо уделить самому каркасу, так как от его прочности и надежности зависит долговечность эксплуатации теплицы, ее функциональности и эффективности. У непосвященных может возникнуть вопрос, как каркас может влиять на функциональность и эффективность?
У непосвященных может возникнуть вопрос, как каркас может влиять на функциональность и эффективность?
Каркас и покрытие
- Дело в том, что изготовление металлоконструкций для теплиц промышленным способом выполняется из уже готового стандартного профиля.
- Изначально он совершенно не предназначен для его использования в такой конструкции как теплица.
- Понятно, что используя в качестве покрытия полиэтиленовую пленку с одним каркасом, совершенно невозможно использовать с данным каркасом поликарбонат или стекло.
- Соответственно, такую теплицу, возможно использовать только определенное время в году.
Каркас под стекло

Теплица из стекла.
Если в качестве покрытия вы захотите использовать стекло, то и в этом случае каркас имеет очень важное значение. Стекло очень хорошо пропускает свет, легко поддается очистке и отличается долговечностью. Но у стекла есть один существенный недостаток, это вес и хрупкость. Даже хорошо устроенный фундамент не спасет стекло от поломки, если каркас теплицы имеет недостаточную жесткость
Популярность поликарбоната
Поликарбонат в этом случае выглядит предпочтительней, он легче, хорошо пропускает свет и удерживает тепло.
- Хорошая обрабатываемость данного материала подвигло основную массу производств выпускать каркасы для теплиц именно под данный материал.
- Изготовление металлоконструкций теплиц с поликарбонатным покрытием широко распространилось в данное время.
Но наличие большого количества разнообразных теплиц породило новую задачу для садоводов, правильный выбор.
Категории теплиц
Первое что нужно знать, выбирая теплицу, это то, что существуют теплицы временные и капитальные.
Поэтому, выбирая теплицу, первым делом обратите внимание на данный факт
- Дело в том, что временные теплицы предназначены функционировать в короткое время года, они хорошо выдерживают ветровую нагрузку до 8 м/сек, но совершенно не предназначены выдерживать нагрузку снеговую (более подробно см. Самодельная зимняя теплица: виды и применение материалов).
- Данный факт говорит о том, что устанавливая такую теплицу вам совершенно не нужен фундамент, ведь в определенное время года вы просто разберете данную теплицу и затраты на возведение фундамента совершенно неоправданны.
Это относится и к покрытию теплицы.
- Приобретая временную теплицу, совершенной ошибкой будет использовать для нее поликарбонат, а тем более стекло.
- Полиэтилен в данном случае предпочтительней. Зачем тратить лишние средства на более дорогое покрытие, полиэтилена вполне достаточно?
Можно намного дешевле
Иногда изготовление металлоконструкций теплицы выполняется именно под поликарбонат, а при этом сам каркас теплицы не предназначается к использованию круглый год.
Бывает такое, что в сборной теплице временного типа, рекомендуется использовать очень тонкий поликарбонат.
Тогда возникает вопрос, а для чего это делать, если в данном случае полиэтилен доступен, и дешев? Ответа на этот вопрос вы не получите.
Проектирование теплицы из профиля
Выбрав форму будущего парника, нужно взять несколько листков бумаги (желательно миллиметровки или в клетку), карандаш, ластик и приступить к составлению чертежа постройки. При наличии навыков работы с компьютером, чертеж можно составлять в программах для 3D-моделирования и проектирования. Из них самая простая в освоении — Google SketcUp.

Проектирование теплицы с помощью Google SketchUp
Для начала необходимо выбрать размеры постройки. При этом исходите из габаритов стандартного листа сотового поликарбоната – 6 на 2,1 м. Учитывайте также способ соединения отдельных элементов обшивки друг с другом – при помощи соединительных профилей или внахлест. Чаще всего дачники выбирают ширину теплицы, равную 2-3 м. Длина же может составлять 4, 6, 8 и 10 м, с некоторыми поправками на стандартные размеры листа СПК. Высота арочной теплицы редко делается больше 2,1 м, для двухскатной же конструкции особых ограничений нет, главное — соблюдать угол наклона 25-30° для скатов.

Пример чертежа теплицы из профиля
Не забудьте также о дверном проеме, продумайте, какие его размеры будут удобны для вас
Уделите внимание расположению форточек и фрамуг, особенно в теплицах большой площади, так как растения в них будут особенно нуждаться в вентиляции
Заключительный этап проектирования – продумывание и прорисовка на чертеже соединений профиля в единый каркас. Не забудьте подсчитать количество нужного материала и крепежей для последующей закупки с учетом запаса в 10-15%.
Выбор места, размеров, планировка парника
Перед началом строительства важно выбрать идеальное место, которое в будущем избавит от многих проблем. Ищите как можно более ровное место, чтобы перепады высоты грунта были минимальными. Лучше также немного отступить от всех уже имеющихся построек на участке
Лучше также немного отступить от всех уже имеющихся построек на участке.
Конечно, если вы не собираетесь строить парник, который должен иметь общую сторону с домом
Обратите внимание и на то, чтобы на место будущего парника падало как можно больше света от солнца
В будущем это положительно скажется на урожае.
Чертежи: как сделать самому, готовые примеры
Лучше выбирать готовые чертежи, так как там уже используется готовая, продуманная конструкция, которую, скорее всего, кто-то уже испытал.
Самостоятельно нужно рассчитывать нагрузку на стенки и крышу и заранее закладывать в чертеж профиль для усиления.
Вот несколько хороших готовых примеров.




Подбор и подготовка материалов, оборудования
Перед началом монтажа нужно собрать все материалы и инструменты, которые будут нужны. Вот минимальный нужный набор:
- Ножницы по металлу;
- Карандаш;
- Рулетка;
- Шуруповерт;
- Опалубка;
- Песок;
- Брус.
Как подготовить фундамент
По периметру будущей теплицы прокапывается траншея, на ее дно нужно разместить песок.
Далее устанавливается опалубка, которая заливается цементным раствором. Обязательно помните о том, что фундаменту нужно застыть. На это уходит около 20 дней.
Монтаж каркаса и способы крепления
Каркас монтировать нужно строго согласно чертежу. Как правило, снизу устанавливается направляющий профиль, к которому будет крепиться остальной каркас.
Если нужно изогнуть какой-то элемент, то его боковые части прорезаются ножницами по металлу. Сам же элемент после этого легко гнется.
Между собой часки каркаса скрепляются с помощью саморезов, получается достаточно надежное соединение.
Обшивка: какой выбрать укрывной материал
Подобные конструкции выгоднее и удобнее всего обшивать с помощью поликарбоната. Этот материал достаточно держит тепло, а также прочен и устойчив к внешним факторам.
Если использовать поликарбонат, то получится надежный парник, который запросто простоит долгое время.




Усовершенствование конструкции, отопление, автоматизация
Совершенствовать теплицы можно практически бесконечно. Начать можно с установки форточек или удобной двери.
Для теплицы из профилей хорошим вариантом отопления будет установки тепловой пушки. Этот вариант очень актуален из-за того, что не нужно топить большую площадь.
Рисуем чертеж
Вариант конструкции выбран и можно приступать к проектированию будущего строения. Схема сборки сооружения крайне важна, потому, что позволит рассчитать необходимо количество материалов, а также даст визуальное представление о будущем изделии.
При выборе места размещения конструкции важно учесть, как теплица будет отапливаться, а также каким образом к ней можно будет подвести электричество
Принимая во внимание все этим моменты, можно будет приниматься за чертеж. В проекте должны быть указаны размеры каркаса и крыши
Эти параметры необходимы для расчета объемов строительных материалов.
При покупке рекомендуется приобретать все с запасом, что позволит избежать ошибок и учесть возможное расширение металлопрофиля. Чертежи лучше выполнять в комплексе с местностью. Это позволит учесть нюансы масштабирования и визуально оценить, как будет выглядеть теплица в готовом виде.
Конструктивные элементы
Тепличные конструкции отличаются друг от друга формами, материалами и применяемыми технологиями. Преимущественно пользуются популярностью теплицы, имеющие один или два ската, форму шатра или арки. С точки зрения конструкции, тепличные сооружения могут выполняться в стационарном виде, когда отсутствует возможность их демонтажа, и в так называемом мобильном, допускающим разборку теплицы с целью ее хранения в каком-либо помещении зимой.
Что касается конструктивных элементов, то их набор выглядит следующим образом:
- Фундамент – часть конструкции, служащая ее основанием, которая необходима для придания устойчивости за счет распределения возникающих нагрузок. Для изготовления фундамента подходят различные материалы, например, дерево или кирпич. Оптимальный вариант возведения основания под теплицу – постройка ленточного фундамента в виде единого монолита, который должен заделываться на глубину не менее 80 см, но с соблюдением того, что точка промерзания грунта будет выше этой отметки.
- Каркас – часть конструкции, определяемая как несущая, сборка которой ведется с использованием деревянных элементов и изготавливаемых из ПВХ или стали. Прочность каркаса – устойчивость всего сооружения. В зависимости от выбранного материала проявляют себя плюсы и минусы этой части конструкции. Выбор дерева для изготовления каркаса существенно снижает сложность монтажа, но обусловливается таким недостатком, как небольшой срок службы. Даже обработка древесины водоотталкивающими составами мало способствует долговечности каркаса на фоне подобного сооружения из стали. В то же время стальной каркас, хоть и отличается долгим периодом эксплуатации и способностью выдерживать серьезные нагрузки, но он подвержен коррозии.
- Каркас из ПВХ – прочность, гибкость, герметичность и безопасность. Данный материал отличается более высокой ценой по сравнению с уже упомянутыми. Он очень надежный, что обеспечивают ребра жесткости в виде арок, установка которых производится через каждые 2 метра. В результате получается обтекаемая форма, исключающая задержку атмосферных осадков на поверхности. Сборка каркаса из профильной трубы – это малозатратное в плане труда мероприятие, не требующее использование специального оборудования.
- Профильная труба – прочный элемент конструкции, обеспечивающий дополнительные удобства, которые проявляются в том, что с его внутренней стороны можно крепить подсветку, систему полива и т. д.
- Покрытие – защита от негативного воздействия окружающей среды, материалом изготовления которой обычно служит стекло, поликарбонат и пленка. Крепление производится на каркас теплицы. Оптимальным покрытием является поликарбонат, являющийся надежным барьером на пути холодного воздуха, но не препятствующий прохождению солнечных лучей. Покрытие из этого материала придает теплице привлекательный вид и обеспечивает долговечность использования при относительно небольших затратах на его приобретение.
- Фурнитура – все то, что входит в состав крепежной системы. Ее подбор зависит от конструкции теплицы и материала покрытия. Если предполагается использование поликарбоната, то для него понадобятся термошайбы, соединительные профили и саморезы, необходимые для крепления этого материала к металлу. Для скрепления листов поликарбоната применяют специальный профиль. И если он алюминиевый, то это идеальный вариант, но достаточно дорогой. Он оснащается резиновыми уплотнителями, обеспечивающими требуемый уровень гидроизоляции.
Теплица из металлических труб своими руками. Преимущества парника
- Вы будете иметь под рукой свежие овощи и зелень. Больше не придется бежать на рынок или в супермаркет за пучком укропа или огурцами.
- Удовольствие от ухода за растениями поднимет настроение и улучшит самочувствие.
- Выращенные самостоятельно растения, не прошедшие химическую обработку и не напичканные удобрениями, пойдут на пользу здоровью. Вы будете полностью уверены в экологической чистоте всего выращенного.
- Любители цветов или теплолюбивых растений смогут эстетически наслаждаться плодами своего труда.
- Рассада не будет страдать от неожиданных заморозков или от затопления осадками.
- Даже если вы планируете высадить подрощенные растения в открытый грунт, плоды созреют как минимум на месяц раньше.
- Дожди и сильный ветер, а также вредители не испортят урожай.
- Личная металлическая теплица будет прочной и прослужит долгие годы.
Давайте рассмотрим подробнее, как можно построить оранжерею на участке, что для этого понадобится и как сделать монтаж грамотно и быстро.
Монтаж теплиц своими руками из труб в зависимости от вида этих изделий имеет свои преимущества и недостатки. Давайте рассмотрим их подробно:
- Система из ПВХ-труб . Многие начинающие садоводы, гоняясь за дешевизной, стараются изготовить тепличный каркас из поливинилхлоридных труб. Сам по себе этот материал неплохой, он надежен и долговечен. Однако у ПВХ труб-имеется существенный недостаток — они жесткие и тонкостенные, что относится к большинству их моделей. Поэтому такие изделия «не любят» принудительного изгиба и, находясь в напряженном состоянии, могут при морозах даже трескаться. Поливинилхлорид отлично подходит для создания инженерных коммуникаций, но к тепличным каркасам это никак не относится, особенно для строительства арочных конструкций.
- Система из полипропиленовых труб . Этот вариант «скелета» теплицы вполне приемлем и явно заслуживает внимания. Прочность полипропилена достаточно высока. К тому же он обладает превосходной эластичностью. Стенки труб, изготовленных из данного материала, гораздо толще, чем у ПВХ-изделий. А самое главное — полипропилен можно без боязни гнуть, изготавливая арочные своды теплиц. Плюс ко всему, имея небольшие навыки общения со специальным паяльником, из таких труб можно изготовить надежный каркас для фрамуги и двери строения.
- Система из профильных труб . По прочности, жесткости и надежности она превосходит две предыдущих варианта, так как материалом изготовления является металл. Профильные трубы в поперечном сечении могут иметь самую различную конфигурацию: квадрат, овал, прямоугольник и т.п. Для изготовления теплиц обычно применяется квадратный профиль сечением 20х20 мм и сечением 20х40 мм в виде прямоугольника. Такие трубы незаменимы при сборке строений шатрового типа, где все элементы конструкции прямолинейны. При изготовлении шатровых сооружений сказывается недостаток профильных труб: их сложно гнуть, сохраняя одинаковый радиус арок по всей длине теплицы. Для этих целей необходимо иметь специальный трубогибный станок, который для разового использования является слишком дорогим удовольствием. Выход из этой ситуации можно отыскать на любой металлобазе, где приобретаются трубы. Достаточно найти там человека, который отвечает за эту технику, оставить ему чертежи и объяснить суть дела. Услуга недорогая, но сил и времени может сэкономить много.
Можно ли заниматься пчеловодством людям, имеющим физические особенности (инвалидность)
Очень часто я бываю на разных форумах для пчеловодов, в том числе и на pchelovod.info. Недавно я увидел очень старую тему, где человек спрашивал, а может ли он заниматься пчеловодством, если у него нет руки (см. скрин ниже). На форуме я не стал об этом ничего писать, и поэтому решил написать статью на эту тему для людей, у которых есть разные физические особенности.
Признаюсь честно, что раньше я не задумывался о том, может ли человек имея физические особенности, заниматься пчеловодством? Каждый пчеловод знает, что пчеловодство это весьма трудная физическая работа, так как связана она с работами с корпусами, работой с мёдом и т.д. Но лично я считаю, что человек с физическими особенностями, если имеет желание заниматься пчеловодством, всегда сможет этого делать.
Как-то мне знакомый пчеловод рассказывал, что знал человека, который во время ВОВ потерял руку, а после войны трудился на колхозной пасеке и был успешным пчеловодом, при этом у себя дома он держал и крупнорогатых животных (две коровы и три быка), с которыми также успешно справлялся.
Мне лично кажется, какие-бы у человека не были физические особенности, здесь главное всегда знать, что вас всегда любят и ценят ваши близкие и родные. Если у человека есть сила воли и желание заниматься пчеловодством, то он всегда сможет это сделать и у него все получится, так как у нас, у некоторых людей, у которых со здоровьем все в порядке, иногда руки растут не из того места. А как вы считаете? Пройдите анонимный опрос ниже.
Пчела & Человек
Монтаж каркаса
Многих интересует вопрос, как сделать теплицу из профиля для гипсокартона. Важным делом является монтаж каркаса.
Процесс монтажа каркаса:
- Профиль нарезается на необходимые отрезки;
- Профилями делается нижняя обвязка здания — основание по периметру;
- Делаются угловые узлы;
- Устанавливаются стойки по углам;
- Монтируются промежуточные стойки;
- Для прочности конструкции нужно изготовить ещё поперечные перекладины;
- Делается верхняя обвязка стоек по периметру стоек;
- Оборудуются планируемые проёмы;
- Монтируется кровля будущего парника.
Если придерживаться последовательности работ, на изготовление каркаса теплицы из профиля для гипсокартона своими руками понадобится несколько дней.
Совет профессионалов: большой каркас теплицы из профилей для гипсокартона лучше собирать по секциям, это легче и намного быстрее, а монтаж крыши произвести на земле, поднять и прикрепить.

Теплицы из профильной трубы 40х20. Виды
Чтобы построить теплицу из профильной трубы собственными руками, не нужно иметь каких-либо специальных знаний и профессионального инструмента. Самодельная теплица из профильной трубы может иметь любую форму, причем обойдется гораздо дешевле теплицы заводского изготовления.
Для оборудования несущих рам каркаса теплицы лучше использовать профильную трубу 40х20 мм, для обустройства связующих перемычек между рамами, лучше использовать профильную трубу 20х20 мм. Также, профильная труба размером 20х20 мм, оптимально подойдет для монтажа невысоких парников.
Если решено устанавливать на участке теплицу из профильной трубы арочного типа, то рекомендуется такую теплицу приобретать в заводском изготовлении. Так как для сгибания профильной трубы в дуги, понадобится дополнительный специальный инструмент (трубогиб).
При ручном сгибании профильной трубы, не факт что у Вас получатся идеально ровные элементы конструкции.
Теплица домиком из профильной трубы, имеет двухскатную крышу и прямые стены. До появления арочных конструкций, теплицы такой формы были очень популярны.
Подобные теплицы пользуются более высоким спросом, чем теплицы с каркасом из обычной трубы круглого сечения, так как на профиль гораздо проще крепить поликарбонатные листы.
Двухскатная оптимально подойдет для выращивания высокорослых овощных культур.
При выборе металлического каркаса под теплицу, предпочтение лучше отдать профильной оцинкованной трубе. Такая теплица прослужит несколько десятков лет.
Большая теплица своими руками. Устройство зимних теплиц
Теплицы бывают разными: сезонными или капитальными, большими или маленькими, заводского производства или же самодельные. Но цель у них одна — получить экологически чистый урожай как можно раньше и как можно большего размера.
В настоящее время существует большой выбор теплиц самой разной конструкции . Новичку очень трудно понять, что выбрать и с чего вообще начинать строительство. Как рассчитать площадь теплицы для получения планируемого урожая, нужен ли фундамент и какой, как провести отопление, какой крыше отдать предпочтение и многое другое. Поэтому начнём с азов.
Виды тепличных конструкций
Зимние теплицы отличаются от сезонных по многим показателям.
- По функциональности. Предпочтение той или иной модификации можно отдать в зависимости от того, что в ней собираются выращивать — грибы, цветы, зелень, виноград или экзотические фрукты.
- По расположению. Теплицы могут сооружаться на поверхности отведённого участка, углубляться в грунт или же возводиться сверху на имеющейся дворовой постройке (гараже, бане, сарае).
Теплица может располагаться не только на земле, но и на крыше какого-либо строения, например, гаража
- По виду отопления. Растения можно обогревать водой, дровами, электричеством или биотопливом.
Но особенно велико разнообразие зимних оранжерей по архитектурному решению.
- Пристенные. Хороши для небольшого зимнего сада или огорода. Наличие общей с домом стены позволяет удешевить строительство.
- Арочные. Традиционные размеры таких конструкций 2 х 4 х 3 м. В них комфортно себя чувствуют низкорослые культуры, зелень и овощи. Для выращивания вьющихся и высоких растений арочные теплицы не подходят.
- Односкатные, двухскатные, трёхскатные.
- Фермерские. Это многофункциональные устройства, рассчитанные на круглогодичную эксплуатацию практически во всех климатических зонах. Они отличаются большой площадью, иногда это целые мини-плантации, позволяющие выращивать большой объём продукции (причём не только в грунте, но и методом гидропоники).
Фотогалерея: виды зимних теплиц
- Пристенные теплицы отличаются небольшими размерами и экономичностью при возведении
- В арочных капитальных теплицах удобно выращивать низкорослые культуры
- Фермерские теплицы применяются во всех регионах и рассчитаны на получение большого урожая
- Двускатная крыша в форме капли выдерживает большую нагрузку и хорошо отводит снег зимой
Но какой бы ни была конфигурация, следует помнить, что зимняя теплица — добротное сооружение с отоплением и освещением. И прямо скажем, возведение её — удовольствие не из дешёвых. С другой стороны, затратив один раз финансы и усилия, вы будете долгие годы наслаждаться качественными продуктами в течение всего года. И результат вашего труда уже будет зависеть не от капризов погоды или от почвы, а только от вашего старания и умения.
Перегородка: плюсы и минусы
Перечень достоинств таких конструкций представлен:
Небольшим весом
Это очень важно для установки перегородок в постройках с несколькими этажами.
Легкой сборкой. Монтаж конструкции могут выполнить люди с минимальными строительными навыками и опытом.
Доступной ценой
Стоительство перегородки будет намного дешевле, чем использование кирпича в аналогичных целях. Производство ГКЛ не является дорогим процессом, поэтому и розничная цена материала не высокая.
Высокими теплоизоляционными свойствами. При создании перегородок нет острой необходимости использовать дополнительные утеплительные материалы.
Небольшим размером площади. Максимальная толщина одного ГКЛ – 1,2 см, поэтому перегородка не займет много места.
Экологичностью. В гипсокартоне отсутствуют вредные для здоровья примеси.
Возможностью проложить между ГКЛ электрические кабели.
Возможностью создать арки. ГКЛ способен изгибаться в разные стороны, поэтому из него можно делать различные геометрические конструкции, а междверной проем выполнить в форме арки.
Недостатки стройматериала:
- ГКЛ является достаточно хрупким материалом. Гипсокартонные постройки нельзя поддавать высоким механическим нагрузкам.
- Плохо переносит влагу. Даже самый влагостойкий ГКЛ нужно оберегать от прямого контакта с жидкостью.
- Низкая звукоизоляция. Постройки из ГКЛ не мешают распространению звуков и шумов.
Заметно, в характеристике гипсокартона преобладают плюсы. Он является идеальным материалом для создания стены в комнате с небольшой влажностью.
Если вы решили самостоятельно поставить у себя дома гипсокартонную перегородку, вам нужно купить подходящие материалы и инструменты, а так же соблюдать пошаговую инструкцию, предоставленную ниже.
Пикировка
Томаты хорошо приживаются, поэтому при пикировке обязательно нужно заглублять, тогда у растений хорошо развиваются корневая система, стебель становится толстый. В центре емкости для пикировки нужно сделать углубление, кладем сеянец вертикально, заглубляем до семядольных листочков, прижимая плотно почву, так чтобы сразу был контакт с корневой системой. Почва в емкости не доходит до краев, примерно 3 см соблюдать. Это сделано специально, чтобы при выращивании рассады можно было сделать подсыпку.
А дальше идет уход за рассадой. Если на улице стоит пасмурная погода, то очень хорошо снизить температуру до 14-15 градусов, так чтобы сеянцы не вытягивались.
Монтаж каркаса
Многих интересует вопрос, как сделать теплицу из профиля для гипсокартона. Важным делом является монтаж каркаса.
Процесс монтажа каркаса:
- Профиль нарезается на необходимые отрезки;
- Профилями делается нижняя обвязка здания — основание по периметру;
- Делаются угловые узлы;
- Устанавливаются стойки по углам;
- Монтируются промежуточные стойки;
- Для прочности конструкции нужно изготовить ещё поперечные перекладины;
- Делается верхняя обвязка стоек по периметру стоек;
- Оборудуются планируемые проёмы;
- Монтируется кровля будущего парника.
Если придерживаться последовательности работ, на изготовление каркаса теплицы из профиля для гипсокартона своими руками понадобится несколько дней.
Совет профессионалов: большой каркас теплицы из профилей для гипсокартона лучше собирать по секциям, это легче и намного быстрее, а монтаж крыши произвести на земле, поднять и прикрепить.

Стол на 4 прямых ножках
Для изготовления стола из металлопрофиля своими руками можно остановиться на такой конструкции: рама с поперечным ребром жесткости, 4 вертикальных ножки, соединенных проножками. Трубу для рамы нарезают с таким расчетом, чтоб края столешницы выходили за ее пределы на 5-10 см со всех сторон. Длина ножек подбирается с учетом желаемой высоты стола. Используется профильная труба 20х40. Необходимо:
- 2 длинных и 2 коротких отрезка для рамы плюс 1 короткий для поперечного ребра жесткости;
- 2 длинных и 2 коротких для проножек;
- 4 для ножек.
- Сваривается рама.
- Перпендикулярно длинным сторонам посредине приваривается поперечина.
- Во внутренние углы рамы строго перпендикулярно устанавливаются ножки и привариваются.
- На некотором расстоянии от пола к ножкам приваривают проножки.
Столешницу можно сделать на свой вкус: из досок, МДФ, толстой фанеры и других материалов. К раме каркаса столешница крепится уголками.
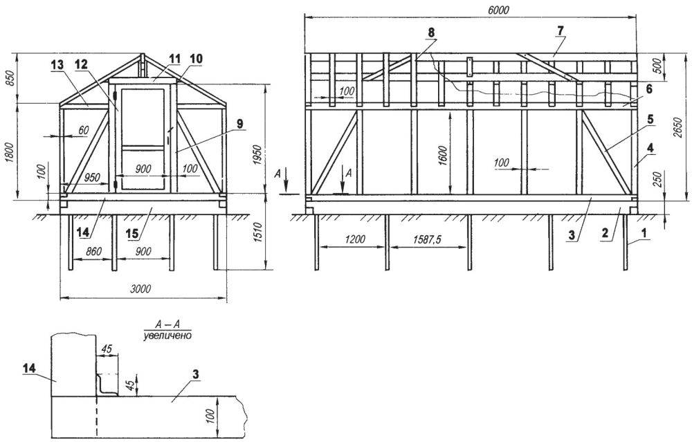
Чертежи теплиц с размерами. На что нужно обратить внимание при проектировании
Чтобы правильно рассчитать, сколько потребуется материала, сперва составляют чертеж теплицы с двухскатной крышей. Можно скопировать чертеж, представленный в интернете, а можно придумать свой вариант. Разрабатывая свой проект строительства, рекомендуется рассчитывать количество материала, опираясь на стандартную длину профилей. Размеры теплицы выгоднее делать такими, чтобы при нарезке оставалось как можно меньше отходов.

Разрабатывая чертежи своей теплицы, нужно учитывать следующие нюансы:
- размеры стандартных листов поликарбоната и их раскрой;
- увеличение материала под действием жары;
- способность выдерживать возможные внешние нагрузки;
- края листов поликарбоната должны размещаться на опорах из профиля;
- наличие ряда комплектующих: перфорированные ленты, термические шайбы, саморезы и т. д.

В чертежах не забудьте предусмотреть определенное количество соединений, чтобы обеспечить надежное крепление листов поликарбоната к каркасу и между собой. Отверстия под саморезы должны быть с учетом термического расширения материла. Если это не учесть, то поликарбонат может покоробиться под действием высокой температуры летом, а при морозе возможно растрескивание пластика.
Важно также правильно размещать листы сотового поликарбоната. Их нужно устанавливать так, чтобы ячейки располагались вертикально, и конденсат беспрепятственно стекал по каналам листа наружу
Обшиваем гипсокартоном, делаем звукоизоляцию
Пошаговая инструкция:
- ГКЛ разрежьте на части, длина которых будет соответствовать расстоянию от пола до потолка. Ширина листов стандартная.
- На одну каркасную сторону устанавливайте ГКЛ впритык. На лицевой стороне листов не забывайте помечать места установки электрической арматуры. Закрепляйте ГКЛ саморезами на расстоянии максимум 2,5 см.
- Далее установите листы с другой стороны каркаса. Монтаж листов аналогичен, только теперь между ними нужно размещать утеплитель со звукоизолирующим эффектом. По толщине он должен быть меньше расстояния между каркасными сторонами.
Звукоизолятор После успешного завершения этого этапа можно начинать финишную отделку (ФО).
Что потребуется
Желающему сварить теплицу из профильной трубы своими руками, потребуется заготовить несколько материалов. А именно:
- металлопрофиль 20 х 40 мм или близкий к этим параметрам, с толщиной стенки 1,2 мм (количество метров зависит от будущих размеров конструкции);
- уголок с полкой 40мм;
- навесы 4 шт;
- анкера диаметром 10 мм и длинной 120 мм;
- арматура 10-12 мм для армирования основания;
- цемент и песок;
- доски для опалубки;
- листы поликарбоната и термошайбы для их крепления.
Все работы получится выполнить самостоятельно. На этой странице имеется схема разнообразных конструкций и видео по созданию теплиц. Из инструментов понадобятся: сварочный аппарат, болгарка, приспособление для сгибания трубы, дрель, разводной ключ, лопата, молоток. Процесс выполняется в последовательности, описанной в данной статье.
Как сделать внутренние гипсокартонные углы
Стартовый профиль устанавливается по разметке. Один конец немного заходит за другой.
Для того чтобы сделать внутренние углы, выполняют сначала каркас, причем металлический, и он может быть разных видов в зависимости от того, какой предполагается монтаж. Для внутренних углов лучше всего использовать основание, где применяются стоечные профили CD или ПС, без таких профилей не обойтись. Надо отметить, что без качественного профиля отделка в самом скором времени испортится – стены начнут покрываться трещинами. Для монтажа соединяются два отрезка профиля. Для этого используются саморезы по металлу, длина которых около 9 см. Причем их нужно устанавливать через каждые 25 см, и тогда монтаж будет надежным. Когда выполняется монтаж, надо учитывать, что от расстояния между саморезами зависит то, насколько будет жестким основание, а внутренние углы из гипсокартона предусматривают основание максимальной жесткости.
Монтаж нужно обязательно делать на идеально ровной поверхности – отлично подойдет для этого лист из гипсокартона. Теперь нужно перпендикулярно половине внешней стороны одного профиля прикрепить боковую часть другого профиля. Получится жесткая конструкция из профилей, и теперь ее необходимо соединить с периметральным направляющим профилем ПН-UD. Конструкция из профилей может быть выполнена в нескольких вариантах, но этот является самым простым. Чтобы это осуществить, нужен угловой профиль, который выставлен по уровню, он приделывается к периметральному профилю, используются при этом саморезы. Когда он собирается уже из выбранного материала при помощи такой несложной усиливающей конструкции, можно не беспокоиться насчет его целостности
И еще – если угол изготовлен должным образом, стены комнаты не будут деформированы, но тут важно и качество профилей. Внутренний угол можно считать готовым





































