Уникальная квартира телеведущего в историческом доме
Двухэтажная квартира телеведущего расположена в самом центре столицы на Пречистенке. Старинное здание было построено ещё в 1913 году. Изначально это был доходный дом, принадлежащий семье фон Мэкк. После революции 1917 года его разбили на коммуналки и заселили рабочими.

В таком виде апартаменты и застал Владимир Познер. Путём сложных схем расселения с привлечением талантливых юристов квартира площадью 100 м 2 была продана телеведущему за сущие копейки.

Планировка старинных апартаментов
На первом этаже уникальной квартиры обустроили просторную гостиную, совмещённую со столовой зоной, и кухню. Высокие потолки позволили установить роскошные переходы между комнатами. В качестве отправного дизайна была выбрана традиционная классика, которую телеведущий дополнил антиквариатом. Комнаты оформлены в светлой гамме, она визуально расширяет и без того немаленькое пространство.
Необычный выбор для гостиной
Гостиную от столовой зоны отделяет небольшая несущая стена, вход с одной стороны оформлен эффектным порталом, украшенным матовым стеклом. Второй вход декорирован широкими молдингами и картинами в строгих классических рамках.

ФОТО: remkasam.ru Панорамное окно в столовой украсили светлыми однотонными шторами, эффектно подобранными в нижней части

ФОТО: uno-cherami.club В столовой зоне поставили овальный стол из массива и классические стулья с мягкими спинками
Гостиную разделили на две части при помощи оригинальной барной стойки из мрамора, с одной стороны которой разместили коллекцию вин. Столешницу украшают семейные фотографии в красивых рамках и разнообразные сувениры. Для пола во всём пространстве выбрали единое покрытие из паркетной доски.
В зоне отдыха поставили угловой диван, обитый хлопчатобумажной тканью светло-молочного оттенка. Напротив на небольшом комоде разместили огромную плазму. Каждое пространство освещают роскошные классические люстры с лампочками в виде свечей.

ФОТО: vladimirpozner.ru Батареи отопления украшены экранами с ажурной резьбой

ФОТО: s9.stc.all.kpcdn.net Из гостиной через небольшой холл можно попасть на кухню

ФОТО: mc.bk55.ru Диван украшен яркими декоративными подушками
Каминная зона на втором этаже
Над столовой зоной на втором этаже обустроили уютный уголок для отдыха. Главное место занимает роскошный каминный портал из массива, поверхность которого украшена фрезеровкой, ажурными декоративными накладками и патинированием. Над ним повесили огромное зеркало в шикарной раме и стильное бра в виде канделябра. По обе стороны поставили оригинальные невысокие торшеры в виде полуколонн.
Возле портала расположили друг напротив друга два небольших дивана с велюровой обивкой. На каждом из них установлен подлокотник только с одной стороны. Между ними разместили оригинальный столик в виде настоящего раритетного сундука со старинными петлями и замками.


Скромный интерьер кухни
Стены кухни окрашены в нежно-голубой оттенок, пол облицован коллекционным кафелем прямоугольной формы. В просторной комнате разместили линейный гарнитур, изготовленный из массива, украшенный хромированными ручками-ракушками. Для столешницы выбрали практичный искусственный камень, фартук отделали небольшой светлой плиткой.
Над варочной поверхностью закрепили Т-образную вытяжку из нержавейки, над которой разместили открытую полочку для кухонных специй. Все пространство над верхними шкафчиками занимает уникальная коллекция кружек с названиями городов. Её Владимир Познер собирает уже много лет, и сегодня она насчитывает более 300 экземпляров.

ФОТО: belta.by Окно украшает римская штора из органзы с набивным принтом
Кабинет телеведущего
Кабинет Владимира Познера находится на втором этаже квартиры. Телеведущий гордится своей коллекцией книг, у него собрано немало уникальных изданий не только на русском, но и на французском и английском языках, которыми журналист владеет в совершенстве. Для размещения печатной литературы были специально заказаны высокие стеллажи и книжные шкафы с открытыми полочками.
Любимое место телеведущего – антикварный письменный стол из натурального дерева с лакированной поверхностью, который установили возле окна. На столешницу поставили старинную лампу на штативе со светлым тканевым конусообразным абажуром. Удобный крутящийся стул с невысокой спинкой, по признанию Владимира Познера, он не променяет ни на какие современные офисные кресла.
При желании в кабинете можно отдохнуть на удобном раскладывающемся диване со светлой тканевой обивкой. Рядом на стене установили небольшой телевизор. Украшают кабинет эффектные шторы с пёстрым принтом и классический ковёр в красно-бежевой гамме.


Журналистика
Осенью 1961 года Владимир Познер поступил на работу в недавно открывшееся Агентство печати «Новости», где занимался редактурой журнала USSR, который распространялся за границей, в основном на территории Америки. В 1967 году работал над литературным дайджестом «Спутник».
В 1970 году начинает сотрудничать с Государственным комитетом радиовещания СССР в качестве комментатора. Его программы выходили каждый день до 1985 года и транслировались на территории Англии и Соединенных Штатов.
В конце 70-х началась телевизионная биография Владимира Познера: он стал частым гостем на американском телевидении. Молодой человек появляется в программе Nightline, а также в ток-шоу Фила Донахью. Задачей Познера было представление в выгодном ключе действий и заявлений правительства. Он выступал в защиту наиболее спорных моментов советской истории, в частности оправдывал ввод советских войск на территорию Афганистана.
Совместно с Филом Донахью в 1985 году он провел телемост Ленинград — Сиэтл, называвшийся «Встреча в верхах рядовых граждан». Через год провел телемост «Женщины говорят с женщинами» между Ленинградом и Бостоном, а затем — еще один телемост, в этот раз с участием советских и американских журналистов. Эти проекты стали дебютом Владимира Познера в эфире телевидения, после чего он получил должность политического обозревателя и начал работать на центральном телевидении.
Владимир Познер, Константин Иванов и Николай Дроздов Согласно опросам того времени, Владимир Познер был признан самым авторитетным журналистом советского телевидения. Но, несмотря на свою популярность, в 1991 году он решил покинуть Центральное телевидение из-за разногласий с руководством.
В начале 90-х Владимир Познер принимает приглашение Фила Донахью работать в США, где до 1996 года выходит их совместная передача. Параллельно он работает над своими передачами в Москве, для записи которых ежемесячно совершает перелеты из Америки в Россию. В это же время издаются в США две его автобиографические книги — «Запад вблизи» и «Прощание с иллюзиями».
С 1994 по 2008 год Владимир Познер занимал должность президента российского телевидения. В 1997 году тележурналист вновь возвращается в Москву, где живет по сегодняшний день.
Одним из известнейших проектов Владимира Владимировича считается его авторская программа «Познер», впервые вышедшая в эфир осенью 2008 года. Формат популярного проекта — интервью, в ходе которого ведущий задает вопросы общественно-политическим деятелям, представителям культуры, науки и спорта.
Тематика встреч может быть как привязанной к текущей ситуации, так и стать беседой в свободной форме. В ходе интервью гостям предлагается ответить не только на вопросы ведущего, но и на заранее записанные вопросы, которые задают случайные люди на улицах. В конце каждой программы Владимир Познер произносит небольшое заключительное слово, где предлагает зрителям еще раз подумать над актуальными проблемами, затронутыми в ходе передачи.
Владимир Познер и Иван Ургант в фильме «В поисках Дон Кихота» За годы существования программы «Познер» в роли гостей студии побывало огромное количество знаменитых людей, в числе которых Михаил Горбачев, Олег Табаков, Михаил Жванецкий, Хиллари Клинтон, Дмитрий Медведев, Дмитрий Смирнов, Ксения Собчак, Земфира.
В 2000-х Владимир Познер написал и издал еще несколько книг, среди которых «Одноэтажная Америка», «Тур де Франс. Путешествие по Франции с Иваном Ургантом», «Прощание с иллюзиями» и «Их Италия». В 2014 и 2015-м появились еще две автобиографические книги писателя и телеведущего — «Познер о Познере» и «Противостояние».
Владимир Познер часто сотрудничает с молодым коллегой Иваном Ургантом. Вместе они сделали несколько документальных фильмов, среди которых зрителям запомнились «Одноэтажная Америка», «Тур де Франс», «Их Италия» и «Германская головоломка».
В 2021 году Владимир Познер продолжил радовать поклонников своего таланта новыми познавательными документальными лентами, выпустив фильмы «Еврейское счастье» (совместно с Иваном Ургантом) и «Шекспир. Предостережение королям».
В 2021 году зрители с удовольствием посмотрели новый совместный с Ургантом проект под названием «В поисках Дон Кихота». Это 8-серийный фильм-путешествие по Испании, премьера которого состоялась в январе 2021 года на «Первом канале». Владимир Познер и Иван Ургант не только путешествовали по предполагаемому маршруту легендарного идальго, но и прошли шуточный обряд рыцарского посвящения и попытались разобраться, кто такие испанцы.
Без каких идей не обойтись
Прихожая в частном доме может быть либо продолжением стилистики всего комплекса (будь то дача, коттедж, загородный или деревенский дом), либо его особой, отличной от других интерьеров частью. В первом случае ремонт прихожей становится итогом строительства, завершает оформление всех помещений. Когда комнаты уже приняли законченный образ и понятен общий стилистический настрой. Второй случай требует дополнительной проработки и финансовых затрат.
Прежде чем подойти к дизайну прихожей в частном доме, будет не лишним подумать над тем, что ожидаете от этого помещения.
- Сколько человек одновременно могут находиться в прихожей в случае необходимости, как они будут располагаться?
- Будут ли храниться вещи в коридоре? Их возможный объем. Есть ли необходимость в кладовой?
- Размеры прихожей позволяют разместить все запланированное и необходимое?
- Прихожая будет продолжением общего дизайна или призвана нести самостоятельную интерьерную нагрузку?
Ответив на вопросы, стоит изучить возможные варианты отделки, посмотреть фото реализованных объектов. Соотнести прочитанное и увиденное с финансовыми возможностями
Подходя к дизайну прихожей в загородном доме, обратите внимание на освещение. Отлично, если в коридоре есть окно
Темные углы нежелательны: грязь и насекомые — любимцы таких мест.
На фото: прихожая для частного дома
На фото: отделка прихожей в доме
На фото: коридор в частном доме
На фото: интерьеры прихожей в доме
На фото: дизайн прихожей в частном доме
На фото: интерьер прихожей в доме частном
На фото: прихожая в доме дизайн
Прихожая в частном доме требует к себе особого внимания со стороны оформления. В деревянном доме и на даче, где на первый план выходит забота об уюте, вряд ли подойдет стиль хай-тек. Здесь на первом плане скорее будет учитываться практичность. Коттедж и дворец с большими площадями могут позволить себе гораздо больше при выборе вариантов дизайна и оформления.
Эффективно обустроить прихожую в деревянном доме можно лишь тщательно проработав архитектурный проект, внимательно относясь ко всем нюансом отделочного материала, соблюдая правила дизайна. Прихожая деревенского дома или дачи потребует учитывать частоту входа-выхода. Отсюда вытекает идея для дизайна, строящегося на практичности помещения, износоустойчивости отделочных материалов и функциональности мебели.
Прихожая в коттедже предполагает различные проекты, учитывая объем помещения. Он обычно большой, отличающийся геометрией и ориентированностью к другим помещениям. Подходы к дизайну похожи на городские варианты проектов. А может быть наоборот?
На фото: прихожая в доме дизайн
На фото: интерьер входного пространства
На фото: первая комната
На фото: красивый интерьер
На фото: интерьер с естественным освещением
На фото: коридор загородного дома
Лучшие варианты интерьера
Современные трехкомнатные квартиры могут сочетаться с самыми смелыми аксессуарами, ломающими привычные шаблоны радикальным образом. Зеркало, как будто собранное из квадратов, формирует иллюзию уходящей неведомо куда двери; потолок гостиной можно не только поднимать, но и частично опускать, чтобы ставить приборы скрытой подсветки и маскировать карнизы, на которые вешаются шторы. Оригинальная идея – принципиальный отказ от главного светильника, предпочтение скрытым осветительным приборам в любой из частей комнаты. Если вы хотите подчеркнуть свою приверженность экзотической японской стилистике, просто поставьте за низким диваном бамбуковые палки. И это лишь несколько примеров того, как простейшими способами создать оригинальный дизайн.


Прибавить обстановке в типовых помещениях визуальной целостности помогает закрепление зеркал над туалетными столиками. Прямо напротив можно поставить телевизор и рабочую область, которые визуально связываются настенными полками. Но пространство можно как объединять, так и разделять. В угловых трехкомнатных квартирах для этой цели могут пригодиться перегородки, ставящиеся в промежутке между оконными проемами. Вот и выйдет вместо обычных трех комнат четыре с минимальными усилиями. Зарегистрировать такое изменение тоже несложно.

В варианте с организацией спальни, гостиной и детской целесообразно сливать в один объект кухню и столовую, а общую стилистику выдержать в бежевой окраске. Когда кухонное и гостевое пространство недостаточно велики, правильнее стирать границы уже между ними, параллельно расширяя личное пространство. Другие две комнаты стоит превратить в кабинет и в детскую.
Часто в трехкомнатных квартирах удаляют перегородки, которые разграничивают гостиные и коридоры. Совмещение ванной и туалета с замуровыванием одних дверей поможет увеличить площадь комнаты.


Идеи планировки 3-х комнатной квартиры — следующее видео.
Варианты дизайна двухкомнатной квартиры
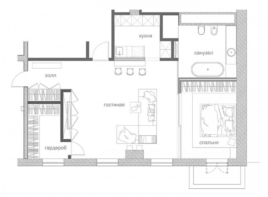
Особенности планировки квартиры доступны для создания индивидуального дизайна. В этом случае стоит учитывать возраст и социальный статус жителей. Дизайн интерьера для пожилой пары существенно отличается от дизайна холостяцкой квартиры. Деление помещения на функциональные зоны должно быть удобным и интуитивно понятным для жителей.
Типовой
Типовая планировка квартиры, как правило, требует создания нового пространства с четким разделением на зоны.
В зависимости от состава жильцов и их предпочтений кухня может быть соединена с гостиной или, наоборот, изолирована. За счет длины коридора можно увеличить площадь ванной и превратить лоджию в мини-гардероб.
Для создания гармоничного пространства мебель в совмещенном пространстве не должна отменять выбранный стиль в обеих зонах.
Важное правило такой переделки — заранее рассчитать стоимость сноса перегородок и строительства новых. Это решение не всегда бывает финансово выгодным
Малогабаритной
Небольшие апартаменты площадью менее 40 квадратных метров. При проведении перепланировки необходимо провести грамотное функциональное зонирование и выделить пространство под спальню, кухню и обеденный блок, ванную комнату. Создайте эргономичные места для хранения вещей.
Светлые оттенки в дизайне помогут избавиться от ощущения тесноты. Глянцевая поверхность мебели и зеркал в дуэте с точечным освещением «сместила» стены и потолок.
Перепланировка комнат
Существует еще одна, крайне неудобная планировка, когда все помещения идут друг за другом, в ряд. В этом случае рекомендуем снести две стены: между второй и третьей комнатой, а так же между третьим помещением и кухней. Результатом такой перепланировки станет большое пространство, в котором можно организовать гостиную-столовую, а с помощью перегородки можно отделить рабочий кабинет или детскую.

Такой метод сноса стен позволит получить большую студию. Она будет иметь различные зоны, которые можно подчеркнуть индивидуальным напольным покрытием. После того как будут окрашены потолок или стены в разные цвета, определятся и функциональные зоны. Они придадут помещению больше комфорта и визуально расширят пространство.
Чтобы увеличить площадь жилого помещения, многие жильцы хрущевок прибегают к еще одному варианту объединения балкона с одной из комнат. Но этот метод не всегда может быть утвержден в БТИ. Во-первых, потому что это нарушение фасада, а во-вторых, такая балконная конструкция может просто не выдержать остекления утепленным профилем.

Существует еще один вариант перепланировки трехкомнатной хрущевки. Возможно, вам он подойдет больше. Это создание четвертой комнаты. Если, к примеру, хозяева квартиры хотят иметь гардеробную, то этот вариант им подойдет наверняка. Найти место для такой комнаты не сложно. Если для жилого помещения нужно естественное освещение, то гардеробная может быть оборудована осветительными приборами. В комнате с единственным окном создавать еще одно жилое помещение не целесообразно.
Перепланировка трехкомнатной хрущевки – это отличная возможность для того, чтобы создать новый и неповторимый облик своей квартиры. Любой из представленных вам вариантов сделает ваш дом красивым и оригинальным, удобным и функциональным. Но самое главное, что такая перепланировка хрущевки увеличит жизненное пространство. А это уже большое достижение.
Где живёт Владимир Познер – квартира, которую телеведущий придумал себе сам
Квартира Владимира Познера расположена в самом центре Москвы, на Пречистенке. Дом очень старый, 1913 года, пропитан историей. Когда-то помещение принадлежало семье фон Мэкк. После революции более 100 кв. метров были разделены на пятикомнатную коммуналку. В таком виде, путём многочисленных юридических манипуляций и перепродаж, жильё досталось известному ведущему и публицисту Владимиру Познеру.

Многоуровневый дом Владимира Познера расположен в историческом центре Москвы на ул. Пречистенке
Это как раз тот случай, когда дело в деталях. Очень дорогих – если мебель, то антиквариат. Если полотно, то оригинал. Если библиотека – то с очень редкими книгами.

Именно поэтому в квартире Познера как много от французского шарма, американского лоска, немецкой практичности

Мебель удачно совмещает нотки разных культур На первом этаже расположены гостиная кухня и столовая. Здесь Познер встречает гостей, даёт интервью, отдыхает в кругу семьи.

Столовая очень удачно расположена перед большим эркерным окном, кухня светлая, просторная

Здесь очень часто встречают гостей Оформление гостиной классическое, окна обрамляют большие римские шторы, натуральная мебель подчеркивает любовь владельца к антиквариату и комфорту. В доме Познера очень мало современных вещей.

Одну из зон разделяет бар-стеллаж с внушительной коллекцией вина и множеством семейных фотографий
Из современного, в интерьере, пожалуй, лишь большой телевизор и кухонная техника. Часть мебели Владимир Владимирович в прямом смысле этого слова принёс с помойки. Был период, когда советские интеллигенты отказывались от старой мебели в пользу финских стенок, и именно в это время журналист собирал её и реставрировал. Познер признаётся, что он любит вещи с историей, когда чувствуется рука мастера, его стремление создать что-то красивое

Именно поэтому он лично курировал все этапы работ, подбор и расположение мебели
К примеру, в кухне можно найти бокалы, выполненные из настоящего венецианского стекла XVIII века. Отдельное место занимает коллекция кружек, привезённых с разных уголков мира. Одна из любимых — кружка из Нью-Йорка.

Сейчас в коллекции мэтра около 300 экземпляров посуды
Отдельного внимания стоит уголок для чтения на втором этаже квартиры, чтобы добраться до некоторых изданий, приходится использовать лестницу.

В кабинете Познера собрана удивительная коллекция антикварной литературы на разных языках: французском, английском и русском
Кабинет достаточно удобный и комфортный для отдыха и работы. Сюда публицист редко приглашает гостей. Он считает, что рабочая зона должна быть тихой и интимной.

В кабинете Познер редкое даёт интервью

Часть зоны оформлена в темных, сдержанных тонах, с упором на натуральные материалы

Здесь мэтр слова чаще всего читает книги
По данным ЦИАН цена такой жилплощади может стартовать от 70 миллионов рублей и выше. Так же во владении Познеров имеется жилплощадь на Новослободской улице. Как и у многих жителей мегаполисов, у Познера имеется и загородное жилье. Свой дом на участке в два гектара он построил в 1993 году в поселке Внуково. Территория загородного дома примыкает к лиственному лесу и небольшой речке.
А вы каким представляли дом известного телеведущего? Поделитесь своим мнением о том, насколько близок вам стиль оформления интерьера Владимира Познера.
Обсудить1
Предыдущая
ЗВЁЗДЫ ПОКАЗЫВАЮТТанцуй, пока молодой: уникальный дом и столичная квартира Аллы Духовой
Следующая
ЗВЁЗДЫ ПОКАЗЫВАЮТВ пяти минутах от Кремля: где живет портретист Никас Сафронов
Как добиться максимально полезного использования пространства?
Очень многие люди привыкли к темным, захламленным квартирам, при этом избегая непривычно больших помещений или необычных дизайнерских решений. Но вот что стоит знать, приобретая квартиру и собираясь делать ее перепланировку (или вовсе проектируя комнаты с нуля):

Избегайте квартир с большим количеством несущих стен – все они ограничивают вашу фантазию и затрудняю возможность перепланировки. Чаще это очень громоздкие стены, мешающие свободе передвижения и не позволяющие зонировать помещение.
Обращайте внимание на форму комнат. Лучше, если она будет правильной квадратной или прямоугольной – интерьер в таких оформить проще, а при желании комнаты можно будет объединить


В связи с предыдущим пунктом, старайтесь избегать квартир, в которых санузел находится между комнатами, так как обычно это исключает возможность сноса лишних стен и объединения пространства.

Большое количество острых углов и выступов превращают площадь в бесполезное нагромождение кирпичей. Скругляйте выступы, превращайте их в удобные ниши и убирайте советские антресоли, нависающие прямо над головой.

Позаботьтесь о расположении комнат: оно должно быть удобным для ежедневного использования (спальни обычно располагают рядом друг с другом, но как можно дальше от кухни и прихожей).

Забудьте о длинных узких «больничных» коридорах. Они занимают много пространства, но в сущности совершенно бесполезны, например, для планировки двухкомнатной квартиры, ведь комнаты можно расширить за счет подобного коридора, организовав небольшую прихожую, и снести глухие стены, которые делают помещения слишком изолированными.

Предпочитайте квартиры в домах, построенных по монолитному принципу. Они дают гораздо больше возможностей для перепланировки, потому что ограничены разве что размещением основных коммуникаций.

Создайте на балконе отдельное пространство для работы и отдыха или расширьте комнаты за счет лоджии.


Позаботьтесь о зонировании и отделении жилых помещений разного назначения друг от друга тумбами, шкафами, перегородками, ширмами или шторами даже при планировке квартиры-студии. Такие предметы не занимают много места, но помогают отделить личное пространство человека от пространств «общего пользования», тем самым еще и не допуская захламления, например, зоны спальни кухонными принадлежностями.
Личная жизнь
Екатерина Чемберджи замужем за немцем Клаусом Брауном.
У супругов двое детей: дочь Мария и сын Николай. Они очень любят своего деда Владимира Познера и с самого детства называют его Вовочкой.
Дочь Мария родилась ещё в СССР, в 1984 году. Она стала музыковедом, журналистом, защитила диссертацию, в совершенстве владеет немецким, французским и русским языками. Мария работает на радио и телевидении, является автором программ о музыке. В настоящий момент проживает то в Германии, то во Франции вместе со своим мужем-французом и сыном Валентином, который появился на свет в 2014 году. Сын Николай родился в Германии, в 1995 году. Он тоже музыкант.
У Екатерины Чемберджи есть сводный брат Александр Мельников (сын Валентины Чемберджи от второго брака с математиком Марком Мельниковым) – он, также как и сестра, известный пианист, Заслуженный артист России.
Возможные минусы планировки.
На этапе предварительной подготовки к перепланировке по возможности необходимо выявить все имеющиеся недостатки. Это поможет добиться максимального удобства и комфорта от всех комнат в квартире.
Размеры кухни
Хотя эта комната в основном используется для приготовления еды, она также используется для общения или отдыха. Слишком маленькая кухня ограничивает возможности жильцов. Если кухонная площадь дома составляет 4 или 6 кв м, то стоит рассмотреть возможности ее увеличения.
Планировка санузла
Многие считают, что если есть совмещенный санузел, желательно переделать его в отдельный. Хотя в большинстве случаев это оправдано, некоторые люди предпочитают использовать комбинированный.
Первый вариант удобен для большого количества жильцов, второй может подойти, когда в квартире проживают один-два человека. Обычно вопрос, как удобнее, решается исходя из конкретной ситуации.
Коридор
Недостатки коридорной планировки могут выражаться, например, в небольших размерах или в вытянутой форме. В некоторых квартирах он может быть недоступен
Важно при планировании учесть необходимость комфортного коридора
Высота потолков
Если высота слишком большая, можно использовать столешницы или аналогичные решения. Если правильно подобрать визуальное оформление, можно изменить восприятие формы и размера комнаты.
Очень маленькая площадь
Некоторые апартаменты небольшие по размеру. Если места мало, можно подумать о такой перепланировке, чтобы убрать часть стен, сделав внутреннее пространство немного просторнее.
Нестандартные формы и пропорции
Есть квартиры с простой и удобной планировкой. Однако в некоторых из них стены неправильной формы и размера. Менять их по мере необходимости с помощью перепланировки сложно, но дизайнерские приемы для этого можно использовать.
Преимущества совмещения кухни и гостиной
Дизайн кухни-гостиной Прежде чем начинать ремонтные работы важно выяснить все плюсы и минусы объединения помещений. К преимуществам можно отнести следующее:
- Увеличение пространства. Семьи, которые проводят много времени на кухне за совместной готовкой, несомненно, будут рады подобной перепланировке. Появляется возможность обустроить столовую и зону отдыха, используя большой кухонный гарнитур, диваны и предметы декора.
- Наличие свободной зоны. Не каждый дом или квартира могут похвастаться большим помещением, так как стандартные параметры кухонь редко превышают 10 кв. м. Исправить эту ситуацию можно с помощью объединения кухни и гостиной, получив при этом пространство для игр, отдыха, просмотра фильмов и приготовления пищи.
- Разнообразный дизайн. На фото дизайн кухни-гостиной 18 кв. м представлен в стиле хай-тек, модерн, кантри, лофт и пр. Воплотить такие интерьеры представляется реальным только в просторных помещениях. Это связано в первую очередь с тем, что любой современный дизайн основывается на четком распределении пространства.
К основным недостаткам общего помещения можно отнести потерю одной жилой комнаты, которая могла быть переделана под спальню или личный кабинет.
Угловая планировка
Рост, вес, возраст. Сколько лет Владимиру Познеру
В начале нового тысячелетия мужчина стал вести прямой телемост между Ррссией и Соединёнными Штатами Америки. После этого на сайте главного телеканала появилась общая информация о нём, в том числе, какой у него рост, вес, возраст. Сколько лет Владимиру Познеру – не является тайной. В октябре 2021 года телеведущий отметил скромно своё 83-летие.

Владимир Познер, фото в молодости и сейчас которого выставлены в широком доступе на его странице в Инстаграм, выглядит прекрасно. При росте в 180 см звезда телеэкрана выглядит стильно, молодо и привлекательно. Весит он около 80 кг. В свободное время мужчина активно занимается спортом.
Критерии выгодной планировки
Критерии планировки универсальны, прочитав их, вы выберете жилье и поймете, на что в первую очередь смотреть при рассмотрении вариантов. Познакомимся с ними по порядку:
- Наличие кладовой для квартиры, «темной комнаты». Удобно будет хранить ведра, швабры, пылесосы и так далее. Если позволяет площадь кладовой (от 1,2-1,5 кв.м) — оборудуйте там гардеробную;
- Большая кухонная зона. Так, для двухкомнатной квартиры 50 кв м просторной кухней считается 9 кв. Если габариты больше, создайте зону отдыха;
- Высокие потолки. Нормальная высота — 2,5 — 2,8 м;
- Наличие достаточного количества солнечного света в комнатах, что полезно для тела и экономит энергию. Если окна маленькие и света попадает мало, придется взять за основу искусственное освещение;
- Большая лоджия, балкон. В таком помещении приятно дышать свежим воздухом, не выходя из дома, и убирать громоздкие предметы: санки, велосипеды, гостевые одеяла, банки с солеными огурцами;
- Окна выходят на разные стороны, что позволит сохранять дневной свет в течение всего дня;
- Широкие коридоры.
Составляем список всего необходимого
Это максимально важный пункт, который должен идти именно первым. В однокомнатной квартире не всегда получается разместить всё, что хотелось бы
Важно сразу расставить приоритеты, что вам важнее, а от чего можно отказаться
Примерный список вещей для которых может быть не просто найти место в однокомнатной квартире: ванна(может быть имеет смысл отказаться в пользу душевой + стиральной машины), двуспальная кровать(насколько важна для вас или диван сойдёт), количество шкафов и других мест хранения, полный набор кухонной бытовой техники, кровать и зона для ребёнка сейчас или на будущее, рабочее место для компьютера и т.д.
Когда про этот пункт забывают, это заканчивается попыткой впихнуть недостающее на последнем этапе ремонта. Часто в итоге имеем нелепо расположенную стиралку или холодильник в прихожей.
Никто лучше вас не знает, какой должна получиться ваша квартира. Людям не нужна была большая кухня, они расставили приоритеты и сделали свой выбор в пользу дополнительной комнаты за счёт уменьшения кухни:




































