Отличие рулонных и кассетных штор — разбираемся в механике
Рулонные шторы
Стандартная и самая простая рулонная штора — это полотнище ткани, которое накручивается на валик. Ее можно без проблем закрепить не только на окне, но и на стене, дверях и даже на потолке Утяжелитель в нижней части полотна обеспечивает хорошее натяжение. Рулонная штора — это базовая модель, именно она является основой для остальных вариантов.
Рулонные шторы кассетного типа
Более совершенные модели дополнены так называемой кассетой. Это специальный короб из алюминия или пластмассы, который закрывает как рулон шторы, так и механизм, приводящий ее в движение. Такая система очень аккуратно выглядит и защищает свернутую ткань от пыли.
Стандартные
Стандартные рулонные шторы станут оптимальным решением для помещений с обычными требованиями к освещенности. Изготавливают их из полиэфирной ткани повышенной прочности, способной отлично рассеивать солнечный свет.

Богатая цветовая палитра позволит легко подобрать такой вариант полотна, который бы максимально гармонично вписывался в заданный интерьер комнаты.

Фиксировать их можно в трех положениях при помощи специальных крючков, закрепленных на внутренней стороне рамы. При желании занавеску можно доукомплектовать специальной ручкой-планкой, упрощающей управление ею.

Стандартные небольшие рулоны имеют ширину до 1,5 и высоту до 1,8 м. Наматывается такое полотно на трубку диаметром 25 мм.

Если вам необходимо перекрыть оконный проем более внушительных размеров, вплоть до 3 м по ширине и 4,5 м по высоте, то остановите выбор на рулонах, основанных на 42 мм трубах и более.

В этом случае вес конструкции будет более внушительным, поэтому для ее закрепления понадобятся кронштейны повышенной прочности. Монтировать их можно на стену, на потолок, на откосы оконного проема.
Кассетная система рулонных штор для окон: достоинства и особенности ухода
Если вы еще сомневаетесь, нужны ли в вашем доме рулонные шторы кассетной системы, примите во внимание их несомненные достоинства. Итак, они:
- Очень компактны. Поэтому их часто ставят на пластиковые и деревянные евроокна окна в маленьких помещениях для экономии пространства.
- Подходят к любому размеру окна и к любому интерьеру.
- На удивление просты и понятны в установке. Для монтажа одних моделей используются саморезы, а другие и вовсе крепятся с помощью двустороннего скотча. Готовые кассетные рулонные шторы на пластиковые окна стандартных размеров нетрудно установить самостоятельно.
- Могут иметь специальное покрытие, которое защищает от выгорания, отталкивает пыль и не дает впитываться запахам. Последнее идеально для кухни с ее стойкими ароматами пищи.
- Стирать и тем более гладить ролло шторы не придется. Достаточно раз в неделю аккуратно пылесосить их с мягкой насадкой и периодически протирать полусухой губкой.
Могут использоваться как самостоятельно, так и в комбинации с традиционными гардинами.
Направляющие
Направляющие для шторы — это два узких пластиковых профиля (п-образных), закрепленных на окне вдоль оконной рамы справа и слева. Полотно заправляется в направляющие и плотно прилегает к раме, при подъеме и опускании движение плавное и ровное, ткань не задирается.
Но главное, направляющие просто необходимы для поворотно-откидных половинок пластикового окна — при наклонном открывании створки полотно будет все также плотно прилегать и оставаться в любом положении, например, в приподнятом наполовину.
Если используется пружинный механизм управления, вместо направляющих на нижней раме створки по бокам можно прикрепить специальные крючки: за них цепляется планка-утяжелитель, когда рулонная штора полностью опущена. Крючки пригодятся, если штора установлена на открывающуюся створку.
Светонепроницаемость рольштор

Одна из функций, которую выполняют рулонные шторы, — защита от солнечного света. Уровень светопроницаемости будет зависеть от выбора самого полотна: плотного или полупрозрачного. Из плотных полотен наибольший спрос имеют 2 разновидности: Dimout и Blackout.
- Первые частично пропускают солнечные лучи, создавая эффект затемнения на 90 %.
- Второй вид – очень плотная конструкция, на 100 % защищающая комнату от попадания солнечного света.
Очень часто покупатели отдают предпочтение конструкции день-ночь или штора-зебра, где чередуются плотные полоски ткани с полупрозрачными. Это позволяет регулировать количество солнечного света в комнате, затемняя ее так, как вы хотите.
Преимущества и недостатки
Чтобы решить, подходят ли рулонные шторы для применения в вашей кухне, необходимо изучить их достоинства и недостатки. Итак, начнем.

Система для рулонных штор закрытого типа
- Возможность установки конструкции несколькими способами позволяет использовать их для оформления самых сложных и нестандартных оконных проемов.
К тому же ими оборудуют окна не только в жилых помещениях, но также на балконах, лоджиях и даже дверных проемах.
- Регулируемая длинна. Такие занавески можно зафиксировать на любой высоте, что позволяет защитить комнату от попадания интенсивного солнечного света, но в то же время оставить подоконник свободным. Его, как правило, используют в качестве полки для цветов и других элементов декора.
- Превосходный внешний вид. Рольшторы выглядят стильно и современно. Кроме того, они отлично гармонируют с традиционными портьерами и тюлем. В классическом стиле можно применять их вместе с ламбрекеном. Днём вы всегда сможете спрятать роллшторы за роскошную драпировку, а вечером распустить полотно, полностью скрыв помещение от любопытных взглядов прохожих. Согласитесь, это не только красиво, но и весьма удобно.

Ухаживать за рулонными занавесками довольно просто
- Широкий ассортимент. Благодаря наличию огромнейшего количества разнообразных вариаций орнаментов, расцветок и принтов, каждый сможет найти идеальное изделие для своего интерьера. К тому же даже недорогие модели выглядят эстетично и модно. Убедитесь в этом сами, просмотрев фото рулонных штор в интерьере кухни.
- Улучшенные ткани. Шелк, хлопок, полиэстер, бамбук – это далеко не полный перечень материалов, из которых могут изготавливаться роллеры. Какую бы ткань вы не выбрали, обязательно уточните у продавца, была ли она обработана специальными составами. Например, «зеркальная» пропитка обеспечивает полное отражение солнечных лучей от поверхности. Также существуют пропитки, которые предотвращают скапливание пыли, выгорание, а также защищают ткань от воздействия влаги и высоких температур.

Чертёж рулонных штор с электроприводом
- Практичность. Ухаживать за рулонными занавесками довольно просто. Сухую чистку можно выполнить при помощи пылесоса с небольшой насадкой или обыкновенной мягкой щеткой для мебели. Если изделие сильно загрязнилось, снимите его с карниза, уберите утяжелитель и постирайте вручную. Некоторые ткани можно очистить в стиральной машинке, но температура не должна превышать 30-40°С. За сохранность дополнительных элементов механизма вы можете быть спокойны, так как все они защищены специальными крышками, благодаря которым пыль и грязь не попадают на них.
- Множество вариантов управления. Использовать электропривод, шнур или пружинную систему – решать только вам. Выбирайте для себя наиболее удобный способ регулировки, учитывая особенности размещения оконного проема.
- Защита мебели. Плотный материал, обработанный пропитками, предотвращает попадание прямых солнечных лучей на предметы декора и мебель, поэтому они не выгорают. Один раз потратившись на качественные занавески, вы значительно сэкономите на реставрации и замене потерявшей цвет мебели.
Естественно, нельзя забывать и о недостатках, которые, без сомнений, имеет каждое изделие.
- Если в вашей квартире установлены старые деревянные окна, открывать форточку будет не очень удобно. Рольшторы лучше всего подходят для оформления пластиковых окон.

Не рекомендуем экономить на роллерных шторах, ведь качественное изделие имеет длительный срок эксплуатации, а значит прослужит вам долгие годы
- Некоторые модели могут иметь ненадежный механизм скручивания, поэтому он будет часто ломаться. Не рекомендуем вам экономить на роллерных шторах, ведь качественное изделие имеет длительный срок эксплуатации, а значит прослужит вам долгие годы.
- Для некоторых стилей интерьера применение рулонных штор будет неуместно. Хотя, если вы обратитесь к услугам профессиональных дизайнеров, они смогут выполнить эксклюзивные изделия, которые превосходно впишутся даже в такие стили как барокко и ренессанс.
Как видите, список достоинств намного больше.

Для северных кухонь уместной будет тёплая гамма, поэтому отдайте предпочтение золотым, оранжевым или кремовым занавескам
Да и недостатки легко нивелировать, обратившись за помощью к специалистам.
Рольшторы в разных стилях интерьера
Вы знаете, как выбрать рулонные шторы на кухню так, чтобы они гармонировали с интерьером? А ведь они подойдут любому из них.
Классическая кухня, арт-деко, модерн подружится с рулонными шторами, сделанными из плотной, фактурной ткани. Цветовая гамма благородная: белая, золотая, бордо и пр.
Хай-тек и другие столь же современные направления – это минималистский дизайн на полотнах и ткань с гладкой и ровной структурой. Цвета – от белого до ярко-зеленого или фиолетового.
Экостили: деревенский, лофт, кантри – это натуральные материалы теплых оттенков. Цвет зависит от стиля. Но он не ядовитый, а естественный.
Шебби-шик, прованс – это нежность, свет. Потому и рулонные шторы светлые, в мелкий рисунок. По нижнему краю может идти фигурная кайма.



В рулонных шторах используются различные материалы: циновка, бамбук, натуральные, синтетические и смесовые ткани, плотные и легкие, прозрачные и светонепроницаемые. Их можно вешать, как самостоятельную одежду для окон или комбинировать с занавесками.
Разнообразием оттенков, материалов, рисунков, вариаций и объясняется популярность рулонных штор на кухне. Остальное – дело фантазии и умелых рук.
День-ночь
Система «день-ночь», несмотря на то, что по своему внешнему виду очень напоминает жалюзи, все же является разновидностью рулонных штор.

Практичность, простота и стильный внешний вид сделали эти занавески популярными и востребованными. Для многих в приоритете именно внешняя привлекательность, хотя и функциональные особенности достаточно впечатляющие.
Эти занавески наделены возможностью регулировать проникновение в помещение светового потока на самом изделии.

На фото рулонные шторы «день-ночь» в интерьере современной гостиной.
Эффект достигается благодаря смещению друг относительно друга прозрачных и непрозрачных горизонтальных полос ткани.

Материал имеет специальную пропитку антистатиками, отталкивающими пыль и любые иные загрязнения.

Шторы «день-ночь» эффектно и оригинально будут смотреться в любом помещении. На их основе можно создать эксклюзивное оформление окон в:
- кухне,
- спальне,
- гостиной,
- детской,
- лоджии,
- рабочем кабинете и пр.
Очень легко вы сможете обеспечить хорошее затенение или наоборот, запустить в комнату побольше солнечного света.

Это вариант, эффектно сочетающий в себе классический и современных декор окон, выгодно смотрясь в помещениях, в отделке и интерьере которых использовано натуральное дерево.
Как сшить рулонную штору самостоятельно
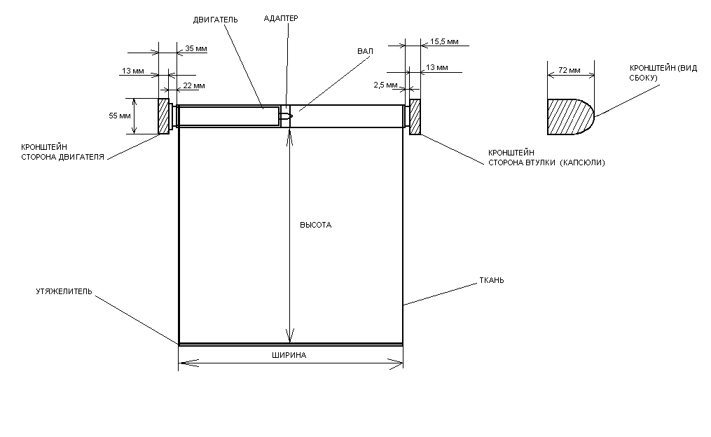
Для изготовления рулонной шторы понадобится следующий материал:
- ткань;
- металлическая труба диаметров 1,8 см;
- готовое крепление для шторы 2 м;
- планка для отвеса;
- клей «Момент»;
- шурупы;
- ножовка по металлу;
- дрель
По следующему алгоритму изготавливаем занавеску:
- Измеряем длину и ширину оконной створки.
- Отпиливаем от трубы размер равный ширине.
- Выкраиваем штору, оставляя по 2 см со всех сторон.
- Снизу загибаем край и прострачиваем. Вставляем в него деревянный оконный штапик в качестве отвеса.
- В металлическую трубу вставляем крепления для рулонной конструкции.
- На трубу наносим клей и приклеиваем тканевое полотно.
- Рулонная штора готова.
- При помощи дрели на оконную раму фиксируем вторую часть креплений.
- Вставляем трубу со шторой в пазы.
История моды циклична, это касается и моды на интерьер. Рулонные шторы обретают новую популярность благодаря характеристикам, которые удовлетворяют потребностям современного образа жизни: они просты в использовании, функциональны, долговечны и декоративны.
Характеристика

Процесс изготовления жалюзи зебра происходит из синтетической ткани, обработка которой осуществляется при помощи тефлоновой пропитки. Такое средство оказывает пылеотталкивающим, антистатическим и антибактериальным эффектом, благодаря чему отсутствует возможность формирования аллергической реакции. Удельный вес такой материи составляет 110 г/м2. На фото – бежевые шторы день-ночь:

Достоинства изделий

Такой вариант изделий – это идеальное решение для любого интерьера, готовые для использования, обладают огромным количеством преимуществ, самые основные из которых:
- Простота в регулировке потока света в помещении. Благодаря уникальной конструкции не нужно полностью поднимать полотно, а следует слегка поменять положение полос. Результатом таких действий станет отсутствие бликов от солнечных лучей.
- Создание уникального интерьера. Четкие прямые линии позволяют визуально расширить пространство комнаты.
- Жалюзи день-ночь можно выполнить заказ по индивидуальным размерам. Могут быть рулонные шторы с рисунком, а ее цвет выбирается согласно пожеланиям заказчика.
- Экономия. Если приобрести рулонные жалюзи зебра, то не нужно будет тратить деньги на покупку занавесок и тюли. Кроме этого, можно забыть про стирку, так как уход рулонных штор зебра предполагает протирание их влажной салфеткой.
Шторы для ванны тканевые долговечнее, чем полиэтиленовые.
Цены на махровые простыни: //izvolokna.com/domashnii/spalnya/postelnoe-bele-s/prostyni/maxrovye-dlya-ukryvaniya.html.
Чехлы на стулья часто из спандекса.
Недостатки у таких изделий имеются – это их высокая цена. Стоимость такой продукции зависит от таких параметров:
- размер;
- качество материи;
- тип ткани.
Средняя стоимость изделий варьируется в пределах 800– 1500 рублей за м2. Для тех, кому кажется, что это очень высокая цена, то следует вспомнить основные характеристики, которыми обладают подобные изделия: сочетание с любым дизайном, отсутствие постоянного ухода и скопление пыли, чего нельзя сказать про портьеры и гардины.
Светопропускание
Многие перед выбором представленных изделий задают такой вопрос: как определить степень пропускания светового потока? Первым делом необходимо знать, что материал для роллетов отличается по количеству пропускаемого в помещение света. К примеру, приобретение прозрачных изделий – это прекрасное решение в тех случаях, когда необходимо добиться рассеивающего света в комнате. Такие жалюзи станут прекрасным дополнением к гардинам и будут играть декоративную роль.
На фото – шторы день ночь:

Рулонные шторы день ночь – это изделия, позволяющие регулировка направление и количество светового потока в помещении. Они комбинируют в себя прозрачные и непрозрачные линии, благодаря чему становится возможным смешивать по-разному солнечный свет.
Наружные жалюзи из металла
Такие системы наружных жалюзи являются максимально надежными, вне всякого сомнения. Эти устройства обладают самой большей степенью осуществления безопасности по сравнению с другими видами.
Наружные жалюзи из металла обладают оригинальным дизайном. Благодаря уникальным свойствам и характеристикам металла, можно получить конструкцию любой формы и конфигурации.
Металлические изделия обладают не только привлекательным внешним видом, но и высокой функциональной составляющей. Так, они способны подавлять шумы, поступающие в помещение. К тому же предотвращают поступление пыли, грязи и солнечного света в помещение и защищают от неблагоприятного внешнего воздействия во время осадков.

Важно! При производстве качественных металлических наружных жалюзи для окон используются только экологичные материалы – стальные и алюминиевые профили, которые не оказывают вредного воздействия на окружающую среду и человека. Профили из стали позволяют создать крупные по габаритам и тяжелые жалюзи. В таких системах используется оцинкованный лист, а сами профили заполняются пенополиуретаном
Но, из-за большого веса, установить такие модели можно только на наклонных проемах и на первом этаже
В таких системах используется оцинкованный лист, а сами профили заполняются пенополиуретаном. Но, из-за большого веса, установить такие модели можно только на наклонных проемах и на первом этаже
Профили из стали позволяют создать крупные по габаритам и тяжелые жалюзи. В таких системах используется оцинкованный лист, а сами профили заполняются пенополиуретаном. Но, из-за большого веса, установить такие модели можно только на наклонных проемах и на первом этаже.
Для увеличения срока эксплуатации конструкции жалюзи покрываются антикоррозийными составами. Такое покрытие позволяет защитить рафшторы наружного типа от воздействия окружающей среды.
Для получения профилей из алюминия используется не чистый металл, а его сплав, благодаря чему получаемая конструкция отличается высокой степенью практичности. Среди преимуществ таких наружных жалюзи выделяют небольшой вес, долговечность, простоту использования и ухода, возможность установки на любом этаже.

Идеи дизайна для гостиной
Для гостиных, оформленных в стиле минимализм либо хай-тек, не так просто подобрать достойный декор для окон, как это может показаться на первый взгляд.

На фото вариант, как можно удачно комбинировать рулонные шторы с легкими гардинами.
Рассматривая варианты штор для таких помещений, обратите внимание на рулонные полотна из натуральных тканей: лен, хлопок. Здесь нет агрессивных сред, посторонних запахов и высокой вероятности загрязнений, как на кухне
Здесь нет агрессивных сред, посторонних запахов и высокой вероятности загрязнений, как на кухне.

Стильные современные рулонные занавески не только эффективно справятся со своей первоочередной задачей затенения пространства и защиты от посторонних взглядов, но и станут ярким элементом декора.
Эффектное сочетание получается при сочетании данной разновидности штор и портьер. Если вы выберете для себя рулонное полотно с притом, то его эксклюзивность и неповторимость выгодно подчеркнут однотонные плотные гардины.

Это достойное решение для спокойных, не кричащих цветовых решений классической гостиной, выполненной в достаточно естественных тонах.
От рисунка на ткани лучше отказаться, сделав акцент на фактурности. Портьерная ткань в этом случае может иметь изображение: узоры, веточки, витиеватое кружево и пр.

Рулонные занавески с фотопечатью наиболее выгодно будут смотреться на панорамных окнах. Благодаря такому решению ваша гостиная станет действительно эксклюзивной и индивидуальной.
Выбирая достойный вариант для своего дома, обратите внимание на такие рекомендации:
Если цвет полотна будет совпадать с тоном отделки стен, то это позволит визуально расширить пространство комнаты. Отдайте предпочтение однотонной ткани или с ненавязчивым рисунком.
Окна просторных гостиных можно оформлять яркими занавесками с крупным, оригинальным рисунком.
Если из вашего окна открывается красивый вид, то именно он должен привлекать ваши взгляды
Остановите выбор на вариантах, не акцентирующих на себе внимание.
В том случае, если доступ к окну затруднен, присмотритесь к моделям, управление которыми осуществляется посредством дистанционного пульта. Этот вариант будет актуальным и для гостиных, в которых имеется несколько окон.

Современная продукция, изготовленная из высокотехнологичных материалов, совмещает в себе завидную практичность и эстетичность, делает гостиные более изысканными, не нарушая при этом гармоничности заданного стиля.
Выбор цвета шторы под стиль интерьера
Цветовая гамма комнаты играет роль при выборе цвета тканевых ролетов. Стиль интерьера минимализм предусматривает однотонное покрытие окна. Выбор зависит от того, на что хотите сделать акцент
Выбирая яркий цвет, рисунок с узором, акцентируете внимание на оконных проемах

Цвет и декор штор должен сочетаться с другими декоративными элементами интерьера
Классический интерьер предусматривает использование разных оттенков одной цветовой гаммы. Например, светлый беж, темный беж, белый – единство этих тонов создает гармонию классического стиля. Эко-стиль нуждается в шторах с бамбука. Восточный интерьер требует витиеватые восточные узоры.
Для создания комфортного, равномерного освещения комнат дома, квартиры сделайте выбор в пользу теплых оттенков северной стороне дома, более холодных для южных окон. Обивка окон кремовым, желтым, терракотовым, красным будет наполнять комнату теплыми тонами. Серый, темно-синий, темный рубин приглушат яркий свет, струящийся через окна, выходящие на юг.
Например, как изменит интерьер бежевый цвет?

Бежевые рулонные шторы в сочетании с серыми портьерами в интерьере спальни
Бежевый – только намек на цвет, он прекрасно сочетается с существующим декором. Придает нейтральность, спокойствие домашнему офису, спальне. Мягкая деталь смелого, насыщенного интерьера. Используется как акцент для гармонизации пространства.
Как повлияет на пространство синий цвет?

Синяя рулонная штора в качестве акцента в белой кухне
Богатый, темно-синий классический оттенок добавит функциональность, прагматизм пространству, где окажется. Темный оттенок синего сделает линии стены более четкими, традиционная цветовая схема может быть подчеркнута серебряными светильниками и фитингами на кухне, светлыми рабочими поверхностями.
Примеры в различных стилях
Наглядные примеры того, что рулоные шторы могут стать неотъемлемой частью любого стилевого решения.
Скандинавский
Своей простотой и легкостью, роллетные шторы из натуральных материалов подчеркнут сдержанность, холодность, кристальную белизну и простор скандинавского стиля.
На фото белые рулонные занавеси в спальне в скандинавском стиле.
Классика
Прозрачные или полупрозрачные модели станут интересным стилистическим дополнением классического интерьера.
На фото столовая в классическом стиле с полупрозрачными рольшторами в сочетании с портьерами.
Лофт
Простые, воздушные и неброские конструкции дополнят техногенный интерьер и станут незаменимым элементом индустриального стиля.
Минимализм
Этот стиль подразумевает минимум декора, поэтому аккуратные роллетные модели будут особенно уместны в этом не кричащем и спокойном стиле.
На фото рулонные двойные шторы белого цвета в интерьере спальни в стиле минимализм.
Прованс
Рольшторы с различными простыми узорами или цветами, ни чуть не испортят интерьер в стиле прованс и даже заметно освежат атмосферу.
Современный
В современном стиле оконные проемы украшают лаконичными моделями из практичных и легких тканей.
На фото спальня в современном стиле с роллетными шторами открытого типа.
Рулонные шторы в современном стиле
Рулонные шторы — это универсальный вариант оформления окон, который подходит для любого стиля интерьера. Они создают элегантный и минималистичный вид, и могут быть использованы как самостоятельное украшение, так и в сочетании с другими типами оконных покрытий.
Преимущества рулонных штор в современном стиле
- Универсальность. Рулонные шторы прекрасно подходят для любого интерьера, особенно в современном стиле, где минимализм и простота являются ключевыми элементами.
- Простота использования. Рулонные шторы легко устанавливаются и управляются, их можно легко привести в нужное положение, благодаря механизму прокрутки.
Материалы для рулонных штор в современном стиле
- Ткань. Тканевые рулонные шторы подходят для любого интерьера, они доступны в различных цветах и текстурах.
- Пленка. Рулонные шторы из пленки — это практичный и долговечный вариант. Они могут использоваться для тех, кто хочет сохранить частную жизнь, но при этом хочет сохранить максимальный доступ света.
- Жалюзи. Рулонные шторы из жалюзи подходят для современных интерьеров, в которых используются металлические и стеклянные поверхности.
Цветовые решения для рулонных штор в современном стиле
- Белый цвет штор подходит для любого интерьера, особенно если вы хотите создать пространство с максимальным количеством света.
- Серый цвет подходит для современных интерьеров, он отлично сочетается с металлическими поверхностями и стеклом.
- Черный цвет штор подходит для интерьеров в стиле «хай-тек», он добавляет нотку роскоши и элегантности.
Дизайн рулонных штор в современном стиле
- Геометрические формы. Рулонные шторы с геометрическими узорами и формами выглядят очень современно и стильно.
- Прозрачные рулонные шторы. Прозрачные рулонные шторы, изготовленные из тонкой ткани, добавляют в интерьер мягкость и элегантность. Они также позволяют проникать свету в комнату, создавая приятную атмосферу.
- Минималистичный дизайн. Рулонные шторы в минималистичном стиле прекрасно сочетаются с современным интерьером, так как у них чистые линии и простые формы.
Применение рулонных штор в современном стиле
- Оконные проемы. Рулонные шторы подходят для окон любой формы и размера, их можно использовать как самостоятельное оконное покрытие или в сочетании с другими типами штор и жалюзи.
- Разделение пространства. Рулонные шторы могут использоваться для разделения пространства в помещении, например, для создания зоны для работы или отдыха.
- Декоративный элемент. Рулонные шторы могут использоваться в качестве декоративного элемента в интерьере, добавляя в него нотки цвета и текстуры.
Виды и цвета ткани
В производстве тканевых жалюзи используется 100% полиэстер и жаккард. Потребители все чаще выбирают жаккардовые ламели. Красивая текстура материала, с рельефным рисунком, выглядит респектабельно и элегантно в любом цвете.
Длительность срока службы и устойчивость к разрушительному воздействию влаги и света — это самые главные характеристики ткани для вертикальных жалюзи
Просторная квартира, оформленная в стиле минимализм
Вертикальные тканевые жалюзи — идеальное оформление окна для любого помещения
Не приходится сомневаться и в интерьерных достоинствах вертикальных жалюзи. Прежде всего надо сказать о том, что цветовая гамма изделий настолько широка, насколько хватает возможностей текстильной промышленности. В каталогах изготовителей представлены всевозможные оттенки и принты, нанесенные на ткань для ламелей. Существуют и фотожалюзи, при закрытии которых вы получаете на окне изумительный морской пейзаж или укрытый пушистым снегом лес.
Кроме того, вертикальная форма жалюзи визуально увеличивает высоту помещения, что также полезно для интерьера.
Открытые и закрытые конструкции
Закрытыми, или кассетными, называют такие шторы, в которых рулон ткани защищен специальным коробом. Края полотна находятся под пластиковыми направляющими, благодаря чему из-под них не просачивается свет с улицы.
В закрытых конструкциях типа uni 1 направляющие прикреплены к штапику с помощью клеевого состава, а полотно перемещается между ними и полем остекления. В моделях uni 2 ткань движется между границами фиксирующей планки.
Конструкция закрытого типа
В системах открытого типа рулон ткани не закрыт коробом. К нижней части прикреплен утяжелитель. Прилегание шторы к створке обеспечено за счет струны, натянутой между верхним держателем и утяжеляющей планкой. Благодаря этому окно можно открывать в режиме проветривания, не опасаясь, что рольштора будет болтаться или оторвется из-за сквозняка.
Рулонные шторы в скандинавском стиле
Скандинавский стиль — это максимум света, простоты и функциональности. Если вы хотите добавить этот стиль в свой дом, то рулонные шторы могут быть отличным выбором.

Выбирайте натуральные материалы
В скандинавском стиле ценятся натуральные материалы, такие как хлопок, лен и шерсть. Они добавляют ощущение тепла и комфорта в помещение. При выборе рулонных штор лучше отдать предпочтение материалам нейтральных тонов, чтобы они сочетались с любым цветовым решением.

Используйте минималистический дизайн
Скандинавский стиль характеризуется минимализмом и простотой. Поэтому лучше выбрать рулонные шторы с минимальным декором, без лишних украшений и деталей. Чистые линии и простые формы будут отлично сочетаться с остальным интерьером.

Отдайте предпочтение светлым оттенкам
В скандинавском стиле используются светлые оттенки, такие как белый, серый, бежевый, светло-голубой и мятный. Рулонные шторы также можно выбрать в таких оттенках, чтобы они дополняли общую цветовую гамму помещения.

Добавьте деревянные элементы
Дерево — это неотъемлемый элемент скандинавского стиля. Чтобы добавить в помещение больше тепла и уюта, можно использовать деревянные элементы в оформлении рулонных штор. Например, деревянные карнизы или держатели для штор.

Используйте текстильные аксессуары
Текстиль — это еще один важный элемент в скандинавском стиле. Чтобы добавить в помещение больше текстуры и мягкости, можно использовать текстильные аксессуары, такие как подушки, пледы или ковры. Они также помогут создать единую цветовую гамму в помещении.






Размеры
Они бывают разными. Длина может достигать 1,5 м. Стандартная ширина — 50 см, но есть модели и 30 см, и 150, и больше. Совсем маленькие рольшторы, рассчитанные буквально на один стеклопакет, называют «мини». Иногда их вешают в компании с обычными занавесками, особенно если нужно совместить две задачи: придать обстановке уют и максимально затенить комнату.
Открытые
Их еще называют классическими. Вал, на который наматывается рулон, виден всем, но интерьер это не портит. Более того, есть значимый плюс. Перекладину можно укоротить при наличии подходящих инструментов. Само полотно также можно подогнать под проем, если вы прогадали с размерами или просто не нашли в магазине идеально подходящий вариант.
Открытые конструкции чаще всего устанавливают на небольшие окна. У тех, которые можно вешать без просверливания рамы, с двух сторон верхнего края предусмотрены ПВХ-зажимы, в них есть отверстия, куда потом вставляют оба конца металлической штанги. Зажимы эти держатся на крепежах, которые предварительно присверлены к стене шурупами.
Модели, требующие монтажа непосредственно на раму, можно посадить либо на саморезы, либо на липучки. Первый вариант самый надежный, но не всем подходит: слетает гарантия на стеклопакеты или не хочется, чтобы после снятия декора на перекладине остались дыры. Второй способ особенно хорош для изделий типа «мини», которые за счет своего небольшого веса могут годами держаться на фиксаторах-уголках, надевающихся на открытую створку.

Кассетные
Они, как и открытые аналоги, бывают разных размеров, в том числе «стандарт» и «мини». Зафиксировать их также можно при помощи саморезов или двустороннего скотча. Отличаются от предыдущей категории внешним видом: текстильный валик прячется в компактный пластиковый короб, расположенный на раме. Да и над проемом к стене их не крепят — это чисто оконная конструкция. Стоят дороже, чем первый вид, зато смотрятся аккуратнее.
Кассетные разновидности, как с пружиной, так и без нее, монтируют только на штапики, а не на весь проем. Они особенно требовательны к точности измерений. В противном случае, кассета не поместится или штанги не хватит, чтобы «зацепиться» за противоположные края створки. Учтите, что в разложенном виде они закрывают около половины подоконника. Поэтому, если он у вас занят цветами ли другим декором, лучше выбирайте систему, которая устанавливается над проемом. Иначе полностью развернуть ее не выйдет.

Виды
Среди видов рулонных штор можно отметить следующие.
Мини-шторы
Это обычные свободно спускающиеся рольшторы, полотно которых наматывается на вал, приводимый в движение с помощью цепочки. Основное их преимущество – возможность установки на любые оконные проемы, в т. ч. без сверления профиля. При этом следует учитывать, что если у окон есть наклон либо предполагается их открывание, необходимо наличие системы, исключающей провисание ткани.
Кассетные
В таких моделях рулон находится в коробе из алюминия. Благодаря направляющим, по которым двигается полотно, оно не провисает. Используют такие варианты только на пластиковых окнах с применением 2-х систем этого вида:
- UNI 1 – недорогой вариант, который устанавливается только на окна, имеет ширину рейки по краю стеклопакета (штапика) – от 16 мм. Среди недостатков этой системы пользователи отмечают, что под воздействием высокой температуры, при движении ткани, возможны незначительные задержки и асимметричность.
- UNI 2 – система, которая может быть установлена на любой тип окон.
Система «Ловолайт»
Или так называемые рулонные обои. Применяют обычно для больших оконных проемов. Часто такой вид используют в офисах или загородных домах. Монтаж системы предполагает наличие декоративного короба, в т. ч. с блоком моторизации. Некоторые модели имеют дистанционное управление.
День-ночь
Один из популярных видов моделей кассетного типа — двойные рулонные шторы с пружинным управлением. Модели этого вида предполагают использование 2-х типов ткани с разной светопроницаемостью, что позволяет использовать в зависимости от времени суток необходимый тип полотна. Интересно, что механизм предполагает, что окна могут закрываться шторами или снизу, или сверху.
Материалы
Рулонные шторы изготавливают из синтетических или натуральных материалов, чаще всего из полиэстера, иногда с добавлением хлопка или вискозы.
Достаточно взглянуть на фото рулонных штор на пластиковые окна в каталогах производителей, чтобы понять — даже для самого взыскательного вкуса непременно отыщется особенный дизайн.
Светопроницаемость ткани — важнейший параметр при выборе рулонных штор. Потребители чаще всего останавливают свой выбор на двух видах тканей:
- «блэкаут» — ткань обеспечивает 100% затемнение;
- полупрозрачные — светопропускание 50%.
Также популярен смешанный вариант: шторка состоит из двух параллельных частей, на каждой из которых чередуются полосы «блэкаут» и полупрозрачной ткани. Сдвигая полотнища, можно регулировать поступление солнечного света вплоть до полного затемнения. Такие рулонные шторы день-ночь на пластиковые окна стоят дороже, но высоко востребованы.
Подсказка умельцам: если купить отдельно все комплектующие и подходящую ткань, можно сделать рулонные шторы своими руками.


































